960,000,000 Ft
2,472,000 €
- 192,000m²
 
            
                                                             
            
                                                             
            
                                                             
            
                                                             
            
                                                             
            
                                                             
            
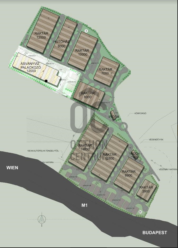
                                                            Eladó 19,2 ha beruházási terület az M1 mellett 60 %-os beépíthetőséggel
Eladó 19,2 ha beruházási terület az M1 mellett 60 %-os beépíthetőséggel
Elhelyezkedés:
- Központi régióban található
- Közvetlen autópálya lehajtó
- M0 10-15 percre
- Budapest 40 km
- Bécs 210 km
- Ferihegy 50 km
- Győr 80 km
A terület egy része közvetlen az autópálya mellett van, a másik része beljebb, csendesebb részen.
A beruházási terület nagyon sok lehetőséget rejt magában,
akár ipari hasznosításra,
- ásványvíz palackozó üzem,
- logisztikai központ,
- gyár, stb./
akár egyéb fejlesztésekre,
- idősek otthona,
- kórház,
- wellness központ stb./.
Övezeti besorolás: GKSZ
Beépíthetőség: 60 %
Építmény magasság: 12 méter
Minimum zöldfelület: 20 %
A területre összesen 115200 nm felépítmény építhető.
Az alsó terület mellett további 7 ha vásárlására van még lehetőség.
                    Elhelyezkedés:
- Központi régióban található
- Közvetlen autópálya lehajtó
- M0 10-15 percre
- Budapest 40 km
- Bécs 210 km
- Ferihegy 50 km
- Győr 80 km
A terület egy része közvetlen az autópálya mellett van, a másik része beljebb, csendesebb részen.
A beruházási terület nagyon sok lehetőséget rejt magában,
akár ipari hasznosításra,
- ásványvíz palackozó üzem,
- logisztikai központ,
- gyár, stb./
akár egyéb fejlesztésekre,
- idősek otthona,
- kórház,
- wellness központ stb./.
Övezeti besorolás: GKSZ
Beépíthetőség: 60 %
Építmény magasság: 12 méter
Minimum zöldfelület: 20 %
A területre összesen 115200 nm felépítmény építhető.
Az alsó terület mellett további 7 ha vásárlására van még lehetőség.
Registration Number
T028242
                Property Details
Sales
                                        for sale
                                                                                                                                                                                                                    Character
                                        plot
                                                                                                                                                                                                                                                                                                                                                                                                                                Type of Land
                                        Developmental plot
                                                                                                                                                Zone
                                        industrial-economic zone
                                                                                                                                                                                                                                                                                                                                                                                                                                Plot Size
                                        192,000 m²
                                                                                                                                                                                                                                                                                                                                                                                                                                                                                                                                                                                                                                                                                                                Orientation
                                        East
                                                                                                                                                                                                                                                                                                                                                                                                                                                                                                                                                                                                                                                                                                                                                                                                                                                                                                                                                                                                                                                                                                                                                                                                                                                                                                                                                    Water
                                        On the street
                                                                                                                                                Gas
                                        On the street
                                                                                                                                                Electricity
                                        On the street
                                                                                                                                                                                                                                                                                                                                                                                                                                                                                                                                                                                                                                                                Buildability
                                            60%
                                                                                                                                                                Facade Height
                                            120
                                                                                                                                                                                                                                                                                                                        Type of Buildable Property
                                            Industrial hall or warehouse, Farm building
                                                                                                                                                                                                                                                                                                                                                                                                                                                                                                                                                                                                                                                                 
            
                            Liber Róbert Ferenc
Credit Expert
 
     
                         
                         
                         
                         
                         
                         
                         
     
                 
                 
                 
                 
                 
                 
                 
                 
                 
                 
                