data_sheet.details.realestate.section.main.otthonstart_flag.label
For sale new construction semi-detached house, P4800-1-0A-NA-002
Bocskaikert,

100,000,000 Ft

265,000 €

  • 126m²
  • 4 Rooms

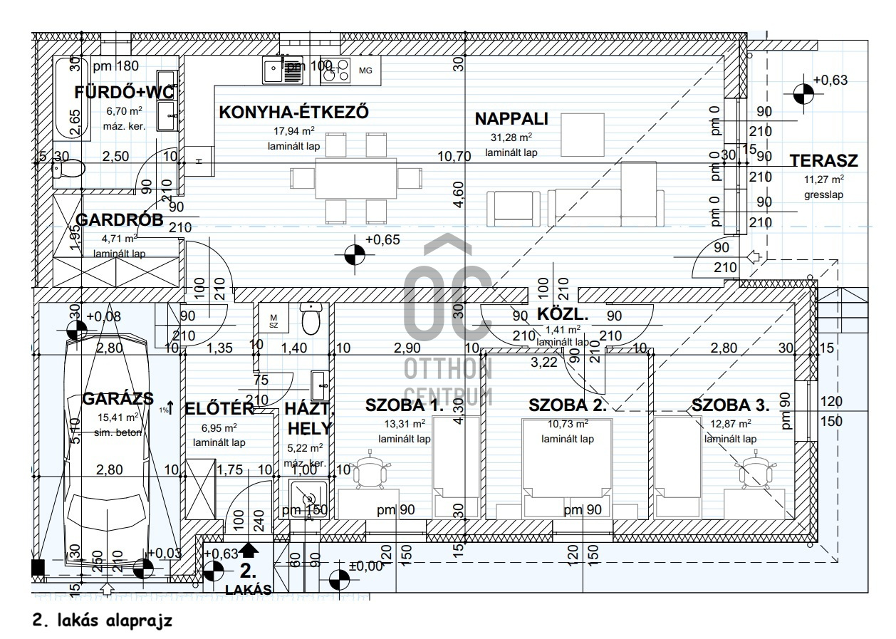
ÚJ ÉPÍTÉSŰ IKERHÁZAK BOCSKAIKERT KÖZPONTI RÉSZÉN

2. lakás Br.132 nm egy szinten, nagy telekhányaddal:

- amerikaikonyhás nappali (49 nm) teraszkapcsolattal
- 3 hálószoba (13,11,13 nm)
- 2 fürdőszoba (kád és tusoló kialakítással)
- gardrób (5 nm)
- garázs (15 nm)
- kertkapcsolat (660 nm).

Registration Number

P4800-1-0A-NA-002

Property Details

Sales
for sale
Legal Status
new
Character
house
Construction Method
brick
Net Size
126 m²
Gross Size
132 m²
Plot Size
1,000 m²
Size of Terrace / Balcony
12 m²
Heating
heat pump
Ceiling Height
260 cm
Orientation
North-East
Condition
Excellent
Condition of Facade
Excellent
Neighborhood
quiet, good transport, central
Year of Construction
2027
Number of Bathrooms
2
Garage
Included in the price
Garage Spaces
1
Water
Available
Electricity
Available
Sewer
Available

Rooms

open-plan kitchen and dining room
18 m²
living room
31 m²
bedroom
13 m²
bedroom
11 m²
bedroom
13 m²
bathroom-toilet
7 m²
wardrobe
5 m²
bathroom-toilet
5 m²
garage
15 m²
terrace
11 m²
Czellér András
Czellér András

Credit Expert

From Our Office Listings - Debrecen - Kálvin tér

for rent family house

Index image
20

for rent apartment

Index image
6

for sale apartment

Index image
data_sheet.details.realestate.section.main.otthonstart_flag.label
7

for sale family house

Index image
data_sheet.details.realestate.section.main.otthonstart_flag.label
18

for rent semi-detached house

Index image
18

for sale semi-detached house

Index image
18