data_sheet.details.realestate.section.main.otthonstart_flag.label
For sale family house, H513517
Mikepércs

134,500,000 Ft

357,000 €

  • 125m²
  • 5 Rooms
Exclusive Contract

Single-story, independent, almost new, modern family house; well-thought-out layout, bright spaces, youthful vibe!

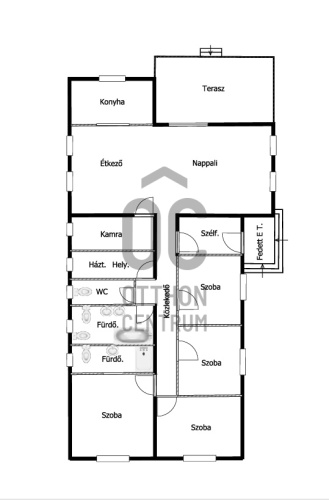
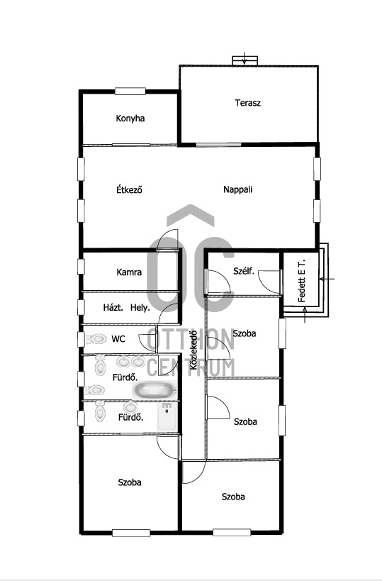
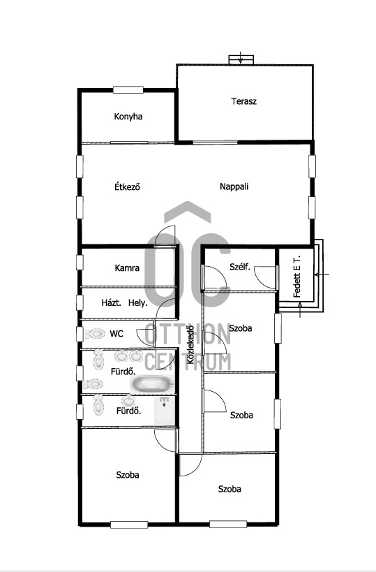
Near the center of Mikepércs, a nearly new, very well-maintained family house built in 2023 is for sale. The house is a single-story, gross 125 m², featuring an open-plan living room with an American kitchen, plus 4 separate bedrooms, and has double comfort. It is situated on a 2283 m² plot, which has the potential for division, allowing for future sale or development. The property includes a dining-kitchen-living area, 4 bedrooms, 2 bathrooms, and 4 toilets, making it an extremely ideal choice for families. The spacious living room creates a bright and friendly atmosphere, perfect for shared family moments. Thanks to the premium construction of the house, it not only offers aesthetic appeal but also emphasizes sustainability. The home is designed close to passive house principles, with gas (combi) heating and air conditioning providing a pleasant temperature throughout the year. The building was constructed using high-quality materials, ensuring durability and low maintenance costs for the new residents. The property also features a 17 m² terrace, where the experience of relaxation and entertainment outdoors is guaranteed. The built-in furniture and cabinets, along with LED mood lighting, cater to the comforts of modern living. Additional features include: - 38 m² living-dining-kitchen area - 4 separate bedrooms with laminate flooring - Triple-glazed, insulated plastic windows - Porotherm 30 K bricks + 15 cm insulation, 40 cm ceiling insulation - Bramac tile roof - Modern, equipped kitchen with nearly new appliances - Underfloor heating - A covered entrance area with a 17 m² rear terrace connected to the living room - 2 large bathrooms with high-quality tiles, including a toilet, bathtub, and shower - Separate toilet with a washbasin - Walkable, usable attic space - Fireplace installation option in the living room (SCHIEDEL chimney) - LED lights and hidden LED lighting - Super low utility costs A home where all you need to do is move in! LET GO OF THE CHALLENGES OF CONSTRUCTION, BUY A FULLY FINISHED FAMILY HOUSE AT A FAVORABLE PRICE! The area has excellent amenities, as nearby shops, schools, and healthcare facilities are all just a few minutes away. Ideal for those who appreciate a suburban, friendly environment, and value proximity to the city center. Call me, and let’s schedule a viewing! A comprehensive video recording of the property has been made. To view it, please visit our website and search for registration number H513517, or contact us directly by phone.

Registration Number

H513517

Property Details

Sales
for sale
Legal Status
used
Character
house
Construction Method
brick
Net Size
125 m²
Gross Size
142 m²
Plot Size
2,283 m²
Size of Terrace / Balcony
17 m²
Garden Size
2,283 m²
Heating
Gas circulator
Ceiling Height
279 cm
Orientation
East
Condition
Excellent
Condition of Facade
Excellent
Neighborhood
quiet, good transport, green
Year of Construction
2023
Number of Bathrooms
2
Condominium Garden
yes
Garage
Included in the price
Garage Spaces
1
Water
Available
Gas
Available
Electricity
Available
Sewer
Available
Storage
Independent

Rooms

open-plan living and dining room
32 m²
kitchen
6 m²
bedroom
10 m²
bedroom
9.1 m²
bedroom
8 m²
bedroom
8 m²
corridor
10.1 m²
bathroom-toilet
5.2 m²
bathroom-toilet
3.5 m²
toilet-washbasin
1.8 m²
entryway
4 m²
laundry room
3.5 m²
pantry
3.5 m²
terrace
17 m²
Czellér András
Czellér András

Credit Expert

From Our Office Listings - Debrecen - Kálvin tér

for sale family house

Index image
data_sheet.details.realestate.section.main.otthonstart_flag.label
18

for sale family house

Index image
data_sheet.details.realestate.section.main.otthonstart_flag.label
9

for rent semi-detached house

Index image
18

for sale semi-detached house

Index image
18

for rent apartment

Index image
23