data_sheet.details.realestate.section.main.otthonstart_flag.label
For sale new construction family house,
P4778-1-05-NA-000
Nagykálló
123,268,000 Ft
345,000 €
- 191.5m²
- 5 Rooms
Kapós Liget Nagykálló – A jövő otthona már elérhető közelségben!
Fantasztikus lehetőség azon családok számára, akik nyugalmat keresnek közel Nyíregyházához és ragaszkodnak a modern tervekhez és a korszerű kivitelezésekhez!
A projekt házak terveit tűpontosan a mai igényeknek megfelelően készítették, és ezeken most még kedvére módosíthat, akár teljes újra tervezésre is van lehetőség!
A Kapós Liget kedvező m2 árai garantálják, hogy nem kell kompromisszumokat kötnie az elképzeléseiben.
Kapós Liget Nagykálló...
...ahol a modern életstílus találkozik a nyugalommal – újépítésű prémium házak!
Képzelje el, hogy minden napját egy olyan otthonban kezdi, ahol a csendes utcák nyugalma találkozik az Ön kényelmével. A ház, amelyet gondos tervezéssel, időtálló minőséggel és a legmodernebb technológiákkal alkotnak meg – és amely most, az Öné lehet.
Ez a 191.52 m²-es, nettó alapterületű, prémium kategóriás családi ház nem egyszerűen egy ingatlan. Egy életérzés. A tágas terek, a letisztult vonalak és a természetes fény harmóniája már az első pillanatban otthonosságot sugároz.
A négy szoba lehetőséget ad a nyugodt pihenésre, különleges privátszférára és inspiráló élettérre. A nagy, fedett terasz pedig nemcsak kényelmet, hanem valódi szabadságot biztosít – legyen szó esti borozásról vagy családi hétvégékről a kertben.
A ház szíve a technológia. Padló-, fal- és mennyezetfűtés, hővisszanyerős szellőztető rendszer, valamint okosotthon-megoldások, amelyekkel szinte minden funkció távolról irányítható. Itt a modern élet nem extra, hanem természetes.
A 15 cm-es grafitos hőszigetelés és a gondosan megválasztott anyagok egyszerre biztosítanak kiemelkedő energiahatékonyságot és kényelmet – évszaktól függetlenül.
Ez a ház azoknak készült, akik nem érik be az átlagossal. Akik valódi minőséget, időtálló értéket, békét és eleganciát keresnek.
Ha Ön is ilyen otthont szeretne teremteni – itt az alkalom, hogy megtegye az első lépést.
Átadás 2026-ban, a jelenlegi projekt módosítható, újra tervezhető.
✔ Földszintes építésű, különálló családi ház
✔ 191.52/231.61 nettó/bruttó m2
✔ Telek 720 m2
✔ 5 szoba
✔ Nagy fedett terasz + kiegészítő helyiségek a modern életvitel jegyében
✔ Kétállásos garázs
✔ Hőszivattyús fűtésrendszer
✔ Mennyezet és fal fűtés-hűtés rendszer
✔ Programozható szellőzőrendszer
✔ Számtalan távvezérelhető okosotthon funkció
✔ A +++ energiahatékonyság
A hirdetésben szereplő információk a megbízótól kapott adatok alapján készültek, pontosságukért felelősséget nem vállalunk!
Amennyiben vásárláshoz hitelre is szüksége van, független hitel tanácsadónk ingyenesen tud Önnek segítséget nyújtani a legjobb konstrukciók kiválasztásában és a folyamat lebonyolításában. Irodánk kereső ügyfeleinknek teljes körű szolgáltatást nyújt, szakszerű tanácsadással, energetikai tanúsítvány elkészítésével, hitelügyintézéssel és profi ügyvédi segítséggel. Abban az esetben ha az ingatlan felkeltette érdeklődését keressen bizalommal!
A projekt házak terveit tűpontosan a mai igényeknek megfelelően készítették, és ezeken most még kedvére módosíthat, akár teljes újra tervezésre is van lehetőség!
A Kapós Liget kedvező m2 árai garantálják, hogy nem kell kompromisszumokat kötnie az elképzeléseiben.
Kapós Liget Nagykálló...
...ahol a modern életstílus találkozik a nyugalommal – újépítésű prémium házak!
Képzelje el, hogy minden napját egy olyan otthonban kezdi, ahol a csendes utcák nyugalma találkozik az Ön kényelmével. A ház, amelyet gondos tervezéssel, időtálló minőséggel és a legmodernebb technológiákkal alkotnak meg – és amely most, az Öné lehet.
Ez a 191.52 m²-es, nettó alapterületű, prémium kategóriás családi ház nem egyszerűen egy ingatlan. Egy életérzés. A tágas terek, a letisztult vonalak és a természetes fény harmóniája már az első pillanatban otthonosságot sugároz.
A négy szoba lehetőséget ad a nyugodt pihenésre, különleges privátszférára és inspiráló élettérre. A nagy, fedett terasz pedig nemcsak kényelmet, hanem valódi szabadságot biztosít – legyen szó esti borozásról vagy családi hétvégékről a kertben.
A ház szíve a technológia. Padló-, fal- és mennyezetfűtés, hővisszanyerős szellőztető rendszer, valamint okosotthon-megoldások, amelyekkel szinte minden funkció távolról irányítható. Itt a modern élet nem extra, hanem természetes.
A 15 cm-es grafitos hőszigetelés és a gondosan megválasztott anyagok egyszerre biztosítanak kiemelkedő energiahatékonyságot és kényelmet – évszaktól függetlenül.
Ez a ház azoknak készült, akik nem érik be az átlagossal. Akik valódi minőséget, időtálló értéket, békét és eleganciát keresnek.
Ha Ön is ilyen otthont szeretne teremteni – itt az alkalom, hogy megtegye az első lépést.
Átadás 2026-ban, a jelenlegi projekt módosítható, újra tervezhető.
✔ Földszintes építésű, különálló családi ház
✔ 191.52/231.61 nettó/bruttó m2
✔ Telek 720 m2
✔ 5 szoba
✔ Nagy fedett terasz + kiegészítő helyiségek a modern életvitel jegyében
✔ Kétállásos garázs
✔ Hőszivattyús fűtésrendszer
✔ Mennyezet és fal fűtés-hűtés rendszer
✔ Programozható szellőzőrendszer
✔ Számtalan távvezérelhető okosotthon funkció
✔ A +++ energiahatékonyság
A hirdetésben szereplő információk a megbízótól kapott adatok alapján készültek, pontosságukért felelősséget nem vállalunk!
Amennyiben vásárláshoz hitelre is szüksége van, független hitel tanácsadónk ingyenesen tud Önnek segítséget nyújtani a legjobb konstrukciók kiválasztásában és a folyamat lebonyolításában. Irodánk kereső ügyfeleinknek teljes körű szolgáltatást nyújt, szakszerű tanácsadással, energetikai tanúsítvány elkészítésével, hitelügyintézéssel és profi ügyvédi segítséggel. Abban az esetben ha az ingatlan felkeltette érdeklődését keressen bizalommal!
Registration Number
P4778-1-05-NA-000
Property Details
Sales
for sale
Legal Status
new
Character
house
Construction Method
brick
Net Size
191.5 m²
Gross Size
231.6 m²
Plot Size
720 m²
Size of Terrace / Balcony
40 m²
Heating
heat pump
Ceiling Height
270 cm
Orientation
North-East
Condition
Excellent
Condition of Facade
Excellent
Neighborhood
quiet, green
Year of Construction
2026
Number of Bathrooms
2
Garage
Included in the price
Garage Spaces
2
Water
Available
Gas
Available
Electricity
Available
Sewer
Available
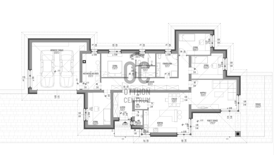
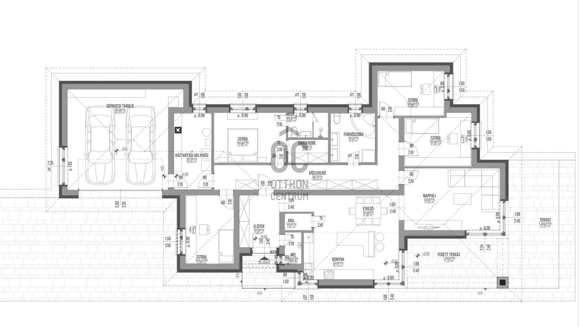
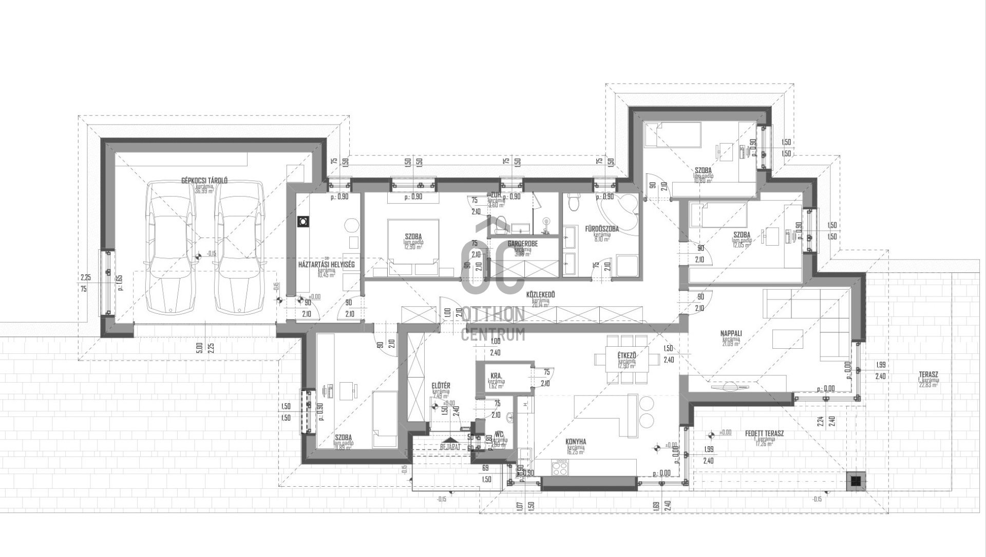
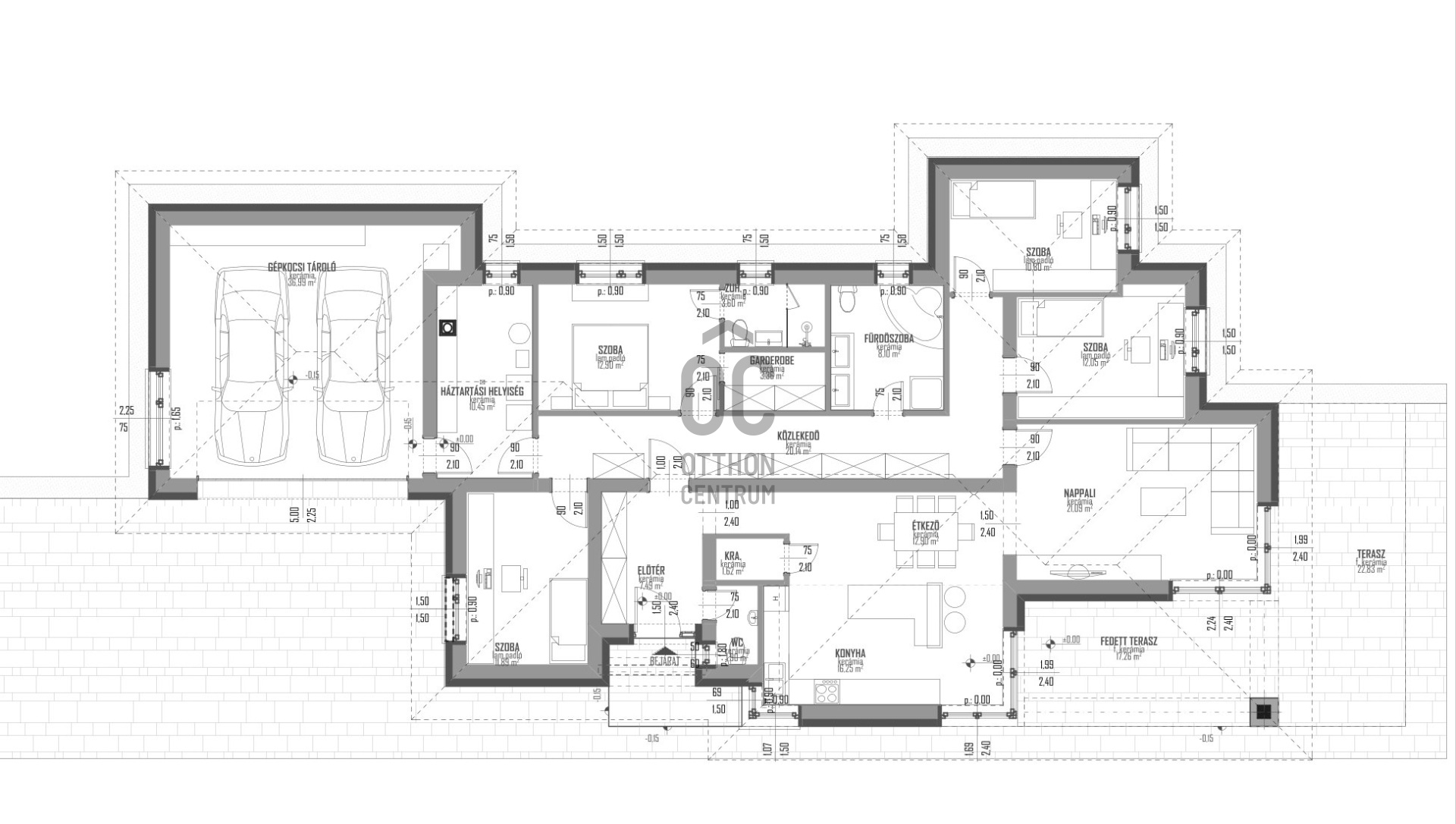
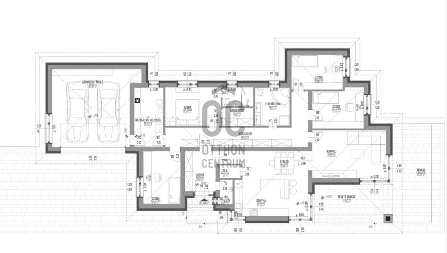
Rooms
room
12.9 m²
room
10.8 m²
room
12.05 m²
room
11.89 m²
living room
21.09 m²
kitchen
16.25 m²
dining room
12.9 m²
utility room
10.45 m²
entryway
7.49 m²
pantry
1.62 m²
wardrobe
3.36 m²
shower
3.6 m²
bathroom-toilet
8.1 m²
corridor
20.14 m²
terrace
22.83 m²
terrace
17.26 m²
garage
36.99 m²
Ronyecné Hódi Éva
Credit Expert