167,000,000 Ft
428,000 €
- 114m²
- 5 Rooms



PILISBOROSJENŐN ÚJ ÉPÍTÉSŰ CSALÁDI HÁZAK ELADÓK!
A telek Pilisborosjenőn csodálatos környezetben, a pilisi Nagy-Kevély lábánál fekszik, melyről gyönyörű panoráma tárul elénk a környező hegyekre, településekre, este a Parlament látványa is lenyűgöző.
A házak magas műszaki tartalommal, energiahatékony megoldásokkal és prémium minőségű anyagokkal kerülnek kialakításra az épület szerkezetétől egészen a látható és tapintható anyagokig. Az épület ’A’ energetikai besorolású, korszerű anyagokból és technológiákkal épül, ezért gazdaságosan üzemeltethető. A padlófűtés hőszivattyúról működik, míg a hűtésért split klímák felelnek., melyek alternatív fűtési megoldást is nyújtanak.
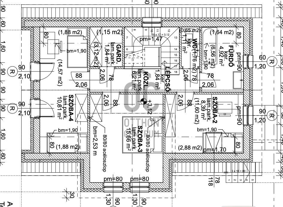
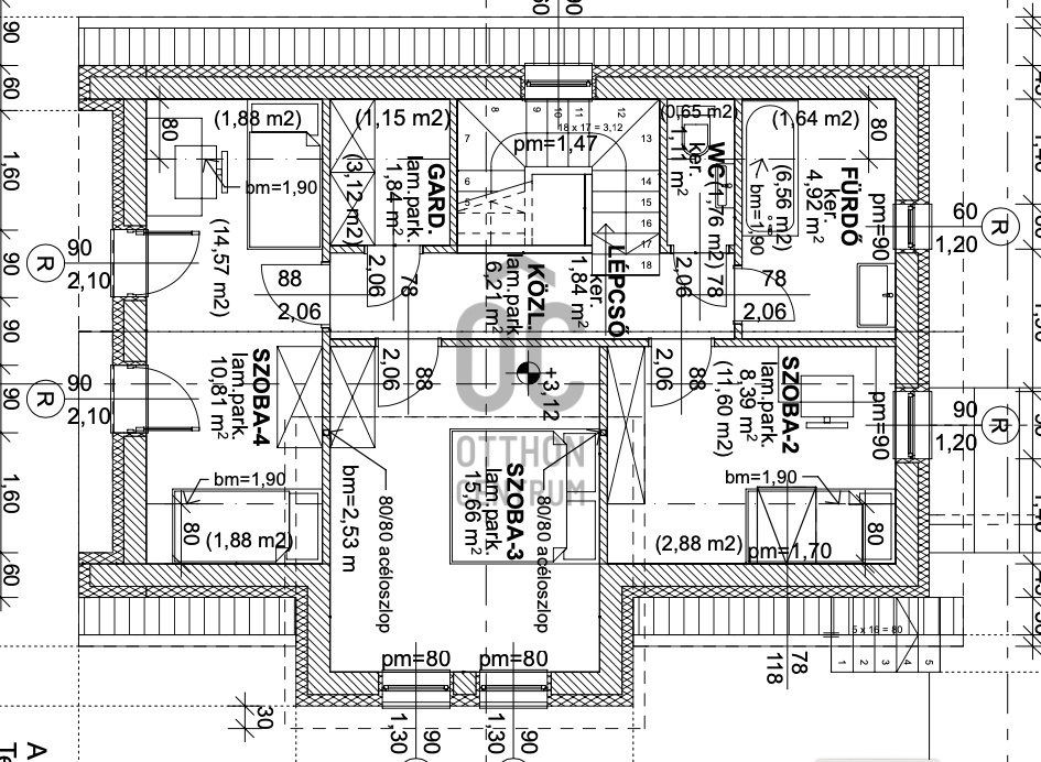
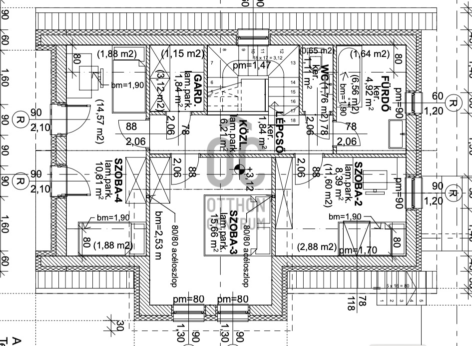
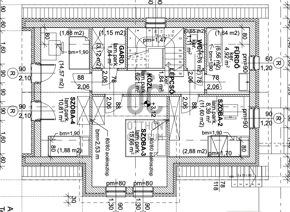
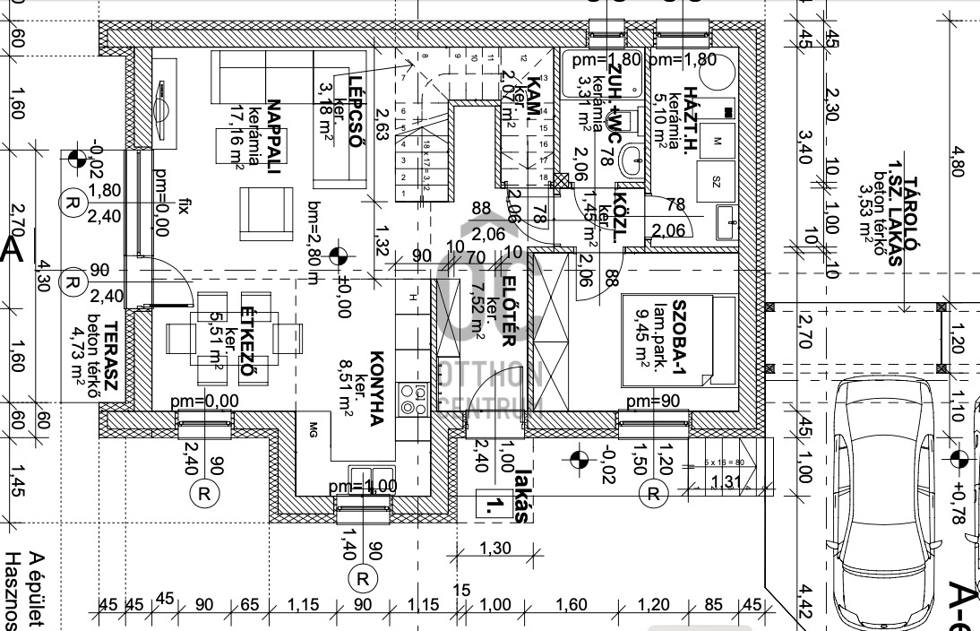
Összesen 6 ház, 3x2 lakóépület épül (A, B, C épületek), mind önálló, saját kerttel, autóbeállóval vagy garázzsal kerül értékesítésre. Az egyes házak egy közös útról közelíthetőek meg. A házak kétszintesek, 114-196 m²-esek, alsó szinten a közösségi tér, azaz előszoba, konyha, étkező nappali, zuhanyzós fürdő, WC, háztartási helyiség, kamra és 1 szoba kerül kialakításra. A tetőtéri szinten a közlekedőből 3db hálószoba, gardrób és fürdőszoba nyílik.
A C épület 2.-es lakása 3 szintes, azaz a pinceszinten kerül kialakításra egy 2 állásos garázs, a gépészeti helyiség és további tárolási lehetőség.
Ez a Pest megyei régió, Üröm, Pilisborosjenő folyamatosan fejlődő része, egy zsáktelepülés, mely Budapesttől északnyugatra, 13 km-re található. Autóval Budapesttől a 3.kerületen át a 10-es úton, vagy Csillaghegy felől is megközelíthető. Tömegközlekedés terén autóbusz az Árpád híd irányába és Ürömön vonatmegálló is elérhető, mely a Nyugati Pályaudvar fele közlekedik.
Élhető, nyugodt település minden korosztály számára, egy kis gyöngyszem a főváros közelségében. Megtalálható új építésű óvoda, bölcsőde, általános iskola nagy tornateremmel, orvosi rendelők és szociális létesítmények. Pilisborosjenő erdős hegyekkel övezve, a természet közelségében rengeteg kirándulási lehetőséget is kínál. Közelben az Egri vár másolata, Teve-szikla, , Kevélyhegyi tanösvény, levendula mezők, lovardák, a pilisborosjenői szőlővidék található.
Bővebb információért, műszaki tartalommal, megtekintéssel kapcsolatban keressen bizalommal!
A telek Pilisborosjenőn csodálatos környezetben, a pilisi Nagy-Kevély lábánál fekszik, melyről gyönyörű panoráma tárul elénk a környező hegyekre, településekre, este a Parlament látványa is lenyűgöző.
A házak magas műszaki tartalommal, energiahatékony megoldásokkal és prémium minőségű anyagokkal kerülnek kialakításra az épület szerkezetétől egészen a látható és tapintható anyagokig. Az épület ’A’ energetikai besorolású, korszerű anyagokból és technológiákkal épül, ezért gazdaságosan üzemeltethető. A padlófűtés hőszivattyúról működik, míg a hűtésért split klímák felelnek., melyek alternatív fűtési megoldást is nyújtanak.
Összesen 6 ház, 3x2 lakóépület épül (A, B, C épületek), mind önálló, saját kerttel, autóbeállóval vagy garázzsal kerül értékesítésre. Az egyes házak egy közös útról közelíthetőek meg. A házak kétszintesek, 114-196 m²-esek, alsó szinten a közösségi tér, azaz előszoba, konyha, étkező nappali, zuhanyzós fürdő, WC, háztartási helyiség, kamra és 1 szoba kerül kialakításra. A tetőtéri szinten a közlekedőből 3db hálószoba, gardrób és fürdőszoba nyílik.
A C épület 2.-es lakása 3 szintes, azaz a pinceszinten kerül kialakításra egy 2 állásos garázs, a gépészeti helyiség és további tárolási lehetőség.
Ez a Pest megyei régió, Üröm, Pilisborosjenő folyamatosan fejlődő része, egy zsáktelepülés, mely Budapesttől északnyugatra, 13 km-re található. Autóval Budapesttől a 3.kerületen át a 10-es úton, vagy Csillaghegy felől is megközelíthető. Tömegközlekedés terén autóbusz az Árpád híd irányába és Ürömön vonatmegálló is elérhető, mely a Nyugati Pályaudvar fele közlekedik.
Élhető, nyugodt település minden korosztály számára, egy kis gyöngyszem a főváros közelségében. Megtalálható új építésű óvoda, bölcsőde, általános iskola nagy tornateremmel, orvosi rendelők és szociális létesítmények. Pilisborosjenő erdős hegyekkel övezve, a természet közelségében rengeteg kirándulási lehetőséget is kínál. Közelben az Egri vár másolata, Teve-szikla, , Kevélyhegyi tanösvény, levendula mezők, lovardák, a pilisborosjenői szőlővidék található.
Bővebb információért, műszaki tartalommal, megtekintéssel kapcsolatban keressen bizalommal!
Registration Number
P4715-1-01-NA-001
Property Details
Sales
for sale
Legal Status
new
Character
house
Construction Method
brick
Net Size
114 m²
Gross Size
124 m²
Plot Size
312 m²
Size of Terrace / Balcony
5 m²
Garden Size
249 m²
Heating
values.realestate.futes.27
Ceiling Height
265 cm
Number of Levels Within the Property
2
Orientation
South-West
Condition
Excellent
Condition of Facade
Excellent
Neighborhood
quiet, green
Year of Construction
2026
Number of Bathrooms
2
Condominium Garden
yes
Garage
Included in the price
Number of Covered Parking Spots
1
Water
Available
Gas
Available
Electricity
Available
Sewer
Available
Storage
Independent
Rooms
open-plan kitchen and living room
31.5 m²
room
9.45 m²
entryway
7.5 m²
shower
3.3 m²
utility room
5.1 m²
terrace
5 m²
corridor
1.5 m²
room
10.8 m²
room
15.66 m²
room
8.4 m²
bathroom
4.92 m²
toilet-washbasin
1.5 m²
wardrobe
2 m²

Plébán László
Credit Expert