165,000,000 Ft
425,000 €
- 132m²
- 4 Rooms
 
            
                                                            NYULASON ÚJ ÉPÍTÉSŰ SORHÁZ ELADÓK
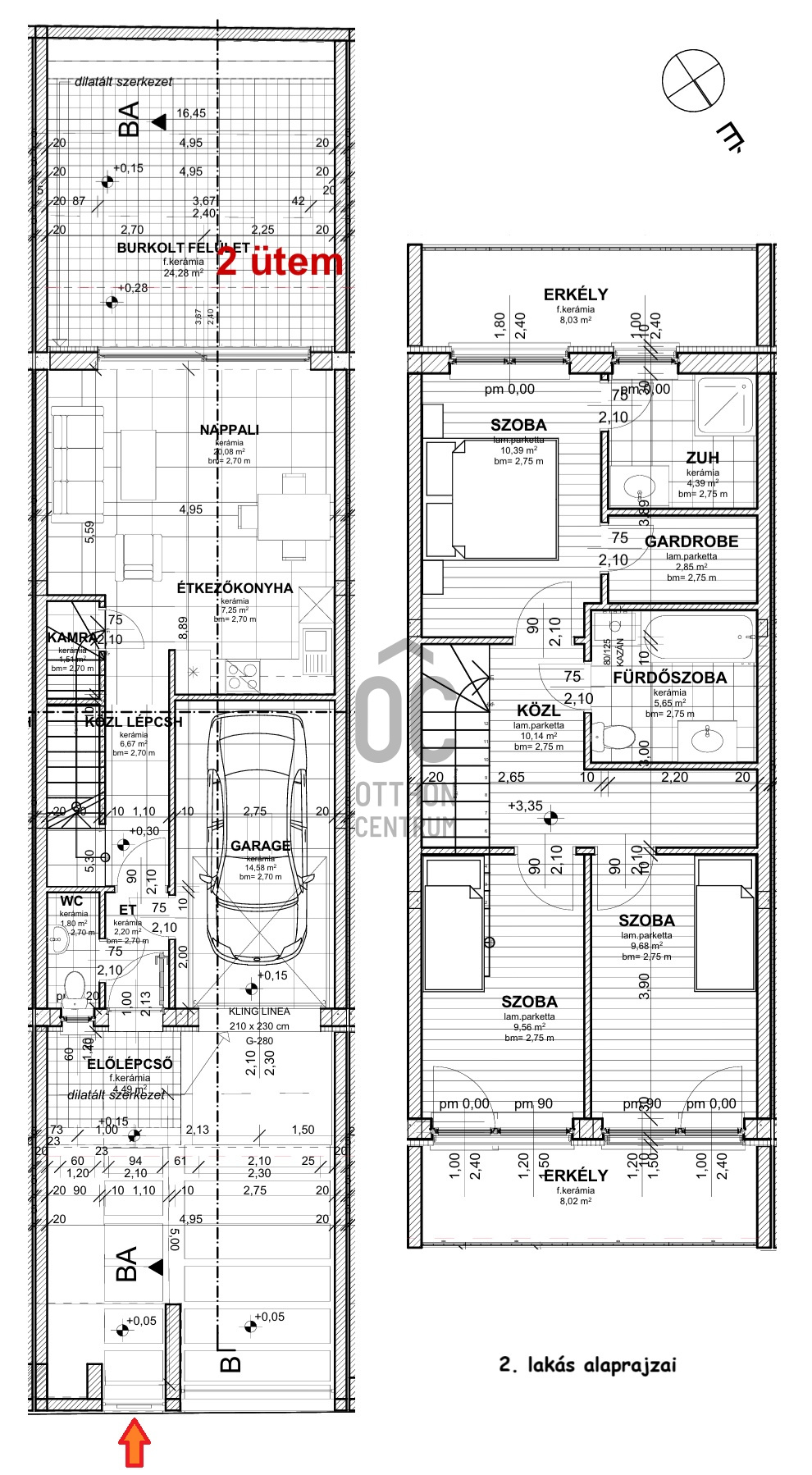
2. lakás: Br. 152 nm
- amerikaikonyhás - étkezős nappali (27 nm)
- teraszkapcsolat (24 nm)
- garázs (15 nm)
- vendégmosdó
- 3 szoba (10-10-10 nm)
- 2 fürdőszoba
- gardrób
- erkélyek (16 nm)
                    - amerikaikonyhás - étkezős nappali (27 nm)
- teraszkapcsolat (24 nm)
- garázs (15 nm)
- vendégmosdó
- 3 szoba (10-10-10 nm)
- 2 fürdőszoba
- gardrób
- erkélyek (16 nm)
Registration Number
P4623-1-0A-NA-002
                Property Details
Sales
                                        for sale
                                                                                                                                                Legal Status
                                        new
                                                                                                                                                Character
                                        house
                                                                                                                                                                                                                                                                                        Construction Method
                                        brick
                                                                                                                                                                                                                                                                                                                                                                                                                                                                                                    Net Size
                                        132 m²
                                                                                                                                                Gross Size
                                        152 m²
                                                                                                                                                Plot Size
                                        120 m²
                                                                                                                                                Size of Terrace / Balcony
                                        40 m²
                                                                                                                                                                                                                                                                                                                                                                                                                                Heating
                                        Gas circulator
                                                                                                                                                Ceiling Height
                                        270 cm
                                                                                                                                                Number of Levels Within the Property
                                        1
                                                                                                                                                Orientation
                                        South-East
                                                                                                                                                                                                                                                                                        Condition
                                        Excellent
                                                                                                                                                Condition of Facade
                                        Excellent
                                                                                                                                                                                                                                                                                        Neighborhood
                                        quiet, good transport, green
                                                                                                                                                Year of Construction
                                        2025
                                                                                                                                                Number of Bathrooms
                                        2
                                                                                                                                                                                                                                                                                                                                                                                                                                Garage
                                        Included in the price
                                                                                                                                                Garage Spaces
                                        1
                                                                                                                                                                                                                                                                                        Water
                                        Available
                                                                                                                                                Gas
                                        Available
                                                                                                                                                Electricity
                                        Available
                                                                                                                                                Sewer
                                        Available
                                                                                                                                                                                                                                                                                                                                                                                                                                                                                                                                                                                            Rooms
entryway
                                        2 m²
                                                                            other
                                        5 m²
                                                                            toilet-washbasin
                                        2 m²
                                                                            corridor
                                        7 m²
                                                                            pantry
                                        2 m²
                                                                            open-plan kitchen and dining room
                                        7 m²
                                                                            living room
                                        20 m²
                                                                            garage
                                        15 m²
                                                                            terrace
                                        24 m²
                                                                            room
                                        10 m²
                                                                            room
                                        10 m²
                                                                            bathroom-toilet
                                        6 m²
                                                                            corridor
                                        10 m²
                                                                            bedroom
                                        10 m²
                                                                            bathroom-toilet
                                        4 m²
                                                                            wardrobe
                                        3 m²
                                                                     
            
                            Czellér András
Credit Expert
 
                     
                         
                    
                 
                 
                 
                 
                 
                 
                 
                 
                 
                 
                 
                