113,458,000 Ft
300,000 €
- 62.1m²
- 3 Rooms
- 2nd floor
Tisza István tértől sétatávolságra zöldövezeti új építésű lakás eladó
Herminamező (Budapest XIV. kerület, Zugló) zöldövezeti központjában, csodás, ősfás környezetben KIS LAKÁSSZÁMÚ társasházban kínálok eladásra egy amerikai konyhás nappali + 2 hálószobás TERASZOS és ERKÉLYES lakást most épülő társasházban, magas műszaki tartalommal.
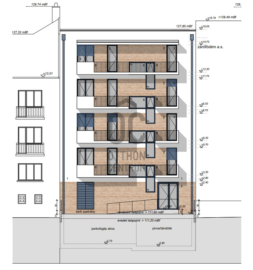
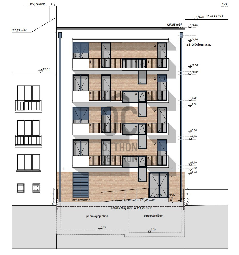
Az épületet csendes, szinte forgalommentes, egyirányú utcában alakítják ki, amerikai konyhás nappalija, erkélye utcai nézetű, a mindkét hálószobából megközelíthető terasz a belső kertre néz.
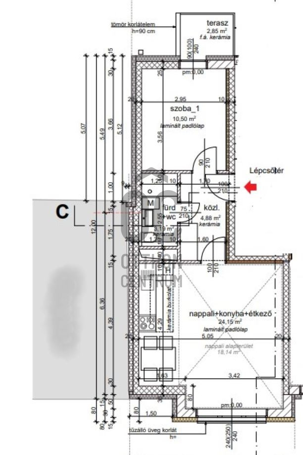
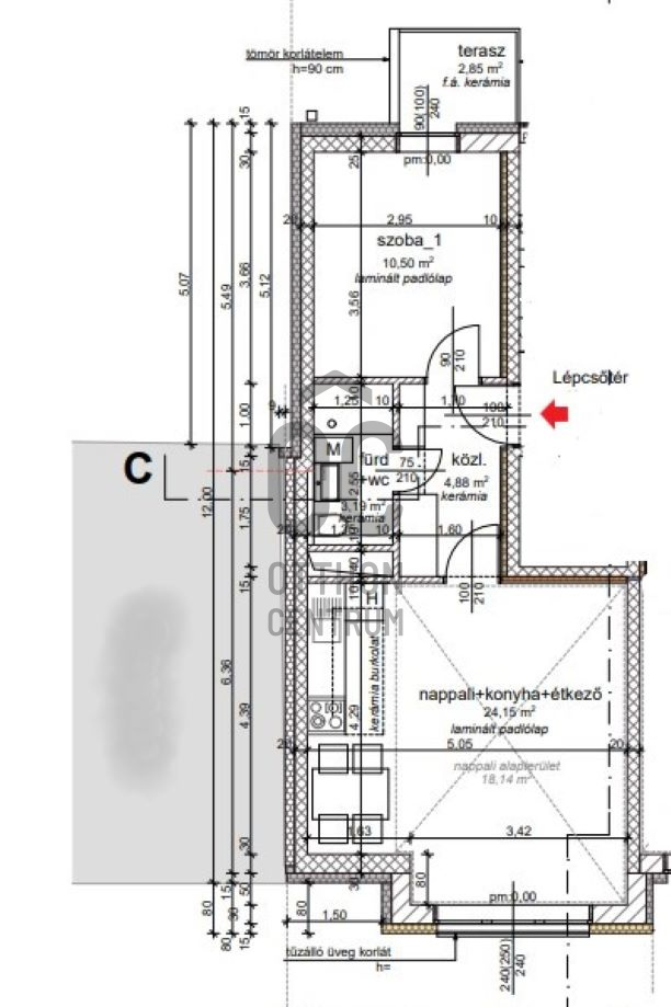
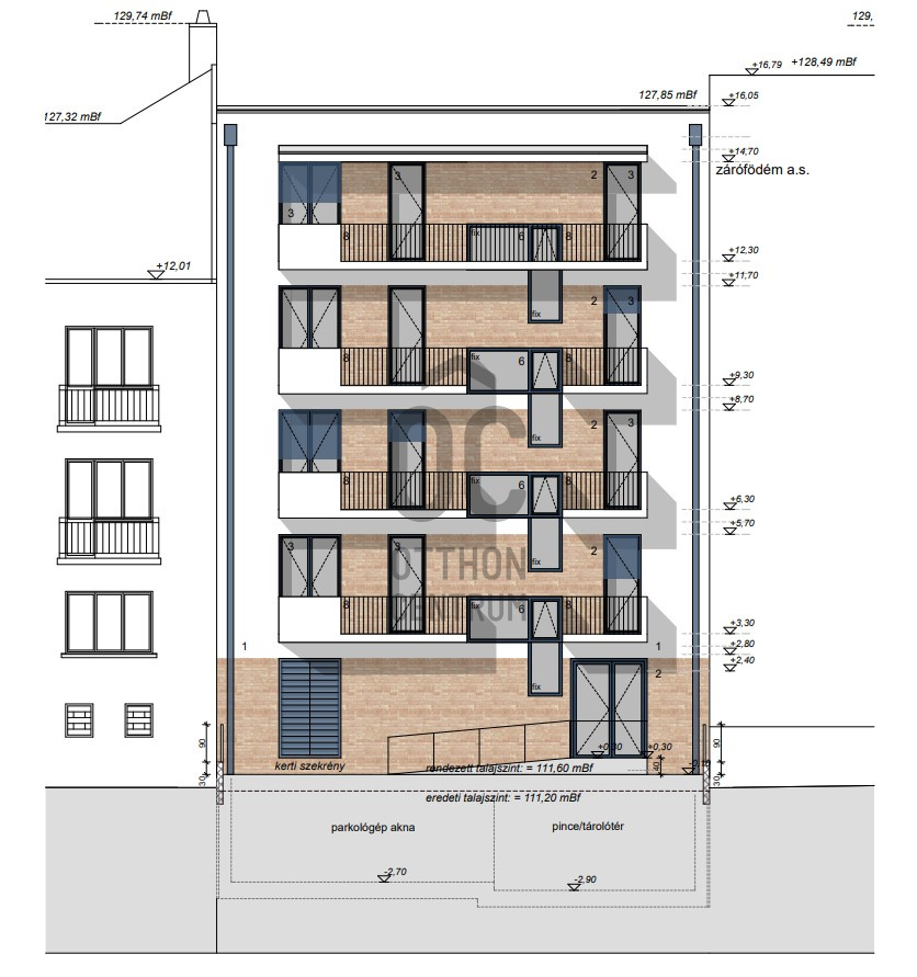
Az ötszintes épület pinceszint + 4 emeletből áll:
- a pinceszinten 2 állásos, parkológépes teremgarázs beálló, tárolók,
- a földszinten át juthatunk ki a közös kertbe, itt kerékpártárolók és szintén a parkológépes teremgarázsbeálló található,
- a zárt lépcsőházas épület lakásai az 1-4. emeleteken helyezkednek el.
A burkolóanyagok, belső nyílászárók, szaniterek, villanykapcsolók és dugaljak szabadon választhatók bizonyos összeghatárig.
A fűtést és melegvízellátást központi hőszivattyú és melegvíztároló biztosítja:
- fűtés: padlófűtés
- hűtés: a lakások hűtése nem része a műszaki tartalomnak, igény esetén fan coil vagy egyedi klíma kiépítésére van lehetőség.
Teremgarázs beálló, külön zárható, önálló száraz tároló külön vásárolható.
A KÖRNYEZETRŐL:
A Tisza István tér közelében található, a Zuglói kormányablak, üzletek, hangulatos kávézó, étterem, pékség, gyógyszertár, Uzsoki Utcai kórház, szakrendelők, bölcsőde, óvoda, iskola rövid sétán belül elérhetők.
Tömegközlekedés szempontjából is ideális, hiszen a 7, 7E, 8E, 108E, 110, 112, 133E, 32, 124, 125, 125B, 277 buszok megállója, a 3-as, 62-62/A villamosok megállója, illetve a 82-es trolimegálló rövid sétatávolságon belül található.
Bővebb információért és a megtekintéssel kapcsolatban várom hívását!
Egyedi igényekre szabott lakáshitelekkel állunk rendelkezésére.
Bankfüggetlen Hitel Centrumunk az országban elérhető összes bank és hitelintézet ajánlatát versenyezteti az Ön számára díjmentesen.
Munkatársaink nagy szakmai tapasztalattal várják Önt az előre egyeztetett időpontban akár a normál munkaidő után is.
Az épületet csendes, szinte forgalommentes, egyirányú utcában alakítják ki, amerikai konyhás nappalija, erkélye utcai nézetű, a mindkét hálószobából megközelíthető terasz a belső kertre néz.
Az ötszintes épület pinceszint + 4 emeletből áll:
- a pinceszinten 2 állásos, parkológépes teremgarázs beálló, tárolók,
- a földszinten át juthatunk ki a közös kertbe, itt kerékpártárolók és szintén a parkológépes teremgarázsbeálló található,
- a zárt lépcsőházas épület lakásai az 1-4. emeleteken helyezkednek el.
A burkolóanyagok, belső nyílászárók, szaniterek, villanykapcsolók és dugaljak szabadon választhatók bizonyos összeghatárig.
A fűtést és melegvízellátást központi hőszivattyú és melegvíztároló biztosítja:
- fűtés: padlófűtés
- hűtés: a lakások hűtése nem része a műszaki tartalomnak, igény esetén fan coil vagy egyedi klíma kiépítésére van lehetőség.
Teremgarázs beálló, külön zárható, önálló száraz tároló külön vásárolható.
A KÖRNYEZETRŐL:
A Tisza István tér közelében található, a Zuglói kormányablak, üzletek, hangulatos kávézó, étterem, pékség, gyógyszertár, Uzsoki Utcai kórház, szakrendelők, bölcsőde, óvoda, iskola rövid sétán belül elérhetők.
Tömegközlekedés szempontjából is ideális, hiszen a 7, 7E, 8E, 108E, 110, 112, 133E, 32, 124, 125, 125B, 277 buszok megállója, a 3-as, 62-62/A villamosok megállója, illetve a 82-es trolimegálló rövid sétatávolságon belül található.
Bővebb információért és a megtekintéssel kapcsolatban várom hívását!
Egyedi igényekre szabott lakáshitelekkel állunk rendelkezésére.
Bankfüggetlen Hitel Centrumunk az országban elérhető összes bank és hitelintézet ajánlatát versenyezteti az Ön számára díjmentesen.
Munkatársaink nagy szakmai tapasztalattal várják Önt az előre egyeztetett időpontban akár a normál munkaidő után is.
Registration Number
P4563-1-01-02-004
Property Details
Sales
for sale
Legal Status
new
Character
apartment
Construction Method
brick
Net Size
62.1 m²
Gross Size
71.3 m²
Size of Terrace / Balcony
9.2 m²
Heating
heat pump
Ceiling Height
270 cm
Orientation
South
Staircase Type
enclosed staircase
Condition
Excellent
Condition of Facade
Excellent
Condition of Staircase
Excellent
Year of Construction
2026
Number of Bathrooms
1
Position
street-facing
Water
Available
Electricity
Available
Sewer
Available
Elevator
available
Rooms
open-plan kitchen and living room
27.53 m²
balcony
2.7 m²
corridor
9.42 m²
bedroom
8.74 m²
bedroom
9.79 m²
terrace
6.52 m²
bathroom
3.71 m²
wardrobe
1.5 m²
toilet-washbasin
1.41 m²