255,270,000 Ft
656,000 €
- 100.5m²
- 3 Rooms
- 2nd floor










VÍZPARTI LUXUS LAKÁSOK SIÓFOKON!
Vízparti új építésű lakást keres vagy befektetne Siófokon?
A TÁRSASHÁZ közvetlenül a vízparton épül.
13+40 egyedi elrendezésű, egész évben lakható eladó apartmant kínálunk, 50-120 m2 közötti méretekben, hogy Ön biztosan megtalálja az igényeinek megfelelőt.
Átadás 2023 II. félév I.ütem
Kössék le fix áron most nyaralójukat !
Ezüstparti luxus minőségi lakások!
Balaton kedvelőinek kínáljuk eladásra.
Az újonnan épülő, luxus kategóriás társasház villa jellegű épület, amely közvetlenül a vízparton, az Ezüstpart legszebb partszakaszán épül, kis lakóközösség számára.
Az ingatlan 3 szintes, liftes téglaépület.
Ez a lakás:
Elosztása:
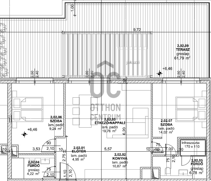
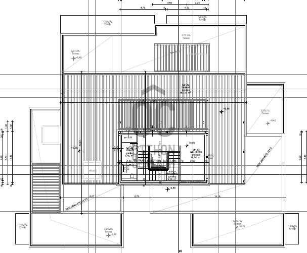
nappali, amerikai konyha+ étkező, hálószoba, hálószoba előszoba, fürdőszoba+ WC, fürdőszoba+WC, tároló, wellness, belső lépcső , 2 db terasz
2. emeleti frontlakás északi panorámával a gyönyörű Balatonra!
Műszaki jellemzők:
-3 rétegű argongázzal kitöltött műanyag nyílászárók , központi LG Multi V-5 hőszivattyús rendszerével kiépített hűtés-fűtés, 12 cm vastag külső hőszigetelő rendszere nemcsak szép, de kivételesen energia-hatékony. is.
- az apartmanok hűtése-fűtése a mai kor követelményeinek megfelelően VRF inverteres levegő-levegő hőszivattyús rendszerrel kiépítve
- fokozott hangszigetésű elválasztó falak
- a homlokzaton mészkőburkolat és színes műgyanta kötésű színezővakolat
- a teraszkorlátok rozsdamentes-szálcsiszolt oszlopok és kapaszkodók, ragasztott biztonsági üvegtáblákkal
- a szintek megközelítését a földszintről és a parkolókból 8 személyes lift biztosítja
- a folyosók, teraszok burkolata porcelán vagy gránitlap
Várható átadás: 2023, 3.negyedév
A hirdetésben szereplő képek látványtervek.
A beruházó nagy tapasztalatokkal rendelkező, megbízható, referencia épületek, lakások hosszú sorával rendelkezik.
Minden beruházását magas minőség, kiváló anyagok és kivitelezés jellemzi.
Ne hagyja ki ezt a kivételes lehetőséget, nem sok ilyen színvonalú projektet, lakást talál a vízpart mellett.
Hívjon minél előbb hogy ne maradjon le a biztos lehetőségről, hogy Öné legyen álmai nyaralója FIX ÁRON!
Várom megkeresését a projekt lakásairól vagy más Balatonparti ingatlanok érdeklődésére.
A TÁRSASHÁZ közvetlenül a vízparton épül.
13+40 egyedi elrendezésű, egész évben lakható eladó apartmant kínálunk, 50-120 m2 közötti méretekben, hogy Ön biztosan megtalálja az igényeinek megfelelőt.
Átadás 2023 II. félév I.ütem
Kössék le fix áron most nyaralójukat !
Ezüstparti luxus minőségi lakások!
Balaton kedvelőinek kínáljuk eladásra.
Az újonnan épülő, luxus kategóriás társasház villa jellegű épület, amely közvetlenül a vízparton, az Ezüstpart legszebb partszakaszán épül, kis lakóközösség számára.
Az ingatlan 3 szintes, liftes téglaépület.
Ez a lakás:
Elosztása:
nappali, amerikai konyha+ étkező, hálószoba, hálószoba előszoba, fürdőszoba+ WC, fürdőszoba+WC, tároló, wellness, belső lépcső , 2 db terasz
2. emeleti frontlakás északi panorámával a gyönyörű Balatonra!
Műszaki jellemzők:
-3 rétegű argongázzal kitöltött műanyag nyílászárók , központi LG Multi V-5 hőszivattyús rendszerével kiépített hűtés-fűtés, 12 cm vastag külső hőszigetelő rendszere nemcsak szép, de kivételesen energia-hatékony. is.
- az apartmanok hűtése-fűtése a mai kor követelményeinek megfelelően VRF inverteres levegő-levegő hőszivattyús rendszerrel kiépítve
- fokozott hangszigetésű elválasztó falak
- a homlokzaton mészkőburkolat és színes műgyanta kötésű színezővakolat
- a teraszkorlátok rozsdamentes-szálcsiszolt oszlopok és kapaszkodók, ragasztott biztonsági üvegtáblákkal
- a szintek megközelítését a földszintről és a parkolókból 8 személyes lift biztosítja
- a folyosók, teraszok burkolata porcelán vagy gránitlap
Várható átadás: 2023, 3.negyedév
A hirdetésben szereplő képek látványtervek.
A beruházó nagy tapasztalatokkal rendelkező, megbízható, referencia épületek, lakások hosszú sorával rendelkezik.
Minden beruházását magas minőség, kiváló anyagok és kivitelezés jellemzi.
Ne hagyja ki ezt a kivételes lehetőséget, nem sok ilyen színvonalú projektet, lakást talál a vízpart mellett.
Hívjon minél előbb hogy ne maradjon le a biztos lehetőségről, hogy Öné legyen álmai nyaralója FIX ÁRON!
Várom megkeresését a projekt lakásairól vagy más Balatonparti ingatlanok érdeklődésére.
Registration Number
P4131-1-01-02-012
Property Details
Sales
for sale
Legal Status
new
Character
vacation home
Type of Vacation Home
apartment
Construction Method
brick
Net Size
100.5 m²
Gross Size
100.5 m²
Size of Terrace / Balcony
57 m²
Heating
heat pump
Ceiling Height
260 cm
Orientation
North
Staircase Type
suspended corridor
Condition
Excellent
Condition of Facade
Excellent
Condition of Staircase
Excellent
Neighborhood
green
Year of Construction
2022
Number of Bathrooms
2
Position
garden-facing
Water
Available
Gas
On the street
Electricity
Available
Sewer
Available
Distance to Waterfront
waterfront
Rooms
entryway
2.68 m²
living room
15.88 m²
kitchen
5.76 m²
room
10.24 m²
bathroom-toilet
3.84 m²
staircase
5 m²
other room
33.35 m²
bathroom
3.84 m²
storage
13.56 m²
room
9.39 m²
terrace
11.47 m²
terrace
15.37 m²