201,931,000 Ft
519,000 €
- 77m²
- 2 Rooms
- 1st floor









VÍZPARTI LUXUS NYARALÓK, LAKÁSOK SIÓFOKON!
Vízparti új építésű lakást keres vagy befektetne Siófokon?
A TÁRSASHÁZ közvetlenül a vízparton épül.
13+40 egyedi elrendezésű, egész évben lakható eladó apartmant kínálunk, 50-120 m2 közötti méretekben, hogy Ön biztosan megtalálja az igényeinek megfelelőt.
Átadás 2023 II. félév I.ütem
Kössék le fix áron most nyaralójukat !
Ezüstparti luxus minőségi lakások!
Balaton kedvelőinek kínáljuk eladásra.
Az újonnan épülő, luxus kategóriás társasház villa jellegű épület, amely közvetlenül a vízparton, az Ezüstpart legszebb partszakaszán épül, kis lakóközösség számára.
Az ingatlan 3 szintes, liftes téglaépület.
Ez a lakás:
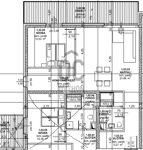
Elosztása:
nappali, amerikai konyha+ étkező, hálószoba, előszoba, fürdőszoba+ WC
Első emeleti frontlakás északi és nyugati panorámával a gyönyörű Balatonra, Tihanyra !
Műszaki jellemzők:
-3 rétegű argongázzal kitöltött műanyag nyílászárók , központi LG Multi V-5 hőszivattyús rendszerével kiépített hűtés-fűtés, 12 cm vastag külső hőszigetelő rendszere nemcsak szép, de kivételesen energia-hatékony. is.
- az apartmanok hűtése-fűtése a mai kor követelményeinek megfelelően VRF inverteres levegő-levegő hőszivattyús rendszerrel kiépítve
- fokozott hangszigetésű elválasztó falak
- a homlokzaton mészkőburkolat és színes műgyanta kötésű színezővakolat
- a teraszkorlátok rozsdamentes-szálcsiszolt oszlopok és kapaszkodók, ragasztott biztonsági üvegtáblákkal
- a szintek megközelítését a földszintről és a parkolókból 8 személyes lift biztosítja
- a folyosók, teraszok burkolata porcelán vagy gránitlap
Várható átadás: 2023, 3.negyedév
A hirdetésben szereplő képek látványtervek.
A beruházó nagy tapasztalatokkal rendelkező, megbízható, referencia épületek, lakások hosszú sorával rendelkezik.
Minden beruházását magas minőség, kiváló anyagok és kivitelezés jellemzi.
Ne hagyja ki ezt a kivételes lehetőséget, nem sok ilyen színvonalú projektet, lakást talál a vízpart mellett.
Hívjon minél előbb hogy ne maradjon le a biztos lehetőségről, hogy Öné legyen álmai nyaralója FIX ÁRON!
Várom megkeresését a projekt lakásairól vagy más Balatonparti ingatlanok érdeklődésére.
Balaton Siófok Ezüst part nyaraló új vízparti luxus fix ár megbízható beruházó medence
A TÁRSASHÁZ közvetlenül a vízparton épül.
13+40 egyedi elrendezésű, egész évben lakható eladó apartmant kínálunk, 50-120 m2 közötti méretekben, hogy Ön biztosan megtalálja az igényeinek megfelelőt.
Átadás 2023 II. félév I.ütem
Kössék le fix áron most nyaralójukat !
Ezüstparti luxus minőségi lakások!
Balaton kedvelőinek kínáljuk eladásra.
Az újonnan épülő, luxus kategóriás társasház villa jellegű épület, amely közvetlenül a vízparton, az Ezüstpart legszebb partszakaszán épül, kis lakóközösség számára.
Az ingatlan 3 szintes, liftes téglaépület.
Ez a lakás:
Elosztása:
nappali, amerikai konyha+ étkező, hálószoba, előszoba, fürdőszoba+ WC
Első emeleti frontlakás északi és nyugati panorámával a gyönyörű Balatonra, Tihanyra !
Műszaki jellemzők:
-3 rétegű argongázzal kitöltött műanyag nyílászárók , központi LG Multi V-5 hőszivattyús rendszerével kiépített hűtés-fűtés, 12 cm vastag külső hőszigetelő rendszere nemcsak szép, de kivételesen energia-hatékony. is.
- az apartmanok hűtése-fűtése a mai kor követelményeinek megfelelően VRF inverteres levegő-levegő hőszivattyús rendszerrel kiépítve
- fokozott hangszigetésű elválasztó falak
- a homlokzaton mészkőburkolat és színes műgyanta kötésű színezővakolat
- a teraszkorlátok rozsdamentes-szálcsiszolt oszlopok és kapaszkodók, ragasztott biztonsági üvegtáblákkal
- a szintek megközelítését a földszintről és a parkolókból 8 személyes lift biztosítja
- a folyosók, teraszok burkolata porcelán vagy gránitlap
Várható átadás: 2023, 3.negyedév
A hirdetésben szereplő képek látványtervek.
A beruházó nagy tapasztalatokkal rendelkező, megbízható, referencia épületek, lakások hosszú sorával rendelkezik.
Minden beruházását magas minőség, kiváló anyagok és kivitelezés jellemzi.
Ne hagyja ki ezt a kivételes lehetőséget, nem sok ilyen színvonalú projektet, lakást talál a vízpart mellett.
Hívjon minél előbb hogy ne maradjon le a biztos lehetőségről, hogy Öné legyen álmai nyaralója FIX ÁRON!
Várom megkeresését a projekt lakásairól vagy más Balatonparti ingatlanok érdeklődésére.
Balaton Siófok Ezüst part nyaraló új vízparti luxus fix ár megbízható beruházó medence
Registration Number
P4131-1-01-01-003
Property Details
Sales
for sale
Legal Status
new
Character
vacation home
Type of Vacation Home
apartment
Construction Method
brick
Net Size
77 m²
Gross Size
88 m²
Size of Terrace / Balcony
22 m²
Heating
heat pump
Ceiling Height
260 cm
Orientation
North-West
View
river or lake view
Staircase Type
suspended corridor
Condition
Excellent
Condition of Facade
Excellent
Condition of Staircase
Excellent
Number of Bathrooms
1
Position
garden-facing
Water
Available
Gas
On the street
Electricity
Available
Sewer
Available
Distance to Waterfront
waterfront
Rooms
entryway
9.21 m²
open-plan kitchen and dining room
15.41 m²
living room
21.66 m²
bathroom-toilet
6.31 m²
room
13.53 m²
balcony
22 m²