data_sheet.details.realestate.section.main.otthonstart_flag.label
For sale new construction semi-detached house, P3997-1-B1-NA-000
Kőszeg,

89,700,000 Ft

232,000 €

  • 105.5m²
  • 4 Rooms

Kőszegen új,tégla építésű családi házak eladók

Kőszegen új, tégla építésű családi ház eladók
Kőszegen új, tégla építésű családi házak eladók az Alsó körúton. Az ingatlanok minőségi alapanyagok felhasználásával, a jelenlegi előírások betartásával épülnek,
BB energetikai besorolásnak megfelelnek. A lakóingatlan tégla építésű, szigetelt, lapostetős kivitellel, műanyag nyílászárókkal készült.
1 ikerház + 1 önálló családi ház épül egy telekre, önálló kerthasználattal.

Hasznos alapterületek: 320 nm-es saját használatú kertkapcsolat
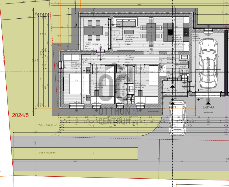
A nettó 78,99 nm -es ingatlan elosztása - földszintes: 3 hálószoba + nappali-konyha-étkező + fürdő-wc, vendég wc-mosdó.
A hálószobák átlagosan 10 nm-esek, a nappali - étkező 22 nm-es a meglévő tervek szerint.
Részben fedett terasz , előtér, 19,8 nm-es garázs, telek a hirdetési árban szerepel !

A szobák laminált lappal burkoltak, a többi helyiség kerámia lappal, illetve impregnált laminált padlóburkolattal szerepel a tervezetben.
Bővebb információért kérem keressen a megadott elérhetőségeken!
Várható átadás: 2026 év vége!

Registration Number

P3997-1-B1-NA-000

Property Details

Sales
for sale
Legal Status
new
Character
house
Construction Method
brick
Net Size
105.5 m²
Gross Size
112.5 m²
Plot Size
320 m²
Size of Terrace / Balcony
9.6 m²
Heating
Gas circulator
Ceiling Height
275 cm
Number of Levels Within the Property
1
Orientation
South-West
Condition
Excellent
Condition of Facade
Excellent
Neighborhood
quiet, good transport
Year of Construction
2025
Number of Bathrooms
1
Garage
Included in the price
Garage Spaces
1
Water
Available
Gas
Available
Electricity
Available
Sewer
Available

Rooms

bedroom
9.17 m²
bedroom
9.17 m²
bedroom
13.5 m²
open-plan living and dining room
21.25 m²
kitchen
5.53 m²
entryway
4.4 m²
toilet-washbasin
1.98 m²
corridor
6.85 m²
bathroom-toilet
5.14 m²
Horváth Szabina
Horváth Szabina

Credit Expert

From Our Office Listings - Kőszeg

for sale apartment

Index image
data_sheet.details.realestate.section.main.otthonstart_flag.label
14

for sale family house

Index image
data_sheet.details.realestate.section.main.otthonstart_flag.label
22

Alpok Spirit Társasház

Index image
data_sheet.details.realestate.section.main.otthonstart_flag.label
7

for sale family house

Index image
data_sheet.details.realestate.section.main.otthonstart_flag.label
35

for sale apartment

Index image
data_sheet.details.realestate.section.main.otthonstart_flag.label
15

for sale family house

Index image
21

for sale apartment

Index image
data_sheet.details.realestate.section.main.otthonstart_flag.label
22

for sale family house

Index image
data_sheet.details.realestate.section.main.otthonstart_flag.label
16

for sale family house

Index image
data_sheet.details.realestate.section.main.otthonstart_flag.label
19

for sale new construction family house

Index image
data_sheet.details.realestate.section.main.otthonstart_flag.label
10

for sale plot

Index image
4