276,132,000 Ft
705,000 €
- 122.4m²
- 3 Rooms
- 4th floor


















Luxury newly bulit apartments in the heart of Pest Broadway
Most induló tetőtér ráépítéssel kialakításra kerülő 9 lakásos projekt keretében kínálok eladásra egy minden igényt kielégítő, belső kétszintes, luxus apartmant exkluzív kialakítású galériával, télikerttel Budapest Belső VI. kerületében a Pesti Broadway szívében, a Nagymező utcában.
Pár perc sétára van a Zeneakadémia, Operaház, a világörökség részét képező Andrássy út, továbbá a Király utca, ahol számtalan kávézó, étterem, színház, egyéb kulturális és szórakozási lehetőség is megtalálható. Befektetési szempontból is kiváló lehetőségeket rejt a beruházás, hiszen a Nagymező utca szemközti oldalán nyitotta nemrégiben a kapuit a világhírű Hard Rock hálózat új szállodája.
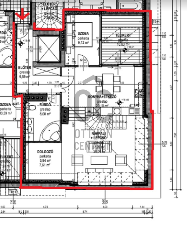
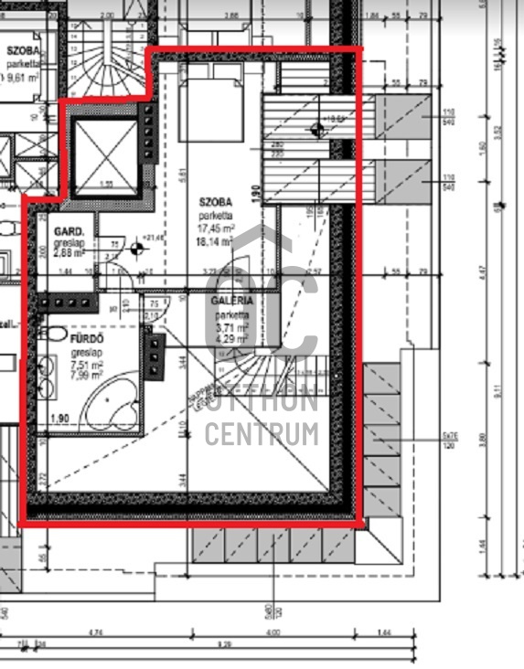
A lakások kialakításánál a legmagasabb igényeket vettük figyelembe. Talán a projekt legkülönlegesebb kialakítású lakása ez a 125,51 nm hasznos alapterületű lakás, melynek alsó szintjére egy tágas előtéren keresztül juthatunk, itt található a lakás nappalija dolgozó sarokkal, az étkezős konyha, hálószoba, az egyik fürdőszoba és a télikert. Az emeletre a nappalin keresztül vezet a lépcső, itt van a galéria a másik fürdőszoba és a gardróbbal ellátott hálószoba.
A két szintes emelet ráépítés keretében összesen 9 db., egy- illetve belső kétszintes, változatos méretű (nettó 37,66-117, nm-es) és elosztású (nappali + 1, 2, 3 hálószobás), teraszos okos otthon épül.
A vételár az alábbiakat tartalmazza:
- InnoSpot Okos Otthon rendszer előkészítése;
- konyhabútor (opcionális);
- Villeroy and Boch szaniterek, Hansgrohe csaptelepek, magas minőségű hideg- és meleg burkolatok;
- egyedi hőszivattyú, mennyezeti hűtés és padlófűtés;
- igény esetén kiváló referenciákkal rendelkező belső építész segít a lakás egyedi arculatának kialakításában.
A lakások kivitelezője 18 év tapasztalattal rendelkezik tetőterek tervezésében és kivitelezésében, a tetőterek és a Belváros szerelmese, hiszen egyszerre alkot újat és őrzi meg a régit. Tradicionális környezetben teremt - a luxus minden elemével rendelkező - modern otthonokat.
A kerületben 4 helyszínen épít összesen 40 luxus lakást.
Ne szalassza el ezt a kiváló lehetőséget, várom megtisztelő hívását!
Egyedi igényekre szabott lakáshitelekkel állunk rendelkezésére.
Bankfüggetlen hitelcentrumunk az országban elérhető összes bank és hitelintézet ajánlatát versenyezteti az Ön számára díjmentesen.
Munkatársaink nagy szakmai tapasztalattal várják Önt az előre egyeztetett időpontban akár a normál munkaidő után is.
Pár perc sétára van a Zeneakadémia, Operaház, a világörökség részét képező Andrássy út, továbbá a Király utca, ahol számtalan kávézó, étterem, színház, egyéb kulturális és szórakozási lehetőség is megtalálható. Befektetési szempontból is kiváló lehetőségeket rejt a beruházás, hiszen a Nagymező utca szemközti oldalán nyitotta nemrégiben a kapuit a világhírű Hard Rock hálózat új szállodája.
A lakások kialakításánál a legmagasabb igényeket vettük figyelembe. Talán a projekt legkülönlegesebb kialakítású lakása ez a 125,51 nm hasznos alapterületű lakás, melynek alsó szintjére egy tágas előtéren keresztül juthatunk, itt található a lakás nappalija dolgozó sarokkal, az étkezős konyha, hálószoba, az egyik fürdőszoba és a télikert. Az emeletre a nappalin keresztül vezet a lépcső, itt van a galéria a másik fürdőszoba és a gardróbbal ellátott hálószoba.
A két szintes emelet ráépítés keretében összesen 9 db., egy- illetve belső kétszintes, változatos méretű (nettó 37,66-117, nm-es) és elosztású (nappali + 1, 2, 3 hálószobás), teraszos okos otthon épül.
A vételár az alábbiakat tartalmazza:
- InnoSpot Okos Otthon rendszer előkészítése;
- konyhabútor (opcionális);
- Villeroy and Boch szaniterek, Hansgrohe csaptelepek, magas minőségű hideg- és meleg burkolatok;
- egyedi hőszivattyú, mennyezeti hűtés és padlófűtés;
- igény esetén kiváló referenciákkal rendelkező belső építész segít a lakás egyedi arculatának kialakításában.
A lakások kivitelezője 18 év tapasztalattal rendelkezik tetőterek tervezésében és kivitelezésében, a tetőterek és a Belváros szerelmese, hiszen egyszerre alkot újat és őrzi meg a régit. Tradicionális környezetben teremt - a luxus minden elemével rendelkező - modern otthonokat.
A kerületben 4 helyszínen épít összesen 40 luxus lakást.
Ne szalassza el ezt a kiváló lehetőséget, várom megtisztelő hívását!
Egyedi igényekre szabott lakáshitelekkel állunk rendelkezésére.
Bankfüggetlen hitelcentrumunk az országban elérhető összes bank és hitelintézet ajánlatát versenyezteti az Ön számára díjmentesen.
Munkatársaink nagy szakmai tapasztalattal várják Önt az előre egyeztetett időpontban akár a normál munkaidő után is.
Registration Number
P3629-1-01-04-004
Property Details
Sales
for sale
Legal Status
new
Character
apartment
Construction Method
brick
Net Size
122.4 m²
Gross Size
128.6 m²
Heating
renewable
Ceiling Height
290 cm
Number of Levels Within the Property
2
Orientation
North-West
View
city view
Staircase Type
circular corridor
Condition
Excellent
Condition of Facade
Excellent
Condition of Staircase
Excellent
Neighborhood
central
Year of Construction
2024
Number of Bathrooms
2
Position
street-facing
Water
Available
Electricity
Available
Sewer
Available
Elevator
available
Rooms
entryway
9.59 m²
bathroom-toilet
8 m²
open-plan kitchen and dining room
20.1 m²
room
9.12 m²
living room
27.28 m²
study
5.94 m²
winter garden
10.83 m²
gallery
3.71 m²
bathroom-toilet
7.51 m²
room
17.45 m²
wardrobe
2.88 m²