data_sheet.details.realestate.section.main.otthonstart_flag.label
For sale panel apartment, OHH174524
Kaposvár, Béke-Füredi lakótelep

28,900,000 Ft

75,000 €

  • 56.5m²
  • 3 Rooms
  • raised ground floor
Exclusive Contract


BEFEKTETÉSRE SZABVA – TELJESEN BERENDEZETT HÁROMSZOBÁS LAKÁS KAPOSVÁRON, PIACI ÁR ALATT!

JÓ HELYEN, JÓ ÁLLAPOTBAN, JÓ ÁRON – ÉS MÉG BÚTOROZOTT IS!
Kaposváron, a Béke–Füredi lakótelepen kínálunk eladásra egy GONDOSAN KARBANTARTOTT, HÁROMSZOBÁS MAGASFÖLDSZINTI LAKÁST, csendes, zöld környezetben. Bevásárlóközpontok, hivatalok, orvosi rendelő, buszmegálló néhány percre – minden kényelmesen elérhető.

LETISZTULT TEREK, MODERN RÉSZLETEK:

*
59 m²-es alapterület

*
Három különnyíló szoba

*
Külön fürdőszoba és WC kézmosóval

*
Erkély redőnnyel árnyékolva

*
Újratervezett és modernizált beépített szekrények

*
Klímával felszerelt nappali

*
Saját tároló

FELÚJÍTÁSOK, KORSZERŰSÍTÉSEK:

*
Radiátorok 2 éve cserélve

*
Fürdőszoba teljes felújítása 3 éve (új burkolatok, vízvezetékek)

*
Műanyag, hőszigetelt nyílászárók

*
Új bejárati ajtó

*
Modern beépített bútorok

*
Távfűtés egyedi mérővel – alacsony rezsi

*
Kultúrált lépcsőház, rendezett lakóközösség

BEFEKTETŐK, FIGYELEM! EZ AZ AJÁNLAT RITKA LEHETŐSÉG.

Az ingatlan HASZONÉLVEZETI JOGGAL TERHELT, így PIACI ÁR ALATT VÁSÁROLHATÓ MEG. A vételár TARTALMAZZA A TELJES BÚTORZATOT ÉS BERENDEZÉST IS – beleértve a MOSÓGÉPET, HŰTŐT, 4 DB TV-T és egyéb háztartási eszközöket.

Akár hosszú  értékmegőrző befektetésben gondolkodik, ez a lakás KIVÁLÓ MEGTÉRÜLÉSI LEHETŐSÉGET KÍNÁL !

Registration Number

OHH174524

Property Details

Sales
for sale
Legal Status
used
Character
apartment
Construction Method
panel
Net Size
56.5 m²
Size of Terrace / Balcony
5 m²
Heating
individual district heating
Condition
Good

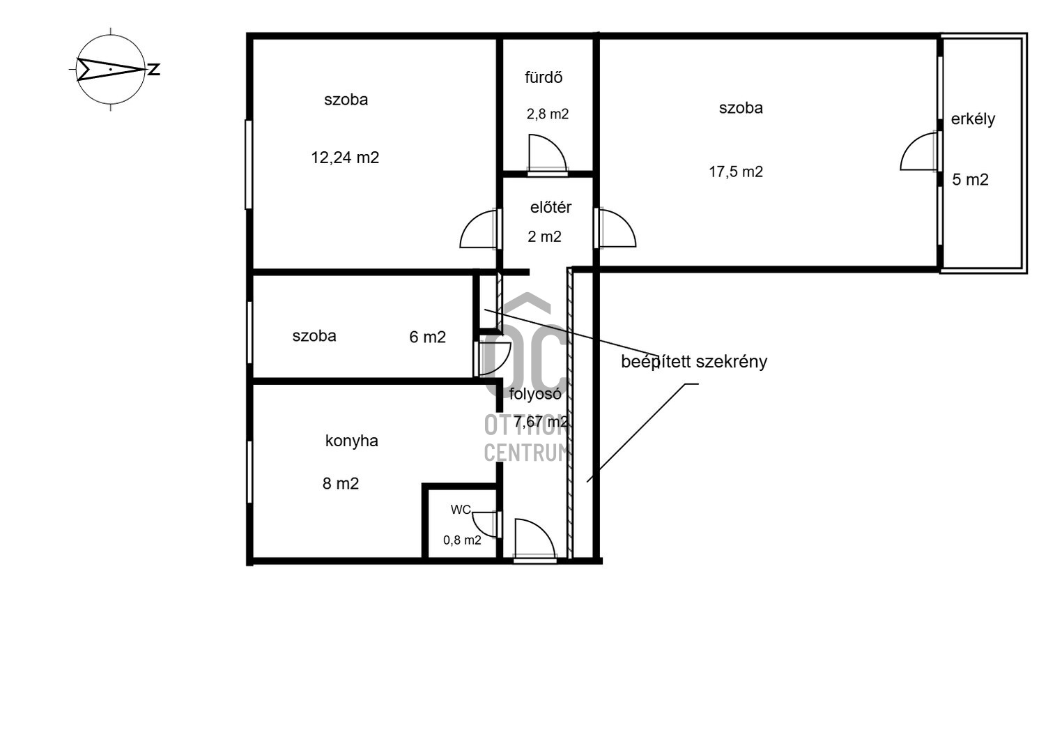
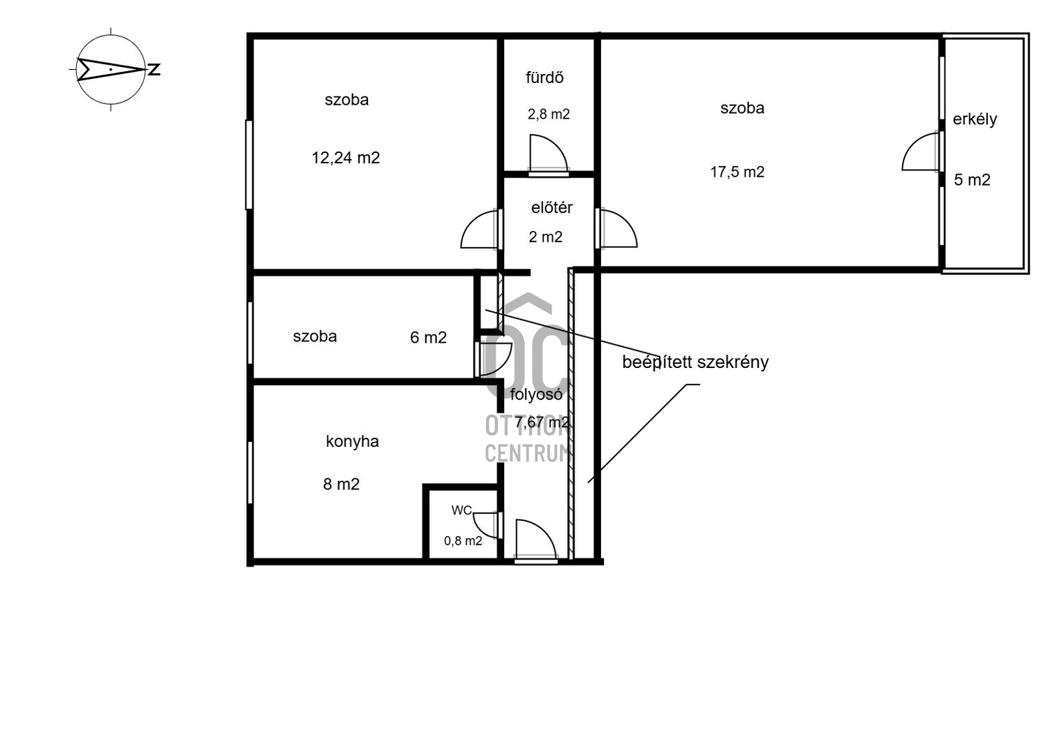
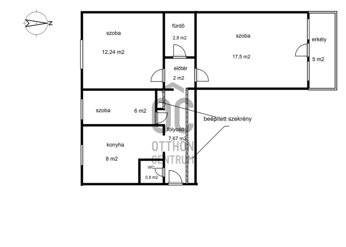
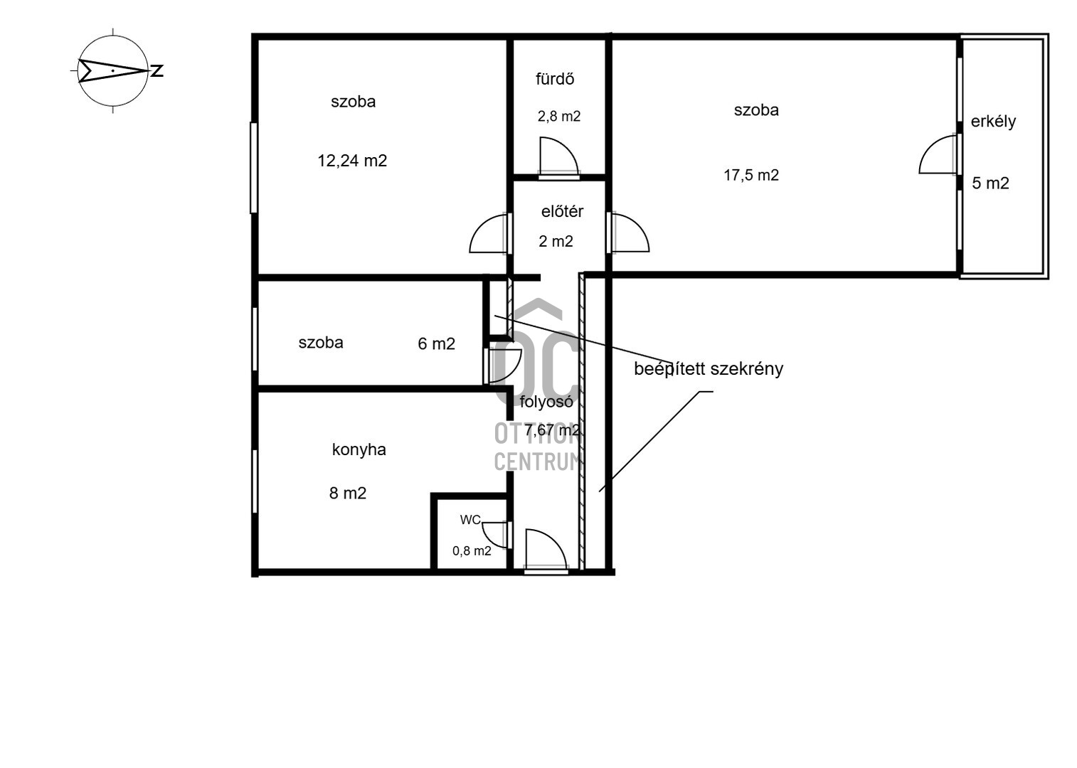
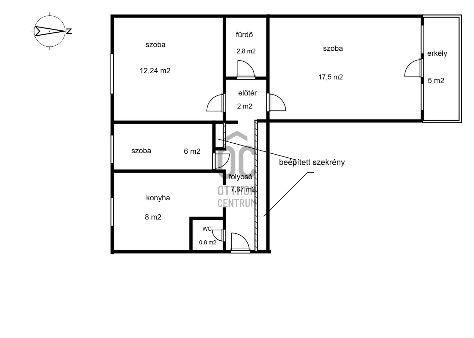
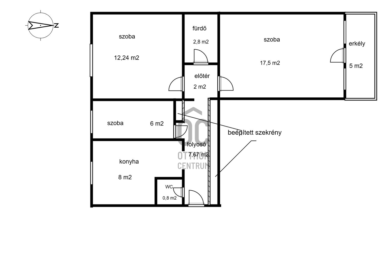
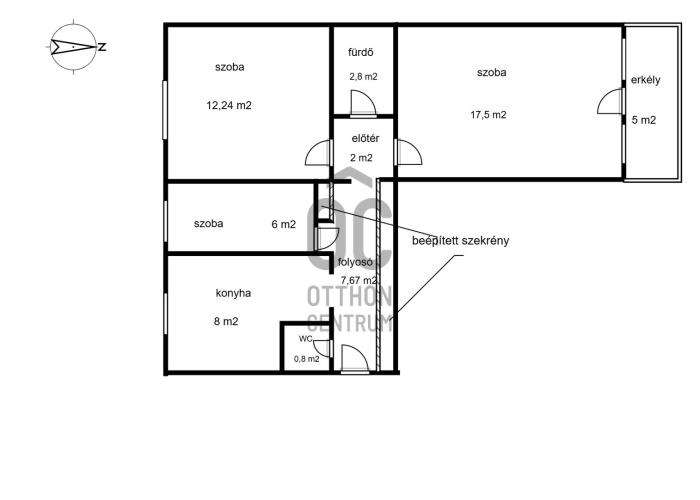
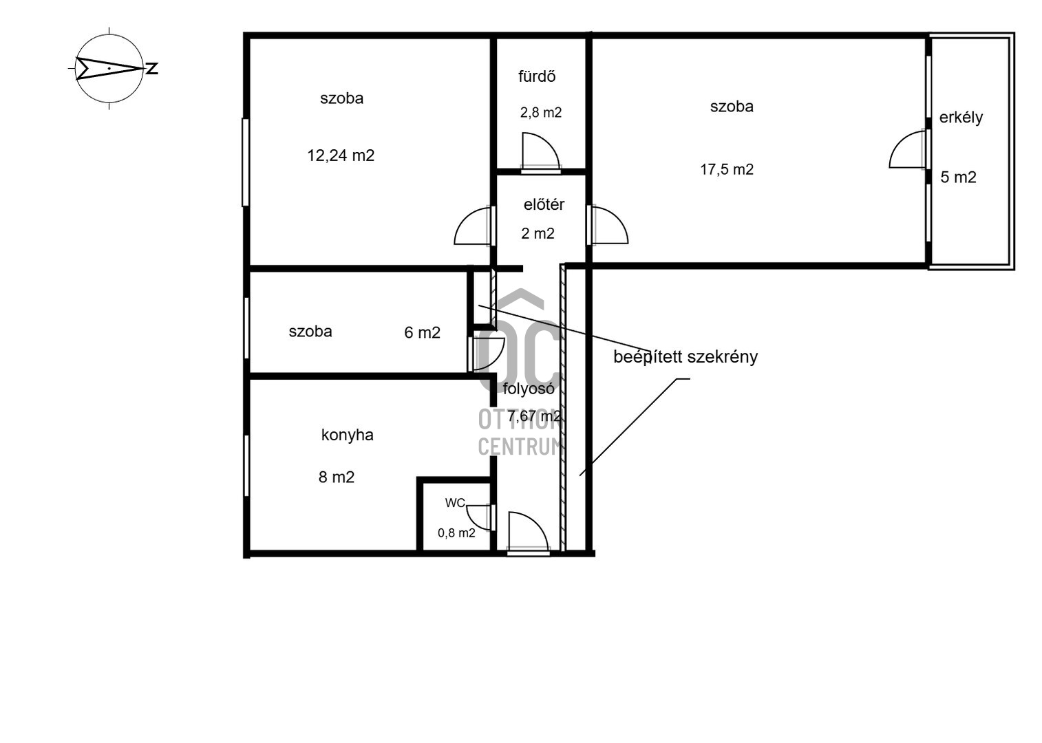
Rooms

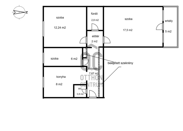
room
12.24 m²
room
17.5 m²
room
6 m²
kitchen
8 m²
entryway
7.67 m²
bathroom
2.8 m²
toilet
0.8 m²
balcony
5 m²
corridor
2 m²
Horváth Szabina
Horváth Szabina

Credit Expert

From Our Office Listings - Nagykanizsa - Fő út

for sale family house

Index image
data_sheet.details.realestate.section.main.otthonstart_flag.label
73

for sale family house

Index image
data_sheet.details.realestate.section.main.otthonstart_flag.label
44

for sale panel apartment

Index image
data_sheet.details.realestate.section.main.otthonstart_flag.label
16

for sale family house

Index image
data_sheet.details.realestate.section.main.otthonstart_flag.label
19

for sale family house

Index image
data_sheet.details.realestate.section.main.otthonstart_flag.label
18

for sale apartment

Index image
data_sheet.details.realestate.section.main.otthonstart_flag.label
20

for sale family house

Index image
data_sheet.details.realestate.section.main.otthonstart_flag.label
20

for sale family house

Index image
data_sheet.details.realestate.section.main.otthonstart_flag.label
45

for sale family house

Index image
data_sheet.details.realestate.section.main.otthonstart_flag.label
33