79,900,000 Ft
205,000 €
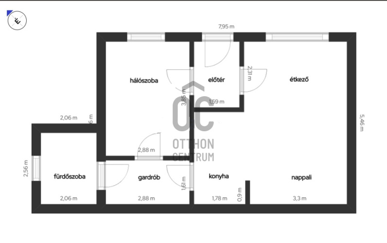
- 49m²
- 2 Rooms
- 3rd floor
Frissen felújított, bútorozott 3. emeleti lakás a Kodály körönd közelében ELADÓ!
A lakás a Városligettől, Oktogontól és a Nyugati pályaudvartól gyalogosan is könnyen megközelíthető.
Fedezze fel új otthonát Budapest szívében, ahol a modern életstílus és a csendes környezet tökéletes harmóniát alkot!
Ez a frissen felújított, exkluzív belvárosi lakás ideális választás azok számára, akik a városi élet nyújtotta lehetőségeket keresik, ugyanakkor egy olyan helyet szeretnének, ahol a mindennapok nyugalma is garantált.
Az ingatlan alapterülete 49 négyzetméter, amely két tágas szobát foglal magában, így elegendő teret biztosít a kényelmes életvitelhez.
A lakásban található egy modern, amerikai konyha, amely beépített bútorokkal és szekrényekkel van felszerelve, így a főzés és a társasági élet egyaránt örömteli élménnyé válik.
A nappali tágas, világos teret kínál, amely ideális a baráti összejövetelekhez vagy a pihenéshez egy hosszú nap után.
A fürdőszoba egyedi kialakítása és kiváló állapota pedig hozzájárul a lakás által nyújtott komfortérzethez.
A környék ellátottsága kiváló, hiszen a közelben minden szükséges szolgáltatás megtalálható: boltok, éttermek és kávézók egyaránt várják Önt.
A lakás gáz (cirko) fűtése biztosítja a kellemes hőmérsékletet a hideg téli hónapokban is, így Ön mindig otthon érezheti magát.
A lakáshoz udvari bicikli tároló használata biztosított, valamint 5m pince tároló is rendelkezésre áll.
A ház nagyon szép állapotú, lakóközössége rendezett.
Amennyiben felkeltette érdeklődését, ne habozzon kapcsolatba lépni velem, bármilyen kérdésére szívesen válaszolok, és segítek Önnek a lehető legjobb döntés meghozatalában, hívását hétvégén is fogadom!
A lakás a Városligettől, Oktogontól és a Nyugati pályaudvartól gyalogosan is könnyen megközelíthető.
Fedezze fel új otthonát Budapest szívében, ahol a modern életstílus és a csendes környezet tökéletes harmóniát alkot!
Ez a frissen felújított, exkluzív belvárosi lakás ideális választás azok számára, akik a városi élet nyújtotta lehetőségeket keresik, ugyanakkor egy olyan helyet szeretnének, ahol a mindennapok nyugalma is garantált.
Az ingatlan alapterülete 49 négyzetméter, amely két tágas szobát foglal magában, így elegendő teret biztosít a kényelmes életvitelhez.
A lakásban található egy modern, amerikai konyha, amely beépített bútorokkal és szekrényekkel van felszerelve, így a főzés és a társasági élet egyaránt örömteli élménnyé válik.
A nappali tágas, világos teret kínál, amely ideális a baráti összejövetelekhez vagy a pihenéshez egy hosszú nap után.
A fürdőszoba egyedi kialakítása és kiváló állapota pedig hozzájárul a lakás által nyújtott komfortérzethez.
A környék ellátottsága kiváló, hiszen a közelben minden szükséges szolgáltatás megtalálható: boltok, éttermek és kávézók egyaránt várják Önt.
A lakás gáz (cirko) fűtése biztosítja a kellemes hőmérsékletet a hideg téli hónapokban is, így Ön mindig otthon érezheti magát.
A lakáshoz udvari bicikli tároló használata biztosított, valamint 5m pince tároló is rendelkezésre áll.
A ház nagyon szép állapotú, lakóközössége rendezett.
Amennyiben felkeltette érdeklődését, ne habozzon kapcsolatba lépni velem, bármilyen kérdésére szívesen válaszolok, és segítek Önnek a lehető legjobb döntés meghozatalában, hívását hétvégén is fogadom!
Registration Number
H514087
Property Details
Sales
for sale
Legal Status
used
Character
apartment
Construction Method
brick
Net Size
49 m²
Gross Size
49 m²
Heating
Gas circulator
Ceiling Height
3,600 cm
Orientation
North-East
Staircase Type
circular corridor
Condition
Excellent
Condition of Facade
Excellent
Condition of Staircase
Excellent
Year of Construction
1960
Number of Bathrooms
1
Position
courtyard-facing
Water
Available
Gas
Available
Electricity
Available
Sewer
Available
Elevator
available
Storage
Independent
Rooms
open-plan kitchen and living room
24 m²
bedroom
11.08 m²
bathroom-toilet
5.27 m²
wardrobe
4.63 m²
entryway
3.67 m²
Víg Attila
Credit Expert