122,500,000 Ft
325,000 €
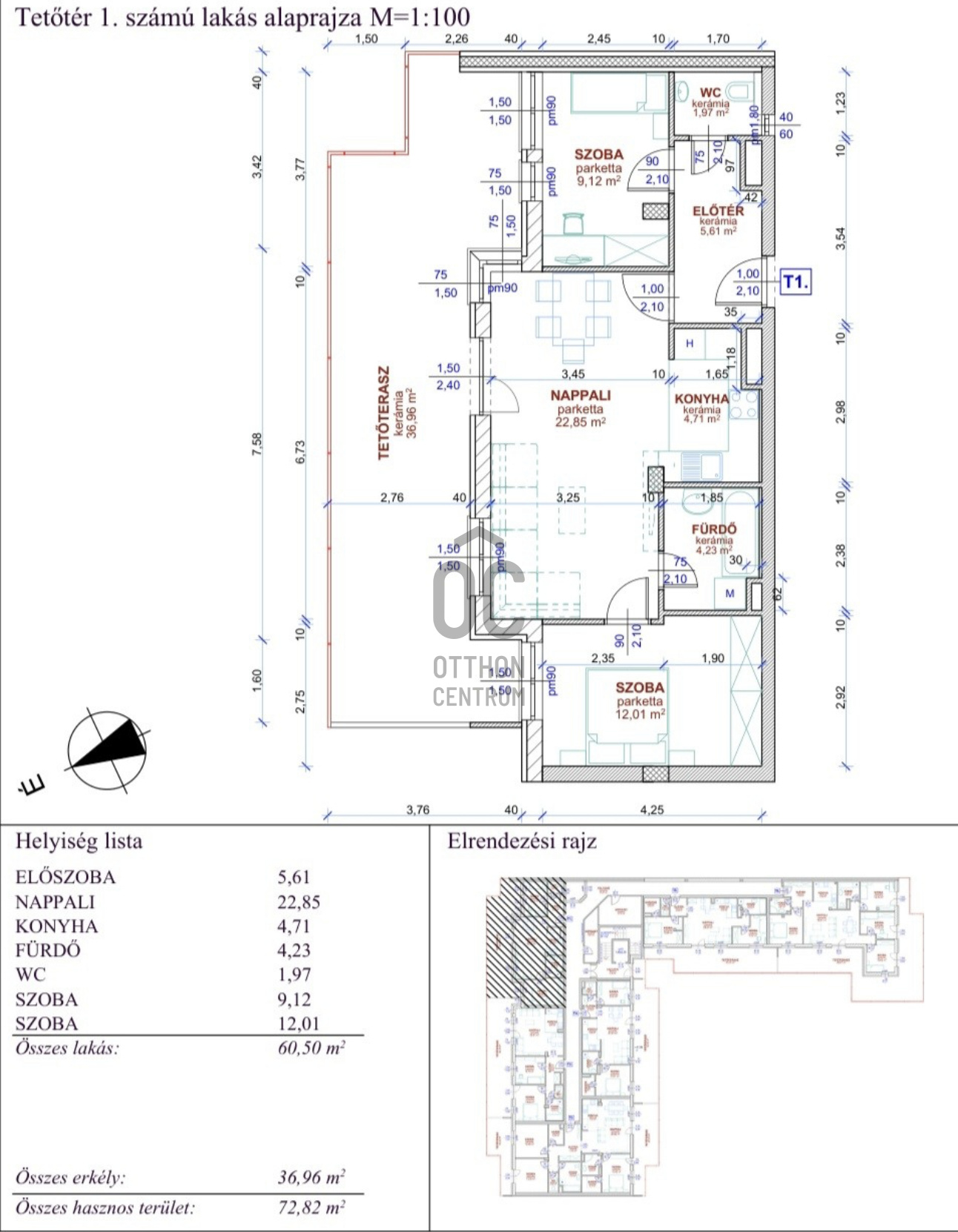
- 61m²
- 3 Rooms
- 4th floor
Kiváló állapotú 3 szobás lakás hatalmas terasszal.
Fedezze fel ezt a kivételes lehetőséget Budapest 13. kerületében, Angyalföld szívében, ahol a modern életstílus és a nyugalom találkozik. Ez a használt, de kiváló állapotú lakás ideális választás családok, fiatal szakemberek vagy befektetők számára, akik egy kényelmes, tágas otthonra vágynak. Az ingatlan 61 négyzetméteres alapterülettel rendelkezik, három világos szobájával és egy jól megtervezett fürdőszobájával tökéletesen megfelel a mai kor elvárásainak.
Az ingatlan különlegessége a 37 négyzetméteres terasz, amely nem csupán a lakás bővítményeként szolgál, hanem egy igazi oázist kínál a pihenésre és szórakozásra. Képzelje el, ahogy a nyári estéken barátokkal tölti itt az időt, vagy csak élvezi a reggeli kávéját a friss levegőn. A házközponti fűtés egyedi mérési lehetőséggel biztosítja a kellemes hőmérsékletet télen, így Önnek nem kell aggódnia a magas rezsiköltségek miatt.
Angyalföld nem csupán egy kellemes lakóhely, hanem a város egyik legdinamikusabban fejlődő területe is. A környék biztonságos, csendes utcákkal és zöld területekkel várja Önt. A közlekedési lehetőségek széles választéka garantálja, hogy könnyedén elérheti Budapest bármely pontját. A közeli metró- és buszmegállók, valamint a villamosvonalak gyors és kényelmes utazást biztosítanak, legyen szó munkába járásról vagy a város felfedezéséről. Ezen kívül a környéken számos bolt, étterem és szórakozási lehetőség található, így minden szükséges szolgáltatás karnyújtásnyira van.
A közeli parkok és játszóterek ideális helyszínt biztosítanak a családok számára, ahol a gyerekek biztonságos környezetben játszhatnak. Az ingatlan elhelyezkedése lehetővé teszi, hogy a városi élet nyüzsgésétől távol, mégis minden fontos dologhoz közel élvezhesse a mindennapokat. Bármilyen kérdése merülne fel ezzel a kivételes ingatlannal kapcsolatban, kérem, ne habozzon felkeresni.
Szívesen állok rendelkezésére, hogy minden részletet megosszak Önnel, és segítsek megtalálni álmai otthonát vagy befektetési lehetőségét. Az ingatlanpiac folyamatosan változik, ezért érdemes mihamarabb lépni, hogy ne maradjon le erről a nagyszerű lehetőségről!
Az ingatlan különlegessége a 37 négyzetméteres terasz, amely nem csupán a lakás bővítményeként szolgál, hanem egy igazi oázist kínál a pihenésre és szórakozásra. Képzelje el, ahogy a nyári estéken barátokkal tölti itt az időt, vagy csak élvezi a reggeli kávéját a friss levegőn. A házközponti fűtés egyedi mérési lehetőséggel biztosítja a kellemes hőmérsékletet télen, így Önnek nem kell aggódnia a magas rezsiköltségek miatt.
Angyalföld nem csupán egy kellemes lakóhely, hanem a város egyik legdinamikusabban fejlődő területe is. A környék biztonságos, csendes utcákkal és zöld területekkel várja Önt. A közlekedési lehetőségek széles választéka garantálja, hogy könnyedén elérheti Budapest bármely pontját. A közeli metró- és buszmegállók, valamint a villamosvonalak gyors és kényelmes utazást biztosítanak, legyen szó munkába járásról vagy a város felfedezéséről. Ezen kívül a környéken számos bolt, étterem és szórakozási lehetőség található, így minden szükséges szolgáltatás karnyújtásnyira van.
A közeli parkok és játszóterek ideális helyszínt biztosítanak a családok számára, ahol a gyerekek biztonságos környezetben játszhatnak. Az ingatlan elhelyezkedése lehetővé teszi, hogy a városi élet nyüzsgésétől távol, mégis minden fontos dologhoz közel élvezhesse a mindennapokat. Bármilyen kérdése merülne fel ezzel a kivételes ingatlannal kapcsolatban, kérem, ne habozzon felkeresni.
Szívesen állok rendelkezésére, hogy minden részletet megosszak Önnel, és segítsek megtalálni álmai otthonát vagy befektetési lehetőségét. Az ingatlanpiac folyamatosan változik, ezért érdemes mihamarabb lépni, hogy ne maradjon le erről a nagyszerű lehetőségről!
Registration Number
H513840
Property Details
Sales
for sale
Legal Status
used
Character
apartment
Construction Method
brick
Net Size
61 m²
Gross Size
98 m²
Size of Terrace / Balcony
37 m²
Heating
central heating
Ceiling Height
270 cm
Number of Levels Within the Property
1
Orientation
North-East
Staircase Type
enclosed staircase
Condition
Excellent
Condition of Facade
Excellent
Condition of Staircase
Good
Neighborhood
quiet, good transport
Year of Construction
2019
Number of Bathrooms
1
Position
street-facing
Water
Available
Gas
Available
Electricity
Available
Sewer
Available
Elevator
available
Rooms
living room
23 m²
study
12 m²
bedroom
9 m²
entryway
6 m²
kitchen
5 m²
bathroom
4 m²
toilet
2 m²
terrace
37 m²