data_sheet.details.realestate.section.main.otthonstart_flag.label
For sale apartment,
H512954
Szekszárd, Felsőváros
42,900,000 Ft
114,000 €
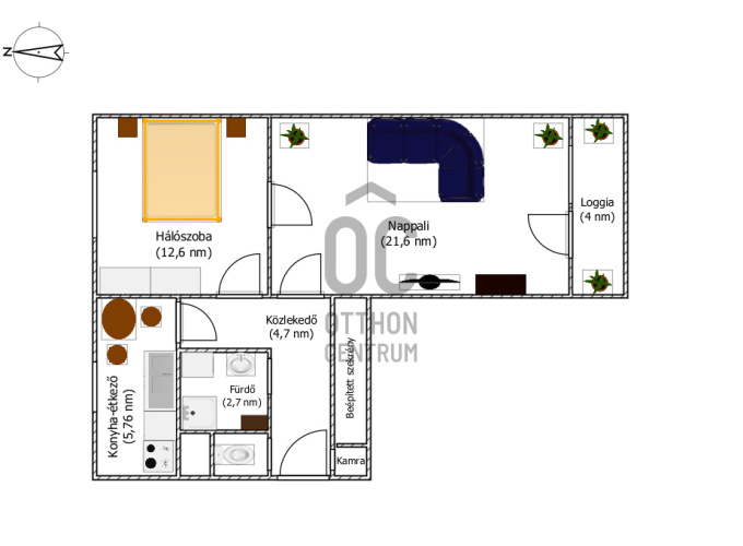
- 54m²
- 2 Rooms
- 1st floor
Első emeleti, 2 szobás, netto 54 nm-es, erkélyes lakás eladó Szekszárdon!
A szekszárdi belváros közelében, parkos-fás övezetben található ez a remek elrendezésű, déli loggiával rendelkező, jó állapotú lakás.
Előnyei közül kiemelném:
* klimatizált lakás
* gazdaságos konvektoros fűtés
* esztétikus cserépkályha biztosítja az alternatív megoldást a gázfűtés mellett
* a szobákban fa parketta burkolat
* felújított fürdőszoba
* WC külön helyiségben
* minden irányból fűtött lakások veszik körbe az ingatlant
* 1 db külső nyílászáró hőszigetelő műanyagra cserélve
* ingyenes parkolási lehetőség az épület mellett
* önálló és közös tároló az alagsorban
* tehermentes ingatlan
* az ingatlan jelenleg nem lakott, rövid időn belül birtokba adható
Mind a kedvelt lokáció, mind az elhelyezkedés, a könnyű megközelíthetőség, a kedvező infrastruktúra okán meleg szívvel ajánlom úgy egyedülállók, mint ahogy családosok, de akár befektetők számára is!
Az ingatlanpiac folyamatosan változik, ezért érdemes mihamarabb dönteni, hogy ne maradjon le erről a remek lehetőségről.
Hívjon, mutatom!
Teljes körű pénzügyi megoldások ügyintézése díjmentesen:
* Bankfüggetlen hitelcenterünk díjmentesen versenyezteti minden bank és hitelintézet ajánlatát.
* Önnek nincs más dolga, mint beszélgetni munkatársunkkal, majd a megversenyeztetett ajánlatokból kiválasztani a hosszútávon is a legmegfelelőbb konstrukciót.
* Szakértőnk több mint 30 éves szakmai tapasztalattal és egyedi igényekre szabott, ügyfélbarát lakáshitelekkel, babaváró hitellel, teljes körű CSOK ügyintézéssel várja Önt előre egyeztetett időpontban.
Előnyei közül kiemelném:
* klimatizált lakás
* gazdaságos konvektoros fűtés
* esztétikus cserépkályha biztosítja az alternatív megoldást a gázfűtés mellett
* a szobákban fa parketta burkolat
* felújított fürdőszoba
* WC külön helyiségben
* minden irányból fűtött lakások veszik körbe az ingatlant
* 1 db külső nyílászáró hőszigetelő műanyagra cserélve
* ingyenes parkolási lehetőség az épület mellett
* önálló és közös tároló az alagsorban
* tehermentes ingatlan
* az ingatlan jelenleg nem lakott, rövid időn belül birtokba adható
Mind a kedvelt lokáció, mind az elhelyezkedés, a könnyű megközelíthetőség, a kedvező infrastruktúra okán meleg szívvel ajánlom úgy egyedülállók, mint ahogy családosok, de akár befektetők számára is!
Az ingatlanpiac folyamatosan változik, ezért érdemes mihamarabb dönteni, hogy ne maradjon le erről a remek lehetőségről.
Hívjon, mutatom!
Teljes körű pénzügyi megoldások ügyintézése díjmentesen:
* Bankfüggetlen hitelcenterünk díjmentesen versenyezteti minden bank és hitelintézet ajánlatát.
* Önnek nincs más dolga, mint beszélgetni munkatársunkkal, majd a megversenyeztetett ajánlatokból kiválasztani a hosszútávon is a legmegfelelőbb konstrukciót.
* Szakértőnk több mint 30 éves szakmai tapasztalattal és egyedi igényekre szabott, ügyfélbarát lakáshitelekkel, babaváró hitellel, teljes körű CSOK ügyintézéssel várja Önt előre egyeztetett időpontban.
Registration Number
H512954
Property Details
Sales
for sale
Legal Status
used
Character
apartment
Construction Method
brick
Net Size
54 m²
Gross Size
59 m²
Size of Terrace / Balcony
4 m²
Heating
gas convector
Ceiling Height
268 cm
Number of Levels Within the Property
1
Orientation
South
View
city view, Green view
Staircase Type
enclosed staircase
Condition
Average
Condition of Facade
Excellent
Condition of Staircase
Good
Neighborhood
good transport, green
Year of Construction
1965
Number of Bathrooms
1
Position
street-facing
Common Costs
12130
Water
Available
Gas
Available
Electricity
Available
Sewer
Available
Storage
Independent
Rooms
living room
22.6 m²
bedroom
12.6 m²
open-plan kitchen and dining room
5.76 m²
bathroom
2.7 m²
toilet
0.96 m²
corridor
6.45 m²
pantry
0.84 m²
balcony
3.96 m²
Moczok Ágnes
Credit Expert