Elérhető Otthon Start hitellel
Eladó panel lakás,
H512650
Szekszárd, Bakta
37 990 000 Ft
101 000 €
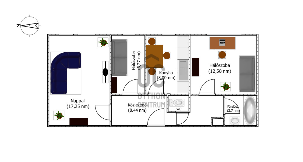
- 57m²
- 3 szoba
- földszint
Béri Balog Ádám utcában 57 nm-es, 2,5 szobás magasföldszinti lakás eladó!
Ha nem szeret lépcsőt járni, azonban vonzónak találja a 3 külünbejáratú szobát, és a keleti felvést, kérem, olvasson tovább!
A szekszárdi városközponttól gyalogos távolságra találja ezt a közepes állapotú, magasföldszinten található ingatlant, amelyet a maga igényére alakítva nagyon fog szeretni!
A lakást a remek lokáción kívül praktikus elrendezése, és a könnyű megközelíthetősége teszi értékessé.
A melegről távfűtés gondoskodik, egyedi mérőkkel.
Az egyik szoba klimatizált, a készülék még szavatos.
A négy emeletes lakóház előtt nagy számú parkolóhely biztosítja járműve elhelyezését hazaérkezéskor. Az utcában kiválóan kiépített a tömegközlekedés rendszere. A közvetlen közelben számos üzlet, vendéglátóegység, gyermekintézmény és játszótér segíti az Ön és családja mindennapjait, biztosítva ezzel kényelmét, illetve szórakozását.
Nagy méretű tároló a földszinten!
Amennyiben befektetésben gondolkodik, a fent említett paraméterek nagyon fontosak lehetnek!
Ha szívesen megnézné a lakást személyesen is, hívjon, mutatom!
Várom jelentkezését abban az esetben is, ha egyelőre csupán kérdéseket szeretne feltenni az ingatlannal kapcsolatban.
Az Ön elégedettsége a legfontosabb számunkra, és szívesen segítünk minden lépésnél!
Teljes körű pénzügyi megoldásokról díjmentesen tájékoztatunk.
Minden élethelyzetre végzünk pénzügyi elemzést.
Ha vásárolni szeretne, segítünk, hogy ezt a legjobb feltételek mellett tegye; ha eladni szeretné ingatlanát, nézzük meg, hátha érdemes meglévő hitelét átváltani.
A szekszárdi városközponttól gyalogos távolságra találja ezt a közepes állapotú, magasföldszinten található ingatlant, amelyet a maga igényére alakítva nagyon fog szeretni!
A lakást a remek lokáción kívül praktikus elrendezése, és a könnyű megközelíthetősége teszi értékessé.
A melegről távfűtés gondoskodik, egyedi mérőkkel.
Az egyik szoba klimatizált, a készülék még szavatos.
A négy emeletes lakóház előtt nagy számú parkolóhely biztosítja járműve elhelyezését hazaérkezéskor. Az utcában kiválóan kiépített a tömegközlekedés rendszere. A közvetlen közelben számos üzlet, vendéglátóegység, gyermekintézmény és játszótér segíti az Ön és családja mindennapjait, biztosítva ezzel kényelmét, illetve szórakozását.
Nagy méretű tároló a földszinten!
Amennyiben befektetésben gondolkodik, a fent említett paraméterek nagyon fontosak lehetnek!
Ha szívesen megnézné a lakást személyesen is, hívjon, mutatom!
Várom jelentkezését abban az esetben is, ha egyelőre csupán kérdéseket szeretne feltenni az ingatlannal kapcsolatban.
Az Ön elégedettsége a legfontosabb számunkra, és szívesen segítünk minden lépésnél!
Teljes körű pénzügyi megoldásokról díjmentesen tájékoztatunk.
Minden élethelyzetre végzünk pénzügyi elemzést.
Ha vásárolni szeretne, segítünk, hogy ezt a legjobb feltételek mellett tegye; ha eladni szeretné ingatlanát, nézzük meg, hátha érdemes meglévő hitelét átváltani.
Regisztrációs szám
H512650
Az ingatlan adatai
Értékesités
eladó
Jogi státusz
használt
Jelleg
lakás
Építési mód
panel
Méret
57 m²
Bruttó méret
62 m²
Fűtés
egyedi távfűtés
Belmagasság
263 cm
Lakáson belüli szintszám
1
Tájolás
Kelet
Panoráma
városi panoráma
Lépcsőház típusa
zárt lépcsőház
Állapot
Átlagos
Homlokzat állapota
Kiváló
Lépcsőház állapota
Átlagos
Környék
jó közlekedés
Építés éve
1965
Fürdőszobák száma
1
Fekvés
utcai
Közös költség
8500
Víz
Van
Villany
Van
Csatorna
Van
Tároló
Önálló
Helyiségek
nappali
17.25 m²
hálószoba
12.58 m²
hálószoba
6.27 m²
konyha
8 m²
fürdőszoba
2.7 m²
wc
1.3 m²
közlekedő
8.44 m²
Moczok Ágnes
Hitelszakértő