data_sheet.details.realestate.section.main.otthonstart_flag.label
For sale semi-detached house,
H512933
Balatonföldvár
85,000,000 Ft
223,000 €
- 60.1m²
- 3 Rooms
ÚJJÁÉPÍTETT IKERHÁZ-FÉL BALATONFÖLDVÁRON – NYUGALOM, MINŐSÉG, KIVÁLÓ ELHELYEZKEDÉS
Balatonföldvár csendes, zöldövezeti részén, mégis a központhoz közel kínáljuk megvételre ezt a teljes körűen újjáépített, modern kialakítású ikerház-felet, amely ideális választás állandó otthonnak vagy prémium nyaralónak.
A világos nappali a közös pillanatok tere, a két hálószoba pedig a nyugodt elvonulásé. A fedett terasz a nyári esték kedvenc helyszíne lesz – beszélgetésekhez, borozáshoz, elcsendesedéshez.
A saját, kb. 300 nm-es kert intim, zöld menedék, ahol a város zaja megszűnik létezni. A 40 nm-es dupla garázs nemcsak kényelmet ad, hanem szabadságot is – legyen szó autókról, hobbiról vagy tárolásról.
Főbb jellemzők:
Nappali + 2 különnyíló hálószoba
Világos, jól tagolt belső terek
Fedett terasz, amely tökéletes helyszíne a reggeli kávéknak vagy esti pihenésnek
40 nm-es dupla garázs – ritka érték a környéken
Kb. 300 nm saját kert, intim, zöld környezetben (használati megosztással)
Teljesen újjáépített műszaki és esztétikai állapot
Alacsony fenntartási költségek, korszerű megoldások
Elhelyezkedés:
Nyugodt, családias környezet
Balatonföldvár központja, kikötő, strand, üzletek rövid időn belül elérhetők
Kiváló infrastruktúra, mégis természetközeli életérzés
Felszereltség és extrák:
Teljes körűen felújított: új tető, új burkolatok, új nyílászárók, új festés
15 cm homlokzati szigetelés
Klíma Gree COMFORT Pro inverteres mono szett
Elektromos padlófűtés és elektromos törölközőszárító radiátor a fürdőben (külön kérhető energia tárolós napelem)
Szúnyoghálók és redőnyök minden ablakon
Konyhabútor (felár ellenében gépesítve)
Külön közművek
Használati megosztással osztott, gondozott kert
A telek két utcára nyílik, így a két ikernyaraló teljesen független egymástól
Kinek ajánljuk?
Akik minőségi, azonnal költözhető ingatlant keresnek a Balaton déli partján
Családoknak, pároknak, vagy akár befektetőknek
Azoknak, akik nem szeretnének kompromisszumot kötni elhelyezkedés, nyugalom és értékállóság között
További információért és megtekintésért keressen bizalommal!
Ez az ingatlan ritka lehetőség Balatonföldváron.
Kérem vegye figyelembe, a fotók látványtervek, az építkezési folyamat okán!
#újjáépítettház #ikerház #azonnalköltözhető #modernotthon #családiotthon #kertesingatlan #duplagarázs #balatonföldvár #balatondélipart #balatonközel #balatonhome #balatonlife #balatonimálom #otthontkeresek #újkezdet #állandólakhatás #nyaralóésotthon #értékálló
A világos nappali a közös pillanatok tere, a két hálószoba pedig a nyugodt elvonulásé. A fedett terasz a nyári esték kedvenc helyszíne lesz – beszélgetésekhez, borozáshoz, elcsendesedéshez.
A saját, kb. 300 nm-es kert intim, zöld menedék, ahol a város zaja megszűnik létezni. A 40 nm-es dupla garázs nemcsak kényelmet ad, hanem szabadságot is – legyen szó autókról, hobbiról vagy tárolásról.
Főbb jellemzők:
Nappali + 2 különnyíló hálószoba
Világos, jól tagolt belső terek
Fedett terasz, amely tökéletes helyszíne a reggeli kávéknak vagy esti pihenésnek
40 nm-es dupla garázs – ritka érték a környéken
Kb. 300 nm saját kert, intim, zöld környezetben (használati megosztással)
Teljesen újjáépített műszaki és esztétikai állapot
Alacsony fenntartási költségek, korszerű megoldások
Elhelyezkedés:
Nyugodt, családias környezet
Balatonföldvár központja, kikötő, strand, üzletek rövid időn belül elérhetők
Kiváló infrastruktúra, mégis természetközeli életérzés
Felszereltség és extrák:
Teljes körűen felújított: új tető, új burkolatok, új nyílászárók, új festés
15 cm homlokzati szigetelés
Klíma Gree COMFORT Pro inverteres mono szett
Elektromos padlófűtés és elektromos törölközőszárító radiátor a fürdőben (külön kérhető energia tárolós napelem)
Szúnyoghálók és redőnyök minden ablakon
Konyhabútor (felár ellenében gépesítve)
Külön közművek
Használati megosztással osztott, gondozott kert
A telek két utcára nyílik, így a két ikernyaraló teljesen független egymástól
Kinek ajánljuk?
Akik minőségi, azonnal költözhető ingatlant keresnek a Balaton déli partján
Családoknak, pároknak, vagy akár befektetőknek
Azoknak, akik nem szeretnének kompromisszumot kötni elhelyezkedés, nyugalom és értékállóság között
További információért és megtekintésért keressen bizalommal!
Ez az ingatlan ritka lehetőség Balatonföldváron.
Kérem vegye figyelembe, a fotók látványtervek, az építkezési folyamat okán!
#újjáépítettház #ikerház #azonnalköltözhető #modernotthon #családiotthon #kertesingatlan #duplagarázs #balatonföldvár #balatondélipart #balatonközel #balatonhome #balatonlife #balatonimálom #otthontkeresek #újkezdet #állandólakhatás #nyaralóésotthon #értékálló
Registration Number
H512933
Property Details
Sales
for sale
Legal Status
used
Character
house
Construction Method
brick
Net Size
60.1 m²
Gross Size
71.5 m²
Plot Size
300 m²
Size of Terrace / Balcony
11.3 m²
Heating
other
Ceiling Height
260 cm
Orientation
North-West
Condition
Excellent
Condition of Facade
Excellent
Year of Construction
1973
Number of Bathrooms
1
Garage
Included in the price
Garage Spaces
2
Water
Available
Electricity
Available
Sewer
Available
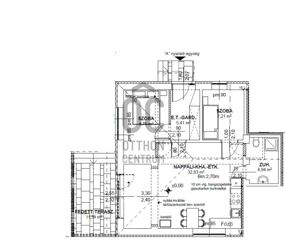
Rooms
open-plan kitchen and living room
32.83 m²
bathroom-toilet
4.94 m²
room
9.76 m²
room
7.21 m²
entryway
5.41 m²
terrace
11.39 m²
Dienes László
Credit Expert