data_sheet.details.realestate.section.main.otthonstart_flag.label
For sale family house,
H512706
Tahitótfalu
105,000,000 Ft
276,000 €
- 107m²
- 4 Rooms
„Ma kényelmes otthon, holnap kétgenerációs családi ház.”
Eladó Tahitótfalun (Tótfalu városrészben), nyugodt, rendezett környezetben, jól megközelíthető utcában egy igényesen átépített családi ház.
A 948 m²-es, szabályos téglalap alakú telek gyümölcsfákkal beültetett, gondozott, a telken belül 2–3 autó parkolása biztosított.
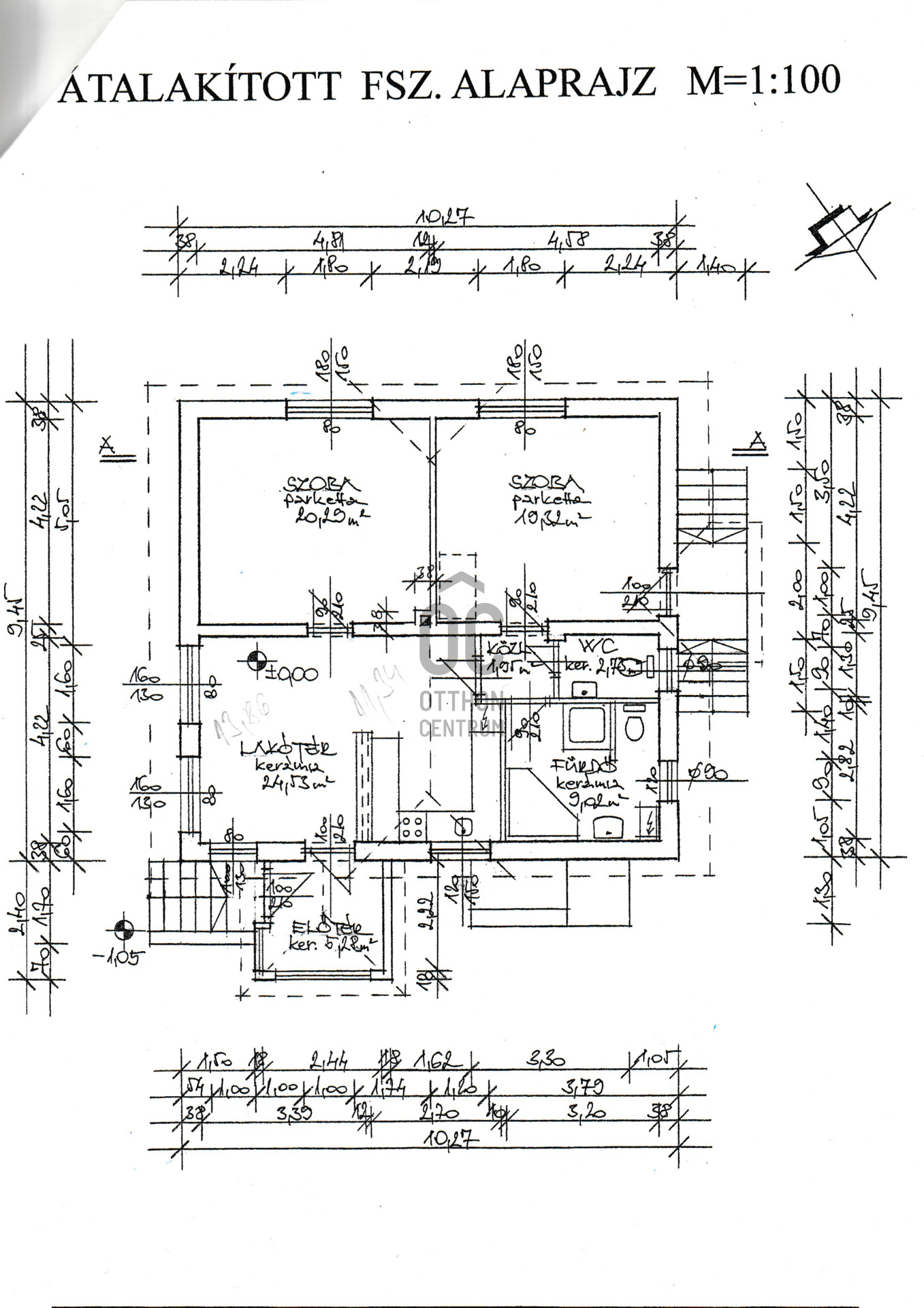
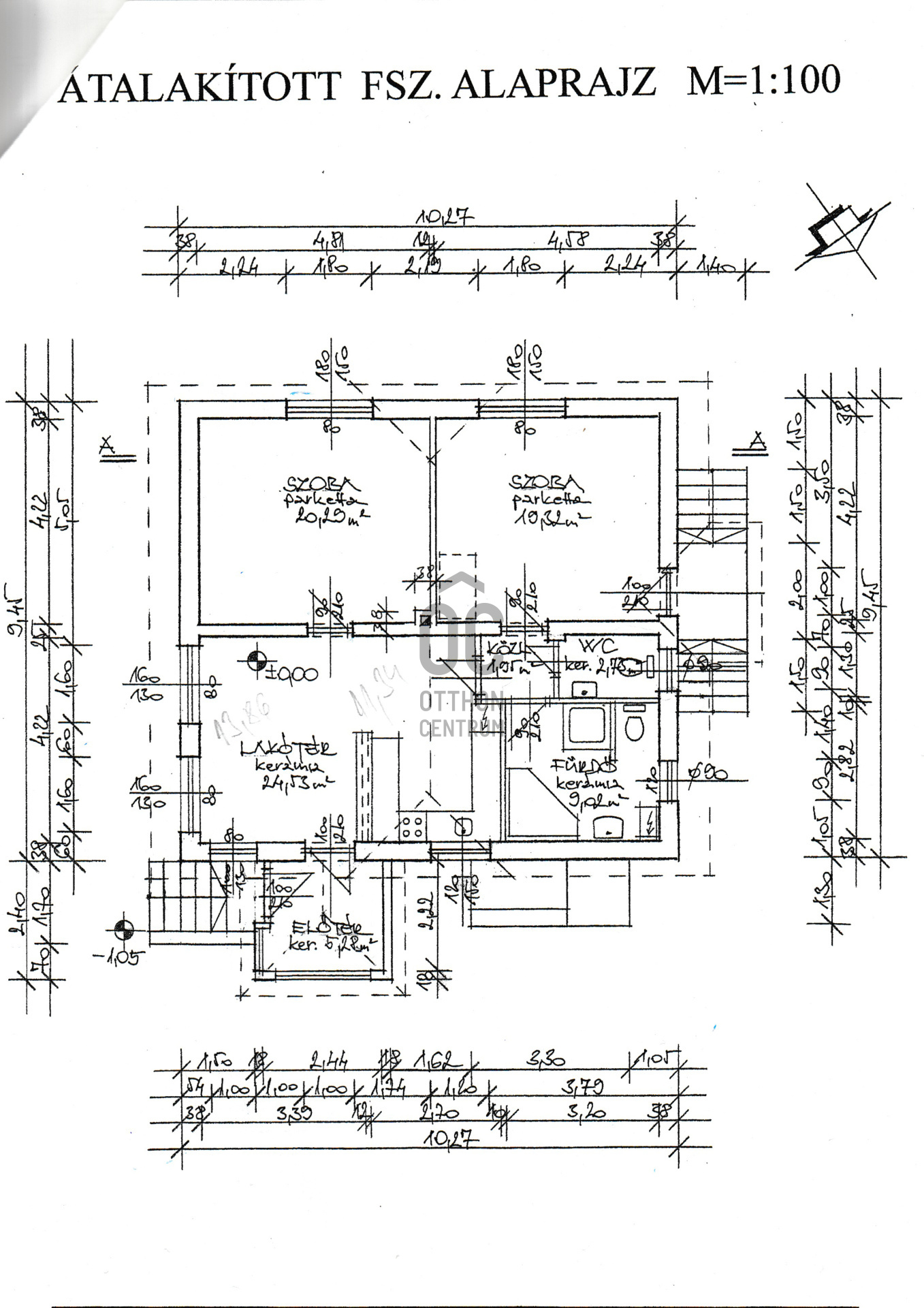
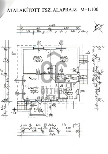
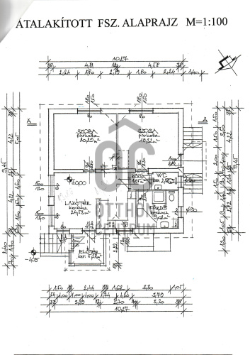
Az ingatlan 2010-ben teljes körű átépítésen esett át, jelenlegi hasznos alapterülete az alsó szinten 83 m².
Az épület jellemzői:
38-as és 30-as tégla falazat
10 cm EPS homlokzati hőszigetelés, szigetelt aljzat és födém
Rehau Geneo, 3 rétegű, 7 légkamrás nyílászárók, Maco vasalattal
Az alsó szinten elektromos és kézi mozgatású redőnyök
Fűtés és komfort:
Gáz cirkó fűtés (melegvíz-tárolós kombi kazán)
Fatüzelésű kandallókályha
Gree Amber Royal, fűtésre optimalizált klímák, H-tarifás mérőórával
Közművek:
Az ingatlan összközműves:
villany (normál tarifa 3 fázis + H-tarifa 3 fázis)
gáz, víz, csatorna
internet, riasztórendszer
Helyiségek elosztása:
Alsó szint:
2 külön nyíló szoba (az egyikben leválasztott gardrób)
amerikai konyhás nappali
fürdőszoba WC-vel, zuhanyzóval és káddal
külön WC bidével és piszoárral, hideg-meleg vizes kiállással
előszoba, közlekedő
az alsó szint két utcáról megközelíthető, két külön bejárattal rendelkezik, ami akár vállalkozás vagy kétlakásos használat szempontjából is ideális
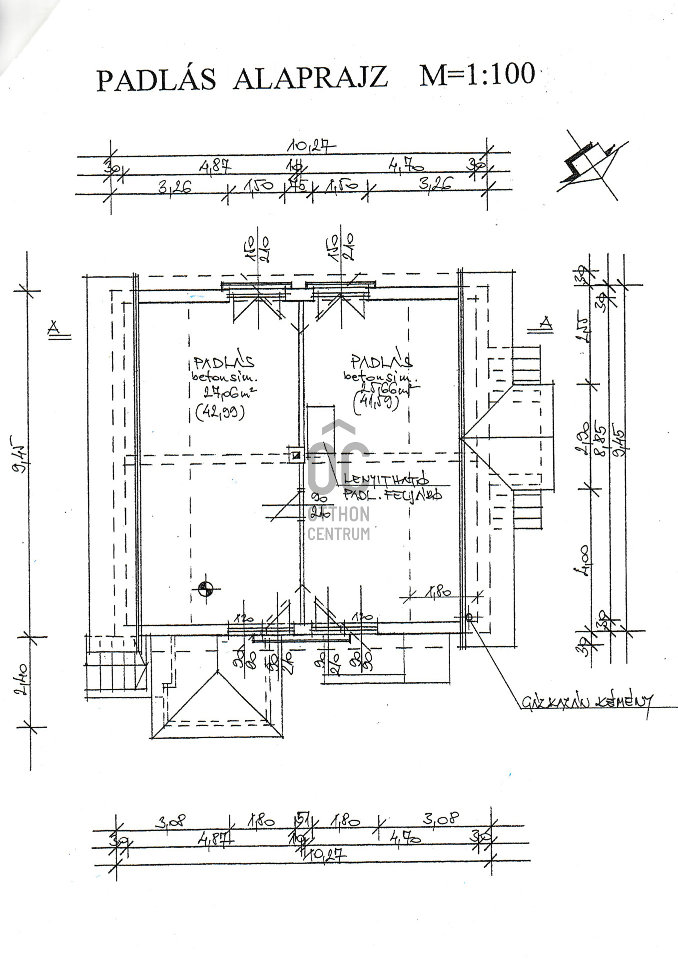
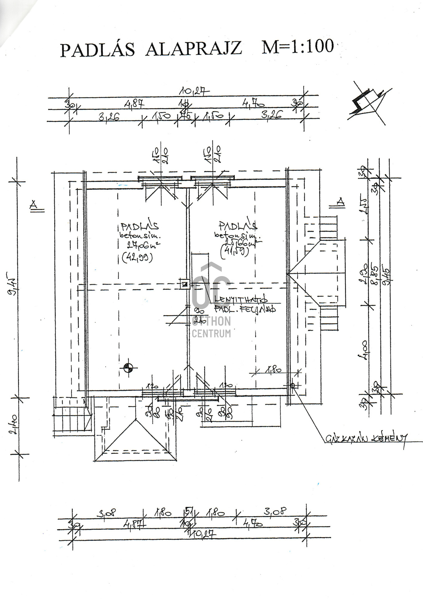
Felső szint:
A tetőtér beépítésével az ingatlan kétgenerációssá alakítható.
kb. 60 m² hasznos alapterület
homlokzati nyílászárók beépítve
teljesen új tetőszerkezet, vastag faanyaggal
Leier beton cserép fedés
közműkiállások kiépítve
Egyéb:
24 m²-es pince
melléképületek
Irányár: 105.000.000 Ft
Keressen bizalommal, minden kérdésre szívesen válaszolok!
A 948 m²-es, szabályos téglalap alakú telek gyümölcsfákkal beültetett, gondozott, a telken belül 2–3 autó parkolása biztosított.
Az ingatlan 2010-ben teljes körű átépítésen esett át, jelenlegi hasznos alapterülete az alsó szinten 83 m².
Az épület jellemzői:
38-as és 30-as tégla falazat
10 cm EPS homlokzati hőszigetelés, szigetelt aljzat és födém
Rehau Geneo, 3 rétegű, 7 légkamrás nyílászárók, Maco vasalattal
Az alsó szinten elektromos és kézi mozgatású redőnyök
Fűtés és komfort:
Gáz cirkó fűtés (melegvíz-tárolós kombi kazán)
Fatüzelésű kandallókályha
Gree Amber Royal, fűtésre optimalizált klímák, H-tarifás mérőórával
Közművek:
Az ingatlan összközműves:
villany (normál tarifa 3 fázis + H-tarifa 3 fázis)
gáz, víz, csatorna
internet, riasztórendszer
Helyiségek elosztása:
Alsó szint:
2 külön nyíló szoba (az egyikben leválasztott gardrób)
amerikai konyhás nappali
fürdőszoba WC-vel, zuhanyzóval és káddal
külön WC bidével és piszoárral, hideg-meleg vizes kiállással
előszoba, közlekedő
az alsó szint két utcáról megközelíthető, két külön bejárattal rendelkezik, ami akár vállalkozás vagy kétlakásos használat szempontjából is ideális
Felső szint:
A tetőtér beépítésével az ingatlan kétgenerációssá alakítható.
kb. 60 m² hasznos alapterület
homlokzati nyílászárók beépítve
teljesen új tetőszerkezet, vastag faanyaggal
Leier beton cserép fedés
közműkiállások kiépítve
Egyéb:
24 m²-es pince
melléképületek
Irányár: 105.000.000 Ft
Keressen bizalommal, minden kérdésre szívesen válaszolok!
Registration Number
H512706
Property Details
Sales
for sale
Legal Status
used
Character
house
Construction Method
brick
Net Size
107 m²
Gross Size
114 m²
Plot Size
948 m²
Size of Terrace / Balcony
6 m²
Heating
Gas circulator
Ceiling Height
258 cm
Number of Levels Within the Property
2
Orientation
South-East
View
Green view
Condition
Good
Condition of Facade
Good
Neighborhood
quiet, good transport, green, central
Year of Construction
2010
Number of Bathrooms
1
Number of Covered Parking Spots
1
Water
Available
Gas
Available
Electricity
Available
Sewer
Available
Multi-Generational
yes
Storage
Independent
Rooms
open-plan kitchen and living room
24.53 m²
bedroom
20.29 m²
toilet-washbasin
2.79 m²
bedroom
19.32 m²
bathroom-toilet
9.02 m²
entryway
5.28 m²
cellar
24 m²
Korcsog Melinda
Credit Expert