data_sheet.details.realestate.section.main.otthonstart_flag.label
For sale family house,
H512011
Törökbálint
81,900,000 Ft
217,000 €
- 160m²
- 4 Rooms
Classic home in the middle of Törökbálint
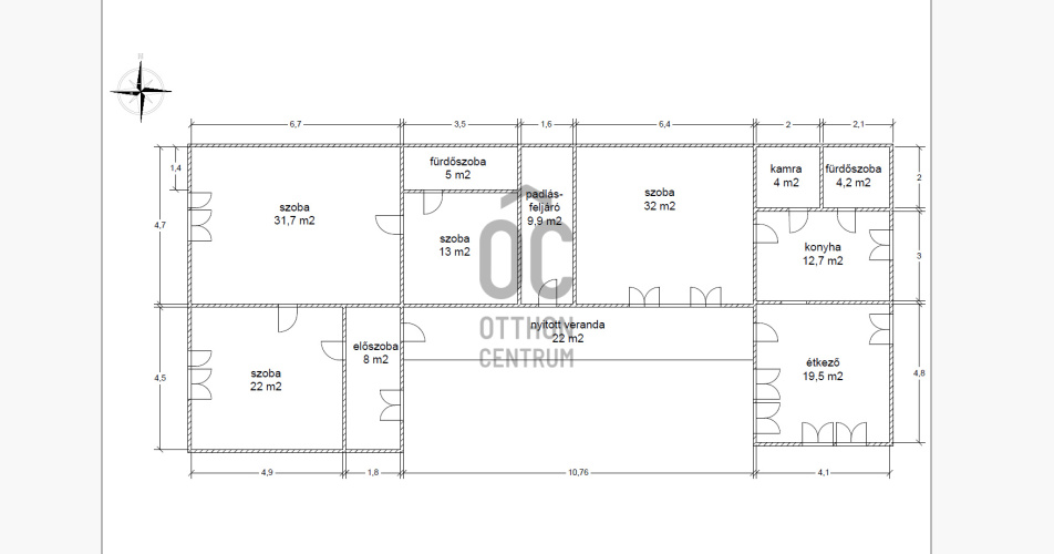
In the heart of Törökbálint, in a family-friendly neighborhood, we offer for sale this renovatable house with a floor area of 160 square meters, which provides an ideal home for families.
The property, situated on a 900 square meter plot, has expansion possibilities, making it easily adaptable to future needs. The property features two easily connectable living areas, making the house suitable for multi-generational living. The house includes a 22 square meter open veranda, which is excellent for hosting family and friends gatherings.
The large garden offers opportunities for outdoor relaxation, children's play, and living with pets. The neighborhood has excellent amenities, and due to its central location, shopping options, healthcare facilities, educational institutions, and central administrative offices are within walking distance. The excellent transportation options allow us to reach the Budapest Etele Square transport hub in a maximum of 20 minutes, regardless of traffic conditions. The friendly neighborhood creates an ideal environment for families with children. The advantages of Törökbálint's popular area cannot be overstated. Nearby green spaces and parks offer the opportunity to enjoy the closeness to nature, whether it's for a family picnic or a peaceful walk.
Discover the unparalleled opportunities of the Csok Plus program, the Otthon Start (fixed, 3% interest), and the unique market interest loans from Otthon Centrum! We are at our clients' disposal with comprehensive loan and legal advice and processing. Just point to the property, and we will take care of the rest!
I am available for any further questions by phone (the number does not accept SMS), email, and of course, in person!
The property, situated on a 900 square meter plot, has expansion possibilities, making it easily adaptable to future needs. The property features two easily connectable living areas, making the house suitable for multi-generational living. The house includes a 22 square meter open veranda, which is excellent for hosting family and friends gatherings.
The large garden offers opportunities for outdoor relaxation, children's play, and living with pets. The neighborhood has excellent amenities, and due to its central location, shopping options, healthcare facilities, educational institutions, and central administrative offices are within walking distance. The excellent transportation options allow us to reach the Budapest Etele Square transport hub in a maximum of 20 minutes, regardless of traffic conditions. The friendly neighborhood creates an ideal environment for families with children. The advantages of Törökbálint's popular area cannot be overstated. Nearby green spaces and parks offer the opportunity to enjoy the closeness to nature, whether it's for a family picnic or a peaceful walk.
Discover the unparalleled opportunities of the Csok Plus program, the Otthon Start (fixed, 3% interest), and the unique market interest loans from Otthon Centrum! We are at our clients' disposal with comprehensive loan and legal advice and processing. Just point to the property, and we will take care of the rest!
I am available for any further questions by phone (the number does not accept SMS), email, and of course, in person!
Registration Number
H512011
Property Details
Sales
for sale
Legal Status
used
Character
house
Construction Method
stone
Net Size
160 m²
Gross Size
175 m²
Plot Size
900 m²
Size of Terrace / Balcony
22 m²
Heating
Gas circulator
Ceiling Height
300 cm
Orientation
West
View
Other
Condition
To be renovated
Condition of Facade
Average
Basement
Independent
Neighborhood
quiet, good transport, green, central
Year of Construction
1950
Number of Bathrooms
2
Garage
Included in the price
Garage Spaces
2
Water
Available
Gas
Available
Electricity
Available
Sewer
Available
Multi-Generational
yes
Storage
Independent
Rooms
room
32 m²
room
32 m²
room
22 m²
room
13 m²
entryway
8 m²
bathroom-toilet
5 m²
bathroom-toilet
5 m²
kitchen
13 m²
dining room
20 m²
pantry
4 m²
corridor
10 m²