For sale apartment, H510424
Budapest VII. kerület, Középső Erzsébetváros, Izabella utca

244,900,000 Ft

633,000 €

  • 134m²
  • 5 Rooms
  • 1st floor

Befektetési célra ideális válaasztás!

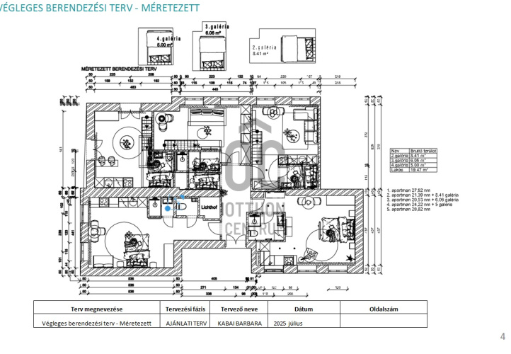
Fedezze fel Budapest szívében, az Izabella utcában, frissen felújított, modern lakásunkat, amely tökéletes választás lehet akár saját otthonának, akár befektetési célokra. Az ingatlan 134nm alapterületű, amely jelenleg 5 különálló apartmanra van bontva ügyvédi megosztással. Mindegyik rendelkezik saját fürdőszobával, és saját bejárattal amelyek a közös előszobából nyílnak. Egyben, de külön - külön is eladóak a lakások. Az 5 különálló apartmanból 1 már teljeskörűen elkészült - az a bemutató lakás. Ideális lehetőséget kínál családoknak vagy akár rövid/hosszútávú bérbeadásra is. A lakás állapota kiváló, a felújítás során a legmodernebb anyagokat és technológiákat használták, beleértve az elektromos fűtést, amely hatékony és gazdaságos megoldást nyújt a téli hónapokban. Az egyik apartmanhoz tartozik egy 2 négyzetméteres erkély is. A környék ellátottsága kiváló, hiszen a közeli üzletek, kávézók, éttermek és szórakozóhelyek mindössze pár perc sétára találhatók. A közlekedés is kitűnő, hiszen a közelben több busz- és villamosmegálló is található, így könnyedén elérheti a város bármely pontját. Ez a galériás lakás nem csupán egy otthon, hanem egy életstílus is, amely ötvözi a modern kényelmet a történelmi városrész varázsával. Amennyiben bármilyen kérdése merülne fel az ingatlannal kapcsolatban, vagy szeretné megtekinteni a lakást, ne habozzon felvenni velünk a kapcsolatot. Bizalommal fordulhat hozzánk, hiszen célunk, hogy Ön megtalálja álmai otthonát vagy a legjobb befektetési lehetőséget. Ezt a különleges ingatlant nem érdemes kihagyni!

Registration Number

H510424

Property Details

Sales
for sale
Legal Status
used
Character
apartment
Construction Method
brick
Net Size
134 m²
Gross Size
134 m²
Size of Terrace / Balcony
2 m²
Heating
electric, infrared
Ceiling Height
380 cm
Orientation
South-West
Staircase Type
enclosed staircase
Condition
Excellent
Condition of Facade
Good
Condition of Staircase
Good
Neighborhood
good transport, central
Year of Construction
1872
Number of Bathrooms
5
Position
street-facing
Common Costs
45230
Water
Available
Electricity
Available
Sewer
Available
Elevator
available

Rooms

room
27.92 m²
room
21.39 m²
gallery
8.41 m²
room
20.53 m²
gallery
6.06 m²
room
24.22 m²
gallery
5 m²
room
28.82 m²
entryway
11 m²
balcony
2 m²

From Our Office Listings - III. kerület - Flórián tér

for sale semi-detached house

Index image
12

for sale apartment

Index image
16

for sale row house

Index image
17

for sale apartment

Index image
19

for sale apartment

Index image
6

for sale new construction semi-detached house

Index image
data_sheet.details.realestate.section.main.otthonstart_flag.label
13

for sale apartment

Index image
data_sheet.details.realestate.section.main.otthonstart_flag.label
11

for sale new construction semi-detached house

Index image
data_sheet.details.realestate.section.main.otthonstart_flag.label
12

for sale apartment

Index image
18

for sale new construction family house

Index image
data_sheet.details.realestate.section.main.otthonstart_flag.label
14