Eladó lakás, H510424
Budapest VII. kerület, Középső Erzsébetváros, Izabella utca

244 900 000 Ft

635 000 €

  • 134m²
  • 5 szoba
  • 1. emelet

Befektetési célra ideális válaasztás!

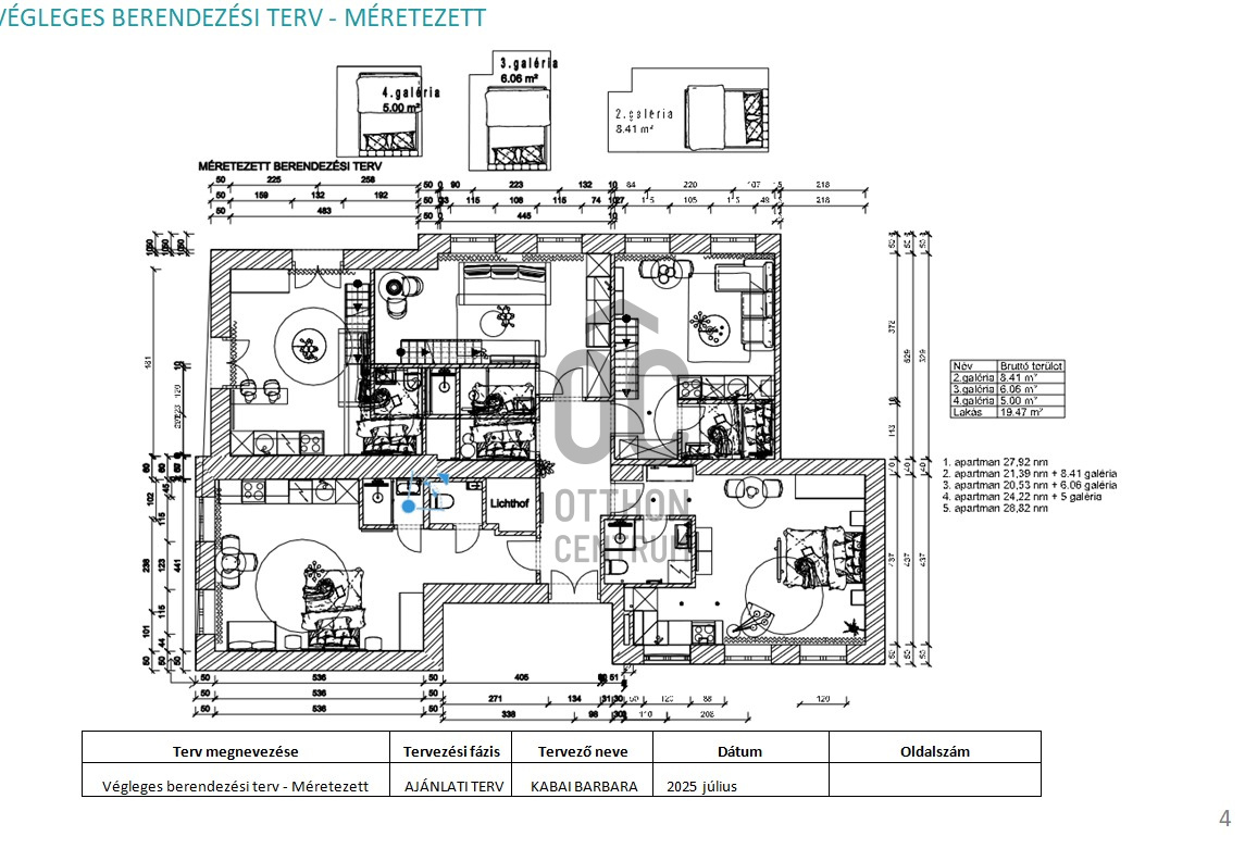
Fedezze fel Budapest szívében, az Izabella utcában, frissen felújított, modern lakásunkat, amely tökéletes választás lehet akár saját otthonának, akár befektetési célokra. Az ingatlan 134nm alapterületű, amely jelenleg 5 különálló apartmanra van bontva ügyvédi megosztással. Mindegyik rendelkezik saját fürdőszobával, és saját bejárattal amelyek a közös előszobából nyílnak. Egyben, de külön - külön is eladóak a lakások. Az 5 különálló apartmanból 1 már teljeskörűen elkészült - az a bemutató lakás. Ideális lehetőséget kínál családoknak vagy akár rövid/hosszútávú bérbeadásra is. A lakás állapota kiváló, a felújítás során a legmodernebb anyagokat és technológiákat használták, beleértve az elektromos fűtést, amely hatékony és gazdaságos megoldást nyújt a téli hónapokban. Az egyik apartmanhoz tartozik egy 2 négyzetméteres erkély is. A környék ellátottsága kiváló, hiszen a közeli üzletek, kávézók, éttermek és szórakozóhelyek mindössze pár perc sétára találhatók. A közlekedés is kitűnő, hiszen a közelben több busz- és villamosmegálló is található, így könnyedén elérheti a város bármely pontját. Ez a galériás lakás nem csupán egy otthon, hanem egy életstílus is, amely ötvözi a modern kényelmet a történelmi városrész varázsával. Amennyiben bármilyen kérdése merülne fel az ingatlannal kapcsolatban, vagy szeretné megtekinteni a lakást, ne habozzon felvenni velünk a kapcsolatot. Bizalommal fordulhat hozzánk, hiszen célunk, hogy Ön megtalálja álmai otthonát vagy a legjobb befektetési lehetőséget. Ezt a különleges ingatlant nem érdemes kihagyni!

Regisztrációs szám

H510424

Az ingatlan adatai

Értékesités
eladó
Jogi státusz
használt
Jelleg
lakás
Építési mód
tégla
Méret
134 m²
Bruttó méret
134 m²
Terasz / erkély mérete
2 m²
Fűtés
elektromos, infra
Belmagasság
380 cm
Tájolás
Dél-nyugat
Lépcsőház típusa
zárt lépcsőház
Állapot
Kiváló
Homlokzat állapota
Lépcsőház állapota
Környék
jó közlekedés, központi
Építés éve
1872
Fürdőszobák száma
5
Fekvés
utcai
Közös költség
45230
Víz
Van
Villany
Van
Csatorna
Van
Lift
van

Helyiségek

szoba
27.92 m²
szoba
21.39 m²
galéria
8.41 m²
szoba
20.53 m²
galéria
6.06 m²
szoba
24.22 m²
galéria
5 m²
szoba
28.82 m²
előszoba
11 m²
erkély
2 m²

Irodánk kínálatából - III. kerület - Flórián tér

for sale panel apartment

Index image
data_sheet.details.realestate.section.main.otthonstart_flag.label
17

for sale semi-detached house

Index image
12

for sale apartment

Index image
16

for sale row house

Index image
17

for sale apartment

Index image
19

for sale apartment

Index image
6

for sale new construction semi-detached house

Index image
data_sheet.details.realestate.section.main.otthonstart_flag.label
13

for sale apartment

Index image
data_sheet.details.realestate.section.main.otthonstart_flag.label
11

for sale new construction semi-detached house

Index image
data_sheet.details.realestate.section.main.otthonstart_flag.label
12

for sale apartment

Index image
18