data_sheet.details.realestate.section.main.otthonstart_flag.label
For sale family house, H510278
Pomáz

33,000,000 Ft

88,000 €

  • 75.5m²
  • 4 Rooms

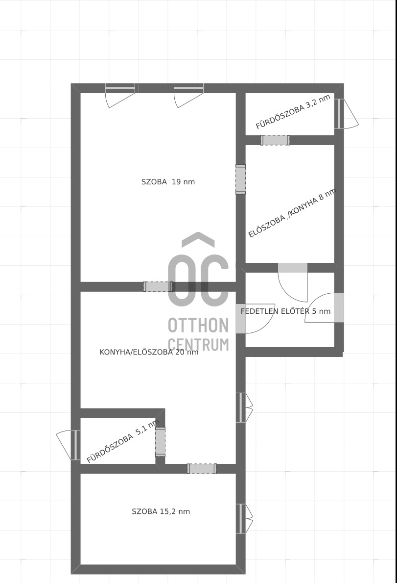
Bontandó/felújítandó ház eladó Pomázon

Eladóvá vált Pomázon egy vegyes falazatú teljesen felújítandó, illetve bontandó ház. Nagyjából az 1930-as évek elején épült. Kert sajnos jelenleg nem tartozik hozzá,de mivel bontandó állapotban van, a későbbiekben kialakítható elképzelés szerint. Jelenleg 2 lakásként használják, van egy fedetlen előtér és onnan 2 külön bejárata van és mindkét lakásban van 1 konyha , 1 fürdőszoba és 1 különnyíló szoba. Az ingatlan elhelyezkedése központi részen van. Autóval 15 perc alatt elérhető Szentendre és Budapest egyaránt. 3 perc sétára elérhetőek a helyi buszjáratok (Csobánka,Pilisszentkereszt,Dobogókő irányába) és 15 perc sétára a H5-ös hévmegálló is elérhető,amivel 40 perc alatt Pesten lehet lenni.
A környéken minden megtalálható, mint például orvosi rendelő, éjjel-nappali gyógyszertár,állatorvosi rendelő,SPAR és egyéb bevásárlási lehetőségek,Dera park,bank, posta,éttermek, stb......gyakorlatilag tényleg minden.
A környező hegyvidékek közelsége nagyszerű lehetőséget ad a túrázni vágyóknak.
Kérdés esetén szeretettel várom hívását!

Registration Number

H510278

Property Details

Sales
for sale
Legal Status
used
Character
house
Construction Method
mixed masonry
Net Size
75.5 m²
Gross Size
96 m²
Plot Size
96 m²
Heating
gas convector
Ceiling Height
200 cm
Orientation
North-East
Condition
To be demolished
Condition of Facade
Poor
Year of Construction
1930
Number of Bathrooms
2
Water
Available
Gas
Available
Electricity
Available
Sewer
Available

Rooms

kitchen
20 m²
kitchen
8 m²
bathroom
3.2 m²
bathroom
5.1 m²
other room
19 m²
other room
15.2 m²
Andrejcsik Nikoletta
Andrejcsik Nikoletta

Credit Expert

From Our Office Listings - III. kerület - Békásmegyer

for sale family house

Index image
data_sheet.details.realestate.section.main.otthonstart_flag.label
22

for sale family house

Index image
25

for sale new construction apartment

Index image
data_sheet.details.realestate.section.main.otthonstart_flag.label
6

for sale new construction apartment

Index image
data_sheet.details.realestate.section.main.otthonstart_flag.label
6

for sale new construction semi-detached house

Index image
7

for sale panel apartment

Index image
data_sheet.details.realestate.section.main.otthonstart_flag.label
23

for sale new construction apartment

Index image
33

for sale panel apartment

Index image
44