data_sheet.details.realestate.section.main.otthonstart_flag.label
For sale apartment,
H510006
Budapest XXII. kerület, Nagytétény
65,900,000 Ft
174,000 €
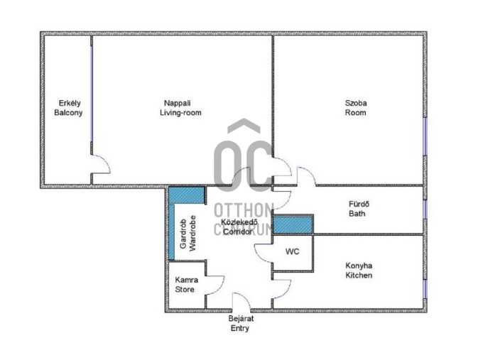
- 55m²
- 2 Rooms
- 2nd floor
Világos, jó elrendezésű lakás remek lehetőségekkel!
Eladásra kínálunk Nagytétényben egy 55 m²-es, erkélyes lakást, jó elrendezéssel és kedvező adottságokkal.
A ház rendezett, karbantartott, közepes állapotú, a lépcsőház tiszta.
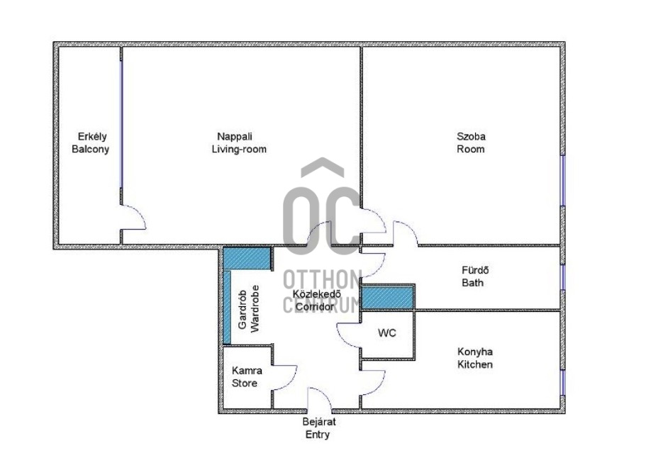
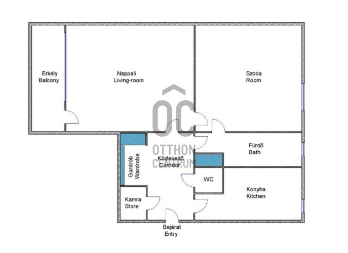
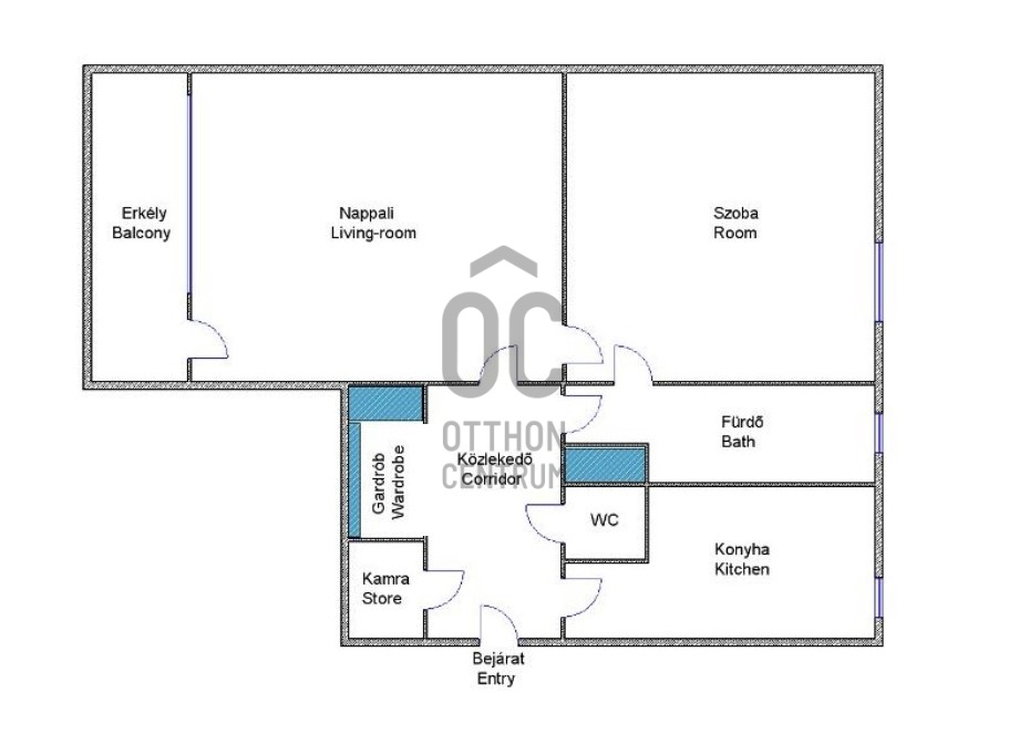
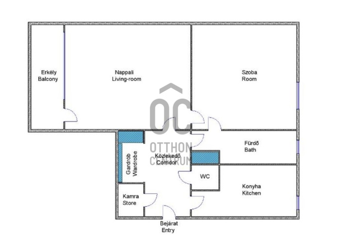
Az erkély a nappaliból nyílik, tökéletes hely egy kávéhoz vagy pihenéshez. Nagyon jó adottságú, igény szerint könnyen otthonossá alakítható.
A lakás világos, jól tagolt, jó szerkezeti alapokkal rendelkező ingatlan, amely állapotából adódóan kiváló lehetőséget kínál az új tulajdonosnak, hogy saját ízlése szerint modern, otthonos életteret alakítson ki.
A nappali északnyugati, a hálószoba délkeleti tájolású, így a lakás egész nap természetes fényben fürdik.
A tágas, kádas fürdőszoba két bejárattal is megközelíthető (az előszobából és a hálóból), ami kényelmes és praktikus megoldás, a WC külön helyiségben van. A helyiségekhez látványtervek is készültek, amelyek segítenek könnyen elképzelni az új otthon leendő hangulatát és kialakítását.
Az ablakok korszerű műanyag nyílászárók, a fűtés konvektoros, a közös költség mindössze 15.900 Ft, és a lakáshoz közös tároló is tartozik.
Közlekedés szempontjából is kedvező elhelyezkedésű:
33, 133E és 973-as buszjáratok, valamint a Barosstelep és Kastélypark vasútállomások a közelben.
A parkolás ingyenes.
Az ingatlan per- és tehermentes, megfelel az Otthon Start feltételeinek, és hosszú távú kiadásra is kiváló befektetési lehetőséget kínál.
Eladásra kínálunk Nagytétényben egy 55 m²-es, erkélyes lakást, jó elrendezéssel és kedvező adottságokkal.
A ház rendezett, karbantartott, közepes állapotú, a lépcsőház tiszta.
Az erkély a nappaliból nyílik, tökéletes hely egy kávéhoz vagy pihenéshez. Nagyon jó adottságú, igény szerint könnyen otthonossá alakítható.
A lakás világos, jól tagolt, jó szerkezeti alapokkal rendelkező ingatlan, amely állapotából adódóan kiváló lehetőséget kínál az új tulajdonosnak, hogy saját ízlése szerint modern, otthonos életteret alakítson ki.
A nappali északnyugati, a hálószoba délkeleti tájolású, így a lakás egész nap természetes fényben fürdik.
A tágas, kádas fürdőszoba két bejárattal is megközelíthető (az előszobából és a hálóból), ami kényelmes és praktikus megoldás, a WC külön helyiségben van. A helyiségekhez látványtervek is készültek, amelyek segítenek könnyen elképzelni az új otthon leendő hangulatát és kialakítását.
Az ablakok korszerű műanyag nyílászárók, a fűtés konvektoros, a közös költség mindössze 15.900 Ft, és a lakáshoz közös tároló is tartozik.
Közlekedés szempontjából is kedvező elhelyezkedésű:
33, 133E és 973-as buszjáratok, valamint a Barosstelep és Kastélypark vasútállomások a közelben.
A parkolás ingyenes.
Az ingatlan per- és tehermentes, megfelel az Otthon Start feltételeinek, és hosszú távú kiadásra is kiváló befektetési lehetőséget kínál.
Registration Number
H510006
Property Details
Sales
for sale
Legal Status
used
Character
apartment
Construction Method
slipform
Net Size
55 m²
Gross Size
55 m²
Size of Terrace / Balcony
4 m²
Heating
gas convector
Ceiling Height
270 cm
Orientation
South-East
Staircase Type
enclosed staircase
Condition
Average
Condition of Facade
Average
Condition of Staircase
Average
Neighborhood
good transport
Year of Construction
1978
Number of Bathrooms
1
Position
street-facing
Common Costs
15900
Water
Available
Gas
Available
Electricity
Available
Sewer
Available
Storage
Shared
Distance to Waterfront
more than 500 meters
Rooms
living room
21 m²
bedroom
12.5 m²
entryway
5 m²
bathroom
5 m²
toilet
1 m²
kitchen
7 m²
balcony
4 m²
pantry
1 m²
Pongó Miklós
Credit Expert