1,093,260 Ft
2,800 €
- 126m²
- 3 Rooms
- 2nd floor


























Panorámás penthouse
Tudom elcsépelt, de ez akkor is ritkaság a piacon! :) Miért gondolom így? Jó lokációban, jó adottságú lakásból még mindig kevés eladó van Budán. Ezek közül csak néhányat említve: legfelső emeleti, újszerű házban, panoráma a hegyekre, hatalmas terasz, dupla teremgarázshely és még sorolhatnám. Ha eddig érdekesnek hangzik, olvasson tovább! ;)
GYORS ÖSSZEFOGLALÁS
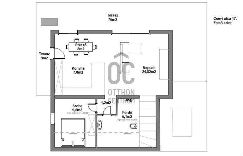
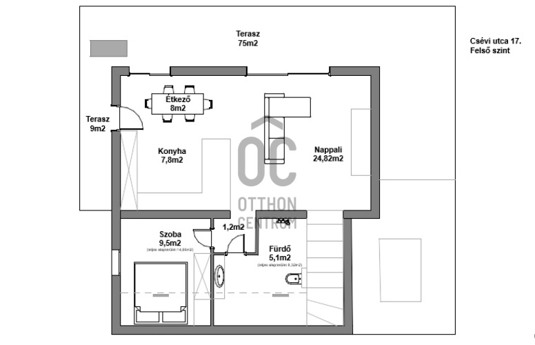
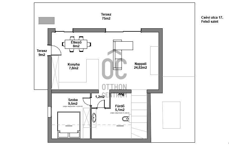
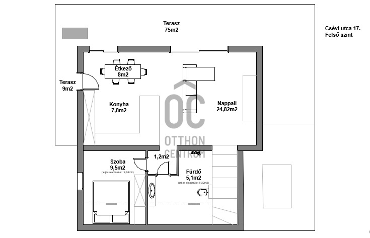
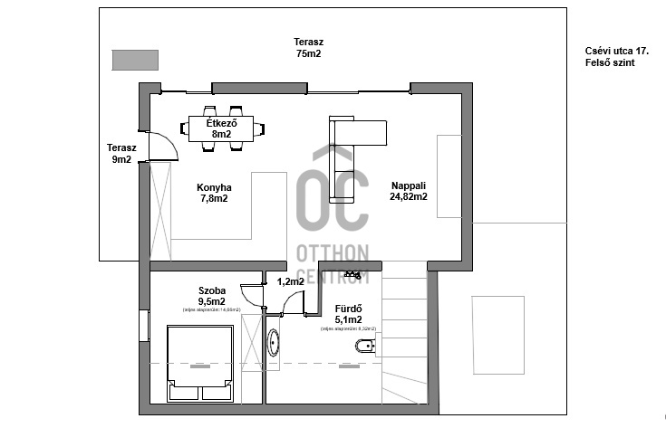
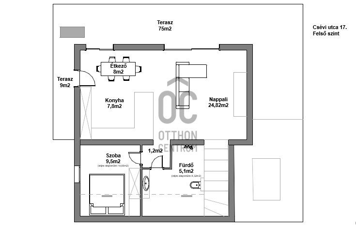
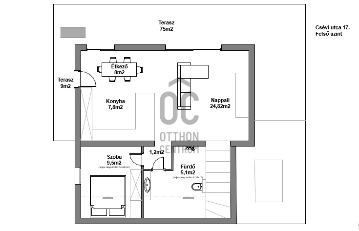
Budapest II. kerületének Törökvész városrészében, az alacsony forgalmú, csendes Csévi utcában, 2008-ban épült, liftes, jó állapotú társasház 2. emeletén, 89 m² alapterületű, 75 m² erkéllyel rendelkező, belső kétszintes, panorámás, penthouse jellegű, amerikai konyhás, 2 hálószobás, 2 fürdőszobás, külön wc-s, csendes, világos, kiváló állapotú, azonnal költözhető lakás kiadó, igény szerint 2 teremgarázzsal. Egy különleges, letisztult, egyedi otthon.
ÜDV ITTHON
Az elmúlt években megváltoztak a vásárlói igények és prioritások. Előtérbe került a zöld környezet, a közösségi területek mérete, az elszeparáltság lehetősége és a használható erkély/terasz. Senki sem akar újra a négy fal közé szorulni. Lételemünk a friss levegő, a fák nyújtotta nyugalom, a mozgás lehetősége, a szabadság érzése. Egyetért? Itt garantáltan nem fog ezekben hiányt szenvedni!
Az ingatlan egyik különlegessége, hogy belső kétszintes. Az alsó szinten egy lakosztály található, saját gardróbbal és fürdőszobával. Ezek a kertre néznek. Akinek kamasz gyereke van, vagy gyakran fogad vendéget, esetleg magához venné szüleit, azok számára ez rendkívül ideális, hiszen így jobban el lehet szeparálódni.
Megérkezve a felső szintre egy nagy méretű (40 m²), körben végig üvegfelületes amerikai konyhás nappaliba érkezünk. Ez a fajta nyitottság hívogatja az embert az erkélyre. A tolóajtónak köszönhetően a kint és bent jobban összesimulnak. Fantasztikus kilátás nyílik a Budai hegyekre. Az erkély kivételesen mély. Újra lett szigetelve és burkolva. Akik szeretnek a szabadban, jó levegőn lenni, akik aktív társasági életet élnek, azok imádni fogják az itt töltött időt. Kanapé, 8 személyes asztal, grillező, a többit a saját fantáziájára bízom :)
Miért ezt a lakást érdemes bérbevennie?
- panoráma
- hatalmas terasz
- legfelső emelet
- korszerű épület
- 2db teremgarázs (200EUR)
Tudom, ismételtem önmagam, de az iskolában azt tanították, ismétlés a tudás anyja.
CSÉVI 17
A ház homlokzata az utcafronthoz képest kicsit visszahúzott. A fronton üzlethelyiség és iroda található, az épületben lakások, hátul pedig egy kisebb közös kert. Egy régi ház helyére épült 2008-ban, a korábbi tulajdonosok is itt laknak. Ez is bizonyítja, mennyire jó a környék, illetve jól megépített az épület, nem akarták azóta sem elhagyni. Mindössze 6 lakás épült, így egy összetartó, kis lakóközösség részévé válhat.
Zárt lépcsőházas, lifttel felszerelt. A lépcsőház és a homlokzat alapvetően jó állapotú. A kazán karbantartása tavaly megtörtént.
Közös költség: 40.000Ft, mely a szokásos költségeket tartalmazza, felújítási alappal együtt. A víz/villany/gáz fogyasztás alapján fizetendő.
A közös képviseletet az egyik régi tulajdonos, egyben lakó látja el, aki a szívén viseli az épület sorsát.
Az ingatlanhoz tartozik két teremgarázshely, melynek ára: 200EUR.
TÖRÖKVÉSZ
A Csévi utca 17. a II. kerület zöldövezeti részén helyezkedik el egy csendes, fákkal szegélyezett, zöld, alacsony forgalmú utcában. A környék legnagyobb előnyei:
- 5 percnyire az Apáthy sziklától, ahonnan fantasztikus kilátás nyílik a budai hegyekre
- kiváló kiránduló és túra útvonalak
- tömegközlekedéssel is jó megközelíthetőség - V56A, 61; Busz (11, 29, 5)
- gyalogtávolságban bevásárlási lehetőség - Pasaréti téri ALDI
- legközelebbi bevásárlóközpontok - Budagyöngye, Rózsadomb Center, Mammut
- egészségügyi problémával a Rózsadomb Centerbe érdemes menni
- számos sportolási lehetőség a közelben pl.: tenisz, foci, kosárlabda stb.
- Csalán úti és Fenyves utcai játszótér - ha a ház kertje nem elég kielégítő
- infrastrukturálisan jól felszerelt: bölcsőde, óvoda, a város legjobb iskolái, Kormányablak, Önkormányzat, gyógyszertár, posta, bankok, fodrászat stb. minden 5-10 perc kocsitávolságon belül
Ezen a környéken mindig kevés eladó lakás van, mert imádnak itt élni az emberek. Éljen a lehetőséggel, költözzön Buda egyik legkedveltebb részére!
--------------
Felkeltettem érdeklődését? Ha el tudja magát itt képzelni vagy további kérdése lenne, hívjon bizalommal!
GYORS ÖSSZEFOGLALÁS
Budapest II. kerületének Törökvész városrészében, az alacsony forgalmú, csendes Csévi utcában, 2008-ban épült, liftes, jó állapotú társasház 2. emeletén, 89 m² alapterületű, 75 m² erkéllyel rendelkező, belső kétszintes, panorámás, penthouse jellegű, amerikai konyhás, 2 hálószobás, 2 fürdőszobás, külön wc-s, csendes, világos, kiváló állapotú, azonnal költözhető lakás kiadó, igény szerint 2 teremgarázzsal. Egy különleges, letisztult, egyedi otthon.
ÜDV ITTHON
Az elmúlt években megváltoztak a vásárlói igények és prioritások. Előtérbe került a zöld környezet, a közösségi területek mérete, az elszeparáltság lehetősége és a használható erkély/terasz. Senki sem akar újra a négy fal közé szorulni. Lételemünk a friss levegő, a fák nyújtotta nyugalom, a mozgás lehetősége, a szabadság érzése. Egyetért? Itt garantáltan nem fog ezekben hiányt szenvedni!
Az ingatlan egyik különlegessége, hogy belső kétszintes. Az alsó szinten egy lakosztály található, saját gardróbbal és fürdőszobával. Ezek a kertre néznek. Akinek kamasz gyereke van, vagy gyakran fogad vendéget, esetleg magához venné szüleit, azok számára ez rendkívül ideális, hiszen így jobban el lehet szeparálódni.
Megérkezve a felső szintre egy nagy méretű (40 m²), körben végig üvegfelületes amerikai konyhás nappaliba érkezünk. Ez a fajta nyitottság hívogatja az embert az erkélyre. A tolóajtónak köszönhetően a kint és bent jobban összesimulnak. Fantasztikus kilátás nyílik a Budai hegyekre. Az erkély kivételesen mély. Újra lett szigetelve és burkolva. Akik szeretnek a szabadban, jó levegőn lenni, akik aktív társasági életet élnek, azok imádni fogják az itt töltött időt. Kanapé, 8 személyes asztal, grillező, a többit a saját fantáziájára bízom :)
Miért ezt a lakást érdemes bérbevennie?
- panoráma
- hatalmas terasz
- legfelső emelet
- korszerű épület
- 2db teremgarázs (200EUR)
Tudom, ismételtem önmagam, de az iskolában azt tanították, ismétlés a tudás anyja.
CSÉVI 17
A ház homlokzata az utcafronthoz képest kicsit visszahúzott. A fronton üzlethelyiség és iroda található, az épületben lakások, hátul pedig egy kisebb közös kert. Egy régi ház helyére épült 2008-ban, a korábbi tulajdonosok is itt laknak. Ez is bizonyítja, mennyire jó a környék, illetve jól megépített az épület, nem akarták azóta sem elhagyni. Mindössze 6 lakás épült, így egy összetartó, kis lakóközösség részévé válhat.
Zárt lépcsőházas, lifttel felszerelt. A lépcsőház és a homlokzat alapvetően jó állapotú. A kazán karbantartása tavaly megtörtént.
Közös költség: 40.000Ft, mely a szokásos költségeket tartalmazza, felújítási alappal együtt. A víz/villany/gáz fogyasztás alapján fizetendő.
A közös képviseletet az egyik régi tulajdonos, egyben lakó látja el, aki a szívén viseli az épület sorsát.
Az ingatlanhoz tartozik két teremgarázshely, melynek ára: 200EUR.
TÖRÖKVÉSZ
A Csévi utca 17. a II. kerület zöldövezeti részén helyezkedik el egy csendes, fákkal szegélyezett, zöld, alacsony forgalmú utcában. A környék legnagyobb előnyei:
- 5 percnyire az Apáthy sziklától, ahonnan fantasztikus kilátás nyílik a budai hegyekre
- kiváló kiránduló és túra útvonalak
- tömegközlekedéssel is jó megközelíthetőség - V56A, 61; Busz (11, 29, 5)
- gyalogtávolságban bevásárlási lehetőség - Pasaréti téri ALDI
- legközelebbi bevásárlóközpontok - Budagyöngye, Rózsadomb Center, Mammut
- egészségügyi problémával a Rózsadomb Centerbe érdemes menni
- számos sportolási lehetőség a közelben pl.: tenisz, foci, kosárlabda stb.
- Csalán úti és Fenyves utcai játszótér - ha a ház kertje nem elég kielégítő
- infrastrukturálisan jól felszerelt: bölcsőde, óvoda, a város legjobb iskolái, Kormányablak, Önkormányzat, gyógyszertár, posta, bankok, fodrászat stb. minden 5-10 perc kocsitávolságon belül
Ezen a környéken mindig kevés eladó lakás van, mert imádnak itt élni az emberek. Éljen a lehetőséggel, költözzön Buda egyik legkedveltebb részére!
--------------
Felkeltettem érdeklődését? Ha el tudja magát itt képzelni vagy további kérdése lenne, hívjon bizalommal!
Registration Number
H508063
Property Details
Sales
for rent
Legal Status
used
Character
apartment
Construction Method
brick
Net Size
126 m²
Gross Size
146 m²
Size of Terrace / Balcony
45 m²
Heating
central heating
Ceiling Height
270 cm
Number of Levels Within the Property
2
Orientation
West
View
Green view
Staircase Type
enclosed staircase
Condition
Good
Condition of Facade
Good
Condition of Staircase
Good
Neighborhood
quiet, green
Year of Construction
2008
Number of Bathrooms
2
Position
courtyard-facing
Furnished
yes
Common Costs
40000
Garage
Separately purchasable
Water
Available
Gas
Available
Electricity
Available
Sewer
Available
Elevator
available
Rooms
corridor
5.5 m²
toilet-washbasin
4 m²
room
15 m²
wardrobe
6 m²
bathroom
4 m²
terrace
7.5 m²
corridor
1.5 m²
open-plan kitchen and living room
40 m²
room
15 m²
bathroom
13 m²
terrace
68.8 m²

Ruczek János
Credit Expert