data_sheet.details.realestate.section.main.otthonstart_flag.label
For sale apartment,
H507091
Szentendre
85,955,000 Ft
220,000 €
- 100m²
- 5 Rooms
- 1st floor

















Tágas 5 szobás felújítandó lakás Szentendrén eladó.
Amennyiben családosok számára keres ideális otthont, úgy figyelmébe ajánljuk ezt a kivételes lehetőséget Szentendrén, Pest vármegyében.
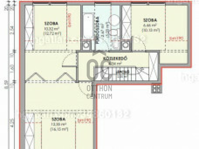
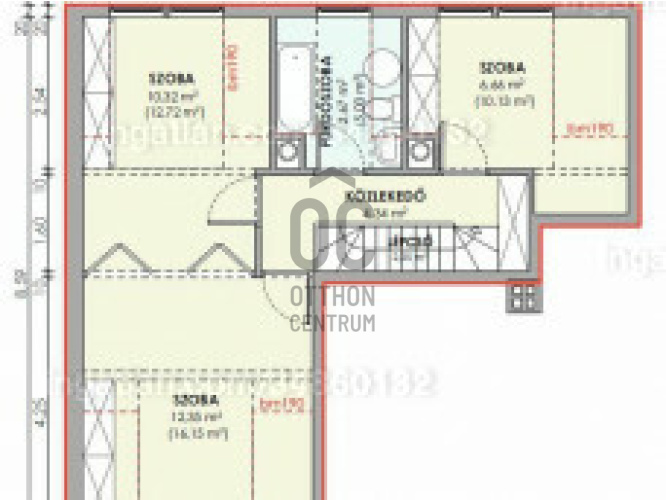
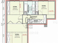
Az ingatlan egy 102 négyzetméteres, 5 szobás, belső 2 szintes lakás, amely felújítandó állapotban várja új tulajdonosát.
A lakásban található 2 fürdőszoba, valamint egy 4 négyzetméteres erkély, ahonnan gyönyörű panorámás kilátás nyílik a környező zöld területekre. Az ingatlan fűtése gázkonvektorral megoldott, a hűtést pedig klímaberendezés biztosítja, így a nyári hőségben is kellemes otthont nyújt.
A lakás környékén az ellátottság kiváló, hiszen a közeli boltok, iskolák és óvodák mindössze pár percnyi sétára találhatóak, ami különösen előnyös lehet családok számára. A csendes környezet garantálja a nyugodt életvitelt, míg a központi elhelyezkedés lehetővé teszi, hogy a város nyújtotta lehetőségeket könnyedén kihasználhassák.
A közlekedés is kitűnő, hiszen a tömegközlekedési lehetőségek gyors és egyszerű hozzáférést biztosítanak a főváros és a környező települések irányába.
Az ingatlan tehermentes, így 2-3 hónapon belül birtokba vehető, ami különösen vonzó lehet a gyors döntést hozó vásárlók számára.
A társasház 2021 ben felújította a homlokzatot a 30 cm tégla falak kaptak 15 cm hőszigetelést és színezést, a lépcsőház rendezett 6 lakásból áll.
Az ingatlan felújításával saját ízlésére szabhatja otthonát, így lehetősége van arra, hogy egyedi stílust és kényelmet varázsoljon a térbe. Felújítandó : Nyílászárók,villany-víz-fűtés,burkolatok,stb..
A lakás tágas elrendezése lehetővé teszi, hogy a család minden tagjának legyen saját helye, miközben közös családi pillanatokra is bőven van lehetőség.
Tartozik a lakáshoz egy 8-10 nm-es száraz pince tároló.
Az ingatlan multifunkcionális, így akár befektetési céllal is remek választás lehet, hiszen a környék folyamatosan fejlődik, és a kereslet is növekvő tendenciát mutat. Szentendre nem csupán a történelmi belvárosával, hanem a természet közelségével is vonzó célpont, hiszen a Duna partja és a környező erdők számos lehetőséget kínálnak a szabadidős tevékenységekre. A város kulturális programjai, valamint a helyi közösség aktivitása szintén hozzájárul ahhoz, hogy itt élni valóban élvezetes legyen.
Amennyiben bármilyen kérdése merülne fel az ingatlannal vagy a vásárlási folyamattal kapcsolatban, készséggel állok rendelkezésére, hogy segítsek Önnek a megfelelő döntés meghozatalában. Ne habozzon, hiszen ez a lehetőség nem tart sokáig!
Az ingatlan egy 102 négyzetméteres, 5 szobás, belső 2 szintes lakás, amely felújítandó állapotban várja új tulajdonosát.
A lakásban található 2 fürdőszoba, valamint egy 4 négyzetméteres erkély, ahonnan gyönyörű panorámás kilátás nyílik a környező zöld területekre. Az ingatlan fűtése gázkonvektorral megoldott, a hűtést pedig klímaberendezés biztosítja, így a nyári hőségben is kellemes otthont nyújt.
A lakás környékén az ellátottság kiváló, hiszen a közeli boltok, iskolák és óvodák mindössze pár percnyi sétára találhatóak, ami különösen előnyös lehet családok számára. A csendes környezet garantálja a nyugodt életvitelt, míg a központi elhelyezkedés lehetővé teszi, hogy a város nyújtotta lehetőségeket könnyedén kihasználhassák.
A közlekedés is kitűnő, hiszen a tömegközlekedési lehetőségek gyors és egyszerű hozzáférést biztosítanak a főváros és a környező települések irányába.
Az ingatlan tehermentes, így 2-3 hónapon belül birtokba vehető, ami különösen vonzó lehet a gyors döntést hozó vásárlók számára.
A társasház 2021 ben felújította a homlokzatot a 30 cm tégla falak kaptak 15 cm hőszigetelést és színezést, a lépcsőház rendezett 6 lakásból áll.
Az ingatlan felújításával saját ízlésére szabhatja otthonát, így lehetősége van arra, hogy egyedi stílust és kényelmet varázsoljon a térbe. Felújítandó : Nyílászárók,villany-víz-fűtés,burkolatok,stb..
A lakás tágas elrendezése lehetővé teszi, hogy a család minden tagjának legyen saját helye, miközben közös családi pillanatokra is bőven van lehetőség.
Tartozik a lakáshoz egy 8-10 nm-es száraz pince tároló.
Az ingatlan multifunkcionális, így akár befektetési céllal is remek választás lehet, hiszen a környék folyamatosan fejlődik, és a kereslet is növekvő tendenciát mutat. Szentendre nem csupán a történelmi belvárosával, hanem a természet közelségével is vonzó célpont, hiszen a Duna partja és a környező erdők számos lehetőséget kínálnak a szabadidős tevékenységekre. A város kulturális programjai, valamint a helyi közösség aktivitása szintén hozzájárul ahhoz, hogy itt élni valóban élvezetes legyen.
Amennyiben bármilyen kérdése merülne fel az ingatlannal vagy a vásárlási folyamattal kapcsolatban, készséggel állok rendelkezésére, hogy segítsek Önnek a megfelelő döntés meghozatalában. Ne habozzon, hiszen ez a lehetőség nem tart sokáig!
Registration Number
H507091
Property Details
Sales
for sale
Legal Status
used
Character
apartment
Construction Method
brick
Net Size
100 m²
Gross Size
102 m²
Size of Terrace / Balcony
4 m²
Heating
gas convector
Ceiling Height
270 cm
Number of Levels Within the Property
2
Orientation
South
Staircase Type
enclosed staircase
Condition
To be renovated
Condition of Facade
Good
Condition of Staircase
Average
Year of Construction
1983
Number of Bathrooms
2
Position
garden-facing
Common Costs
17000
Water
Available
Gas
Available
Electricity
Available
Sewer
Available
Connected to Garden
yes
Storage
Independent
Distance to Waterfront
200 meters
Rooms
living room
20 m²
room
12.5 m²
kitchen
7.2 m²
bathroom-toilet
5 m²
corridor
1.62 m²
entryway
4.17 m²
loggia
4 m²
staircase
3.3 m²
pantry
1 m²
room
12.3 m²
room
10.3 m²
room
6.6 m²
bathroom-toilet
2.67 m²
corridor
3.34 m²