101,371,200 Ft
261,000 €
- 60.3m²
- 3 Rooms
- 1st floor















Уникальное предложение в сердце Будапешта! Элегантная 3-комнатная квартира в полностью отреставрированном доме VI района.
Купите апартаменты своей мечты или сделайте выгодное инвестиционное вложение в редкий объект, сочетающий буржуазный шарм, передовые технологии и безупречную инфраструктуры.
Редкость на рынке!
Предлагается квартира в полностью реконструированном здании, расположенном в самом центре города — в историческом VI районе, недалеко от проспекта Андраши, Площади Героев и станции метро. Такие объекты появляются на рынке исключительно редко!
Здание прошло капитальную реновацию:
-обновлены все инженерные сети: отопление, канализация, электрика, газ, установлен современный газовый котел
- установлен новый лифт,
- использованы качественные строительные материалы: новая плитка, сантехника, ламинат, окна (новые или прошедшие реставрацию) и двери.
От оригинального здания остался только фасад — всё остальное создано заново по современным стандартам, с акцентом на комфорт и стиль.
Характеристики квратиры
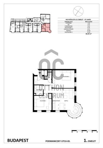
- Площадь: 60,34 м²
- 3 изолированные комнаты с отдельными входами
- Квартира очень солнечная
- В гостиной находится ризалит, характерный для классических зданий, который придаёт недвижимости особый шарм
- 2 туалета
- Каждая комната оборудована индивидуальным кондиционером
- Все коммуникации — с индивидуальными счётчиками
- Квартира после свежего ремонта, готова к немедленному заселению или сдаче в аренду
Это больше, чем просто квартира — это инвестиция в исключительное качество жизни и престижную локацию. Объект расположен на пересечении трёх ключевых районов:
- VI район (Terézváros) — исторический и культурный центр Будапешта: рядом Оперный театр, проспект Андраши (объект наследия ЮНЕСКО), Площадь Героев, элитные бутики, театры, кафе, музеи и архитектура конца XIX века. Район ассоциируется с богемной элегантностью и культурной жизньюстолицы.
- XIII район (Újlipótváros) — один из самых динамично развивающихся районов города: современная застройка, инновационные офисы, старинные набережные, уютные улочки, модные рестораны, скандинавский стиль, парки и доступ к Дунаю
- V район (Belváros) — пешком 10–15 минут до центра административной и туристической жизни: базилика, парламент, набережная, Chain Bridge, торговые улицы, офисы международных компаний и банков.
Такое расположение — редчайшее сочетание всех преимуществ центра Будапешта: от утонченного исторического лоска до передовой городской инфраструктуры.
Также Вас ждут:
- пешая доступность до метро (линии 1 и 3), остановок автобусов и троллейбусов
- рядом лучшие кафе, рестораны, театры, музеи, зоопарк, Площадь Героев, проспект Андрашив нескольких минутах
— WestEnd City Center, железнодорожный вокзал Нюгатигородской парк Варошлигет для прогулок, спорта и отдыха,
Объект без обременений, готов к немедленной сделке и просмотрам
Не упустите шанс стать владельцем эксклюзивной недвижимости в самом сердце Будапешта!
Продажа от крупнейшего в Венгрии агентства недвижимости!
Для организации просмотра или получения дополнительной информации — свяжитесь с нами прямо сейчас.
Редкость на рынке!
Предлагается квартира в полностью реконструированном здании, расположенном в самом центре города — в историческом VI районе, недалеко от проспекта Андраши, Площади Героев и станции метро. Такие объекты появляются на рынке исключительно редко!
Здание прошло капитальную реновацию:
-обновлены все инженерные сети: отопление, канализация, электрика, газ, установлен современный газовый котел
- установлен новый лифт,
- использованы качественные строительные материалы: новая плитка, сантехника, ламинат, окна (новые или прошедшие реставрацию) и двери.
От оригинального здания остался только фасад — всё остальное создано заново по современным стандартам, с акцентом на комфорт и стиль.
Характеристики квратиры
- Площадь: 60,34 м²
- 3 изолированные комнаты с отдельными входами
- Квартира очень солнечная
- В гостиной находится ризалит, характерный для классических зданий, который придаёт недвижимости особый шарм
- 2 туалета
- Каждая комната оборудована индивидуальным кондиционером
- Все коммуникации — с индивидуальными счётчиками
- Квартира после свежего ремонта, готова к немедленному заселению или сдаче в аренду
Это больше, чем просто квартира — это инвестиция в исключительное качество жизни и престижную локацию. Объект расположен на пересечении трёх ключевых районов:
- VI район (Terézváros) — исторический и культурный центр Будапешта: рядом Оперный театр, проспект Андраши (объект наследия ЮНЕСКО), Площадь Героев, элитные бутики, театры, кафе, музеи и архитектура конца XIX века. Район ассоциируется с богемной элегантностью и культурной жизньюстолицы.
- XIII район (Újlipótváros) — один из самых динамично развивающихся районов города: современная застройка, инновационные офисы, старинные набережные, уютные улочки, модные рестораны, скандинавский стиль, парки и доступ к Дунаю
- V район (Belváros) — пешком 10–15 минут до центра административной и туристической жизни: базилика, парламент, набережная, Chain Bridge, торговые улицы, офисы международных компаний и банков.
Такое расположение — редчайшее сочетание всех преимуществ центра Будапешта: от утонченного исторического лоска до передовой городской инфраструктуры.
Также Вас ждут:
- пешая доступность до метро (линии 1 и 3), остановок автобусов и троллейбусов
- рядом лучшие кафе, рестораны, театры, музеи, зоопарк, Площадь Героев, проспект Андрашив нескольких минутах
— WestEnd City Center, железнодорожный вокзал Нюгатигородской парк Варошлигет для прогулок, спорта и отдыха,
Объект без обременений, готов к немедленной сделке и просмотрам
Не упустите шанс стать владельцем эксклюзивной недвижимости в самом сердце Будапешта!
Продажа от крупнейшего в Венгрии агентства недвижимости!
Для организации просмотра или получения дополнительной информации — свяжитесь с нами прямо сейчас.
Registration Number
H506841
Property Details
Sales
for sale
Legal Status
used
Character
apartment
Construction Method
brick
Net Size
60.3 m²
Gross Size
60.3 m²
Heating
central heating
Ceiling Height
250 cm
Orientation
South-West
Staircase Type
enclosed staircase
Condition
Excellent
Condition of Facade
Excellent
Condition of Staircase
Excellent
Neighborhood
good transport, central
Year of Construction
2024
Number of Bathrooms
2
Position
street-facing
Water
Available
Gas
Available
Electricity
Available
Sewer
Available
Elevator
available
Rooms
entryway
10.46 m²
toilet-washbasin
1.45 m²
bathroom-toilet
3.23 m²
bedroom
9.79 m²
open-plan kitchen and dining room
6.53 m²
living room
16.48 m²
bedroom
15.4 m²

Ruczek Krisztina
Credit Expert