298,053,000 Ft
900,000 €
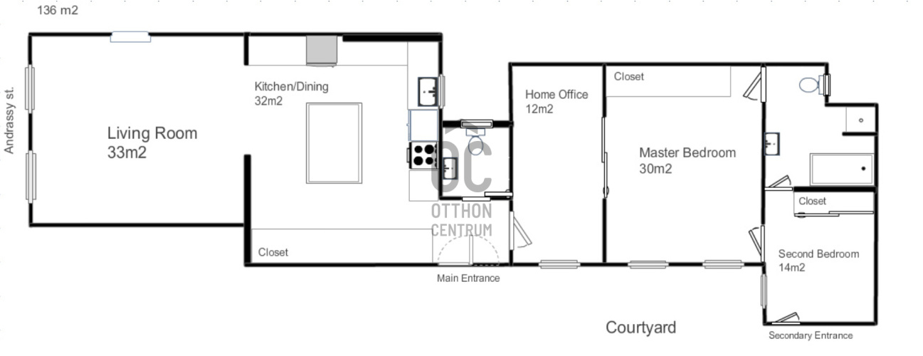
- 136m²
- 4 Rooms
- 2nd floor


















Near the opera house.
Near the Opera House, on Andrássy Avenue,
in a historic building with an elevator, a 136 m², tastefully renovated apartment on the 2nd floor, overlooking the street.
The living room is 33 m² with windows facing Andrássy Avenue,
the kitchen-dining area is 32 m²,
and there are 3 rooms (currently functioning as a bedroom, an office, and a walk-in closet) with windows facing the courtyard, with no balcony, corridor in front of them.
The bathroom has both a bathtub and a built-in shower.
The apartment is air-conditioned, and the heating is gas central heating.
I recommend it as a home or an investment.
in a historic building with an elevator, a 136 m², tastefully renovated apartment on the 2nd floor, overlooking the street.
The living room is 33 m² with windows facing Andrássy Avenue,
the kitchen-dining area is 32 m²,
and there are 3 rooms (currently functioning as a bedroom, an office, and a walk-in closet) with windows facing the courtyard, with no balcony, corridor in front of them.
The bathroom has both a bathtub and a built-in shower.
The apartment is air-conditioned, and the heating is gas central heating.
I recommend it as a home or an investment.
Registration Number
H507580
Property Details
Sales
for sale
Legal Status
used
Character
apartment
Construction Method
brick
Net Size
136 m²
Gross Size
136 m²
Heating
Gas circulator
Ceiling Height
400 cm
Orientation
North-West
Staircase Type
suspended corridor
Condition
Excellent
Condition of Facade
Excellent
Condition of Staircase
Excellent
Year of Construction
1882
Number of Bathrooms
1
Position
street-facing
Water
Available
Gas
Available
Electricity
Available
Sewer
Available
Elevator
available
Rooms
living room
33 m²
open-plan kitchen and dining room
32 m²
room
30 m²
room
14 m²
room
12 m²

Ruczek Krisztina
Credit Expert