145,811,250 Ft
375,000 €
- 42m²
- 1 Rooms
- 3rd floor














jewelry box overlooking the square at Szervita.
A cozy square in the heart of the city, where the architecture of the 18th and 21st centuries coexist in harmony.
On the southern side of the square, the Church of St. Anna and the recently completed Emerald Residence modern building embrace each other.
In the western part, one of the iconic buildings of early modern Art Nouveau, the Turkish Bank House, overlooks its new neighbor, the glass palace of the Servita Square Building.
Here you will also find Béla Lajta's Rózsavölgyi House, with shops on the ground floor, above them the Rózsavölgyi Salon, and apartments on the upper floors.
The apartment is located on the 3rd floor of the Rózsavölgyi House, facing the square.
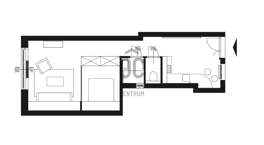
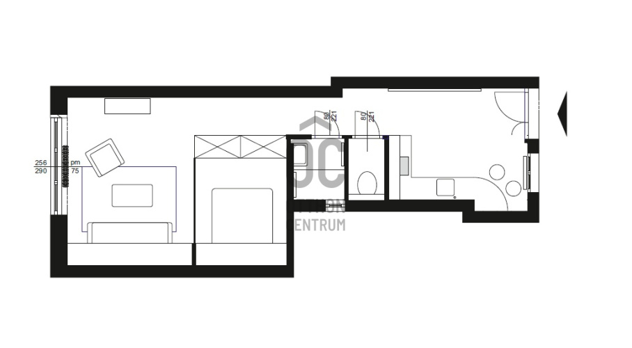
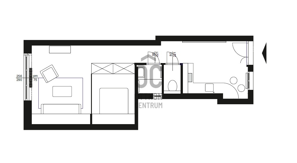
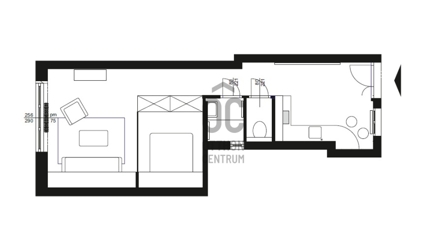
It is 42 sqm, with a living room overlooking the square and a glass sliding door separating a sleeping nook at the back.
The kitchen is modern, equipped, with a window facing the building's inner courtyard.
The bathroom features a built-in shower and a cylindrical sink.
The hallway includes a ceiling-high wardrobe that houses the washer-dryer.
The apartment is air-conditioned, with central heating.
An ideal choice for a home or an investment.
On the southern side of the square, the Church of St. Anna and the recently completed Emerald Residence modern building embrace each other.
In the western part, one of the iconic buildings of early modern Art Nouveau, the Turkish Bank House, overlooks its new neighbor, the glass palace of the Servita Square Building.
Here you will also find Béla Lajta's Rózsavölgyi House, with shops on the ground floor, above them the Rózsavölgyi Salon, and apartments on the upper floors.
The apartment is located on the 3rd floor of the Rózsavölgyi House, facing the square.
It is 42 sqm, with a living room overlooking the square and a glass sliding door separating a sleeping nook at the back.
The kitchen is modern, equipped, with a window facing the building's inner courtyard.
The bathroom features a built-in shower and a cylindrical sink.
The hallway includes a ceiling-high wardrobe that houses the washer-dryer.
The apartment is air-conditioned, with central heating.
An ideal choice for a home or an investment.
Registration Number
H507624
Property Details
Sales
for sale
Legal Status
used
Character
apartment
Construction Method
brick
Net Size
42 m²
Gross Size
42 m²
Heating
central heating
Ceiling Height
350 cm
Orientation
East
Staircase Type
suspended corridor
Condition
Excellent
Condition of Facade
Excellent
Condition of Staircase
Excellent
Year of Construction
1900
Number of Bathrooms
1
Position
street-facing
Water
Available
Gas
Available
Electricity
Available
Sewer
Available
Elevator
available
Rooms
room
27 m²
open-plan kitchen and dining room
11 m²

Ruczek Krisztina
Credit Expert