data_sheet.details.realestate.section.main.otthonstart_flag.label
For sale family house,
H504055
Kerepes
145,000,000 Ft
373,000 €
- 220m²
- 6 Rooms
































Where the garden ends, the forest begins – a home that is enough for everything.
At the edge of the forest, by the stream – a 6-room home in the heart of Kerepes. Spacious areas, nature, and harmony.
OUTDOOR KITCHEN - SAUNA - ALARM SYSTEM - CAMERA SYSTEM - DRILLED WELL - IRRIGATION SYSTEM - DOUBLE GARAGE - SMART CONTROL
Key features:
- 1243 m² plot area,
- 3-story house built in 1997, with 10 cm dryvit thermal insulation,
- net living space of 206 m², gross area of 311 m²,
- Southeast orientation,
- concrete ceiling, tiled roof covering,
- wooden thermal windows, replaced a few years ago on the ground floor,
- motorized blinds and mosquito nets on the ground floor windows,
- gas boiler heating with smart control via an app, controllable by room,
- decorative fireplace,
- air conditioning on both levels,
- installed alarm and camera system,
- motorized gate at the street front and at the garages,
- automatic irrigation system in the garden, from a drilled well.
Rooms on the ground floor:
- 2-car garage 28.91 m²,
- hallway 6.87 m²,
- living room 29.05 m²,
- covered terrace 32.79 m²,
- dining room 10.14 m²,
- kitchen 6.29 m²,
- pantry 2.19 m²,
- WC with hand basin 1.96 m²,
- corridor 0.76 m²,
- staircase 4.00 m².
Rooms on the upper floor:
- master bedroom 18.94 (14.91) m²,
- dressing room 8.38 (5.63) m²,
- bathroom 9.06 (7.60) m²,
- room 8.53 (7.93) m²,
- balcony 7.87 m²,
- room 13.4 (9.69) m²,
- room 12.96 (9.25) m²,
- utility room 6.93 (4.09) m²,
- corridor 8.15 m²,
- staircase 4.00 m².
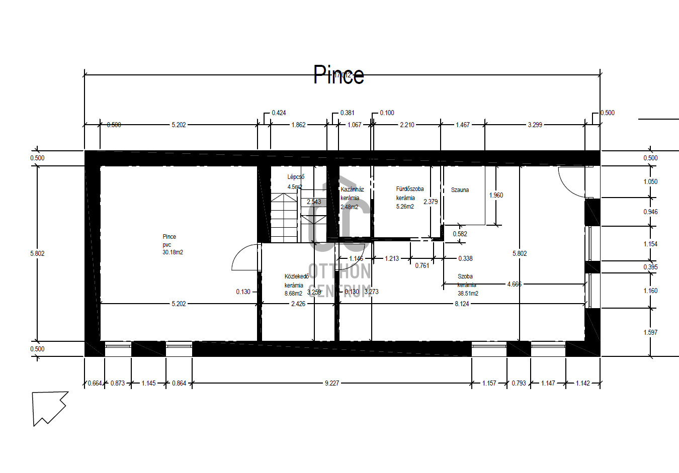
Rooms in the basement:
- storage/workshop 30.218 m²,
- corridor 8.68 m²,
- staircase 4.50 m²,
- boiler room 2.48 m²,
- sauna/bathroom 5.26 m²,
- hobby room 38.51 m²
- accessible directly from the garden.
The garden is divided into three well-separated sections, with parking space for 6-8 cars in the street-front section, making it suitable for business or accommodating larger groups of guests.
The second part of the garden, which overlooks the living room terrace, is landscaped and ideal for placing a swimming pool.
At the far end of the garden, towards the Szilas stream, a small realm has been created, excellent for outdoor cooking, hosting guests, or even holding events from spring to autumn.
This area is also monitored by cameras.
There is piped water, and facilities such as a cauldron cooking area, oven, stove, grill table, gazebo, and storage have been built. T
here is even a sound system and dance floor.
Everything you need is just minutes away. The H8 suburban train station is a few minutes' walk away, and there is a long-distance bus stop nearby that operates between Budapest and Gödöllő. The M0 and M31 are also quickly accessible. Shops, medical offices, and schools are located nearby. I highly recommend this property for families, those looking to cohabit, or for business purposes.
If needed, we provide the assistance of an independent and FREE mortgage advisor who will guide you through the entire process.
To ensure a safe and smooth transaction, we also recommend the services of our experienced real estate legal experts.
If you have any questions or would like to schedule a viewing, please contact me using my contact details.
I am available every day from 8:00 AM to 7:00 PM, and I will return your call if I am busy.
If you still need to sell your property, I am also at your service regarding that matter.
Reference number: H504055
OUTDOOR KITCHEN - SAUNA - ALARM SYSTEM - CAMERA SYSTEM - DRILLED WELL - IRRIGATION SYSTEM - DOUBLE GARAGE - SMART CONTROL
Key features:
- 1243 m² plot area,
- 3-story house built in 1997, with 10 cm dryvit thermal insulation,
- net living space of 206 m², gross area of 311 m²,
- Southeast orientation,
- concrete ceiling, tiled roof covering,
- wooden thermal windows, replaced a few years ago on the ground floor,
- motorized blinds and mosquito nets on the ground floor windows,
- gas boiler heating with smart control via an app, controllable by room,
- decorative fireplace,
- air conditioning on both levels,
- installed alarm and camera system,
- motorized gate at the street front and at the garages,
- automatic irrigation system in the garden, from a drilled well.
Rooms on the ground floor:
- 2-car garage 28.91 m²,
- hallway 6.87 m²,
- living room 29.05 m²,
- covered terrace 32.79 m²,
- dining room 10.14 m²,
- kitchen 6.29 m²,
- pantry 2.19 m²,
- WC with hand basin 1.96 m²,
- corridor 0.76 m²,
- staircase 4.00 m².
Rooms on the upper floor:
- master bedroom 18.94 (14.91) m²,
- dressing room 8.38 (5.63) m²,
- bathroom 9.06 (7.60) m²,
- room 8.53 (7.93) m²,
- balcony 7.87 m²,
- room 13.4 (9.69) m²,
- room 12.96 (9.25) m²,
- utility room 6.93 (4.09) m²,
- corridor 8.15 m²,
- staircase 4.00 m².
Rooms in the basement:
- storage/workshop 30.218 m²,
- corridor 8.68 m²,
- staircase 4.50 m²,
- boiler room 2.48 m²,
- sauna/bathroom 5.26 m²,
- hobby room 38.51 m²
- accessible directly from the garden.
The garden is divided into three well-separated sections, with parking space for 6-8 cars in the street-front section, making it suitable for business or accommodating larger groups of guests.
The second part of the garden, which overlooks the living room terrace, is landscaped and ideal for placing a swimming pool.
At the far end of the garden, towards the Szilas stream, a small realm has been created, excellent for outdoor cooking, hosting guests, or even holding events from spring to autumn.
This area is also monitored by cameras.
There is piped water, and facilities such as a cauldron cooking area, oven, stove, grill table, gazebo, and storage have been built. T
here is even a sound system and dance floor.
Everything you need is just minutes away. The H8 suburban train station is a few minutes' walk away, and there is a long-distance bus stop nearby that operates between Budapest and Gödöllő. The M0 and M31 are also quickly accessible. Shops, medical offices, and schools are located nearby. I highly recommend this property for families, those looking to cohabit, or for business purposes.
If needed, we provide the assistance of an independent and FREE mortgage advisor who will guide you through the entire process.
To ensure a safe and smooth transaction, we also recommend the services of our experienced real estate legal experts.
If you have any questions or would like to schedule a viewing, please contact me using my contact details.
I am available every day from 8:00 AM to 7:00 PM, and I will return your call if I am busy.
If you still need to sell your property, I am also at your service regarding that matter.
Reference number: H504055
Registration Number
H504055
Property Details
Sales
for sale
Legal Status
used
Character
house
Construction Method
brick
Net Size
220 m²
Gross Size
240 m²
Plot Size
1,243 m²
Heating
Gas circulator
Ceiling Height
280 cm
Number of Levels Within the Property
3
Orientation
South-East
Condition
Good
Condition of Facade
Good
Basement
Independent
Neighborhood
good transport, green
Year of Construction
1997
Number of Bathrooms
3
Garage
Included in the price
Garage Spaces
2
Number of Covered Parking Spots
2
Water
Available
Gas
Available
Electricity
Available
Sewer
On the street
Storage
Independent
Rooms
garage
28.91 m²
entryway
6.87 m²
living room
29.05 m²
dining room
10.14 m²
kitchen
6.29 m²
pantry
2.19 m²
toilet-washbasin
1.96 m²
staircase
4 m²
corridor
0.76 m²
room
14.91 m²
wardrobe
5.63 m²
bathroom-toilet
7.6 m²
room
7.93 m²
room
9.69 m²
room
9.25 m²
utility room
4.09 m²
corridor
8.15 m²
staircase
4 m²
balcony
7.87 m²
storage
30.18 m²
corridor
8.68 m²
staircase
4.5 m²
boiler room
2.48 m²
bathroom-toilet
5.26 m²
room
38.51 m²

Pomaházi Pál
Credit Expert