109,900,000 Ft
283,000 €
- 102m²
- 3 Rooms
- 1st floor






















POLGÁRI STÍLUSÚ LAKÁS TÁGAS TEREKKEL A PALOTANEGYED SZÍVÉBEN!
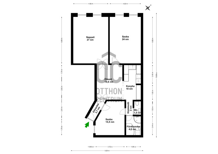
Budapest VIII. kerületének legpatinásabb városrészén, a Palotanegyedben, az ELTE és a Magyar Nemzeti Múzeum közvetlen közelében, a Rákóczi úton ELADÓ egy első emeleti, 102 nm alapterületű, 3 szobás, tágas terekkel rendelkező, nagypolgári stílusú lakás!
A lakás különlegessége az impozáns, 4,8 méteres belmagasság, a tágas, levegős terek és a központi elhelyezkedés.
Két nagyméretű, utcára néző szoba található a lakásban jelenleg, melyből a 27 nm nappaliban egy állógaléria is kialakításra került 2 méteres belmagassággal, ez jelenleg hálóként funkcionál.
A harmadik, 14,5 nm-es szoba ablaka a ház csendes, belső udvarára néz.
A tágas étkező-konyha rész igény szerint alakítható, ez jelenleg összesen közel 25 nm-es.
A fürdőszoba káddal és zuhanykabinnal ellátott, mellette helyezkedik el egy külön bejáratú WC, kézmosóval.
Az ingatlan jó állapotban van, azonban érdemes korszerűsíteni. Fűtéséről gáz cirkó gondoskodik radiátoros hőleadókkal. Régi, fa nyílászárói remekül működnek, a Rákóczi út forgalma szinte egyáltalán nem hallatszik a lakásban.
A lakás adottságainak köszönhetően remekül alakítható, a nagy belmagasság eredményeképp a terek akár galériázhatók is - így ideális lehet akár bérbeadásra, irodának vagy egyéb hasznosítás céljára.
Az 1890-es években épült lift nélküli, 23 lakásos ház összesen 2 emeletes, rendezett, jó lakóközösséggel rendelkezik. A ház közös képviselte kiváló, ennek köszönhetően megtakarítással is rendelkezik a ház, melyet a szükséges korszerűsítésre és felújítási munkálatokra fordítanak.
A lakás fenntartási költsége kedvező, a közös költség 50.000 Ft, mely a víz fogyasztást is tartalmazza. A villany és gáz egyedi mérés alapján kerül elszámolásra.
A lakás a Palotanegyed kiemelten ellátott részén található, mely az egyik legnagyobb értéke, hiszen a Rákóczi út központi elhelyezkedésre páratlan, kiváltképp azoknak, akik kiadásra vagy szolgáltatói tevékenység üzemeltetésére keresnek ingatlant!
Éjjel-nappali kiváló a közlekedés, így a lakás diákok, fiatalok, külföldiek számára is vonzó lehet.
2 percen belül elérhetők gyalogosan egyetemek, színházak, kávézók, üzletek, és az összes tömegközlekedési eszköz szintén.
Olyan új tulajdonost keresünk aki:
- Befektetési céllal egy könnyen kiadható, értékálló lakást keres a belváros szívében
- Családjával egy patinás polgári hangulatú otthont keres hatalmas terekkel
- Szolgáltatás működtetésére keres belvárosi, központi elhelyezkedésű, mindenki számára könnyen megközelíthető ingatlant
További információkért és megtekintési szándékkal kapcsolatban várom hívását!
Budapest VIII. kerületének legpatinásabb városrészén, a Palotanegyedben, az ELTE és a Magyar Nemzeti Múzeum közvetlen közelében, a Rákóczi úton ELADÓ egy első emeleti, 102 nm alapterületű, 3 szobás, tágas terekkel rendelkező, nagypolgári stílusú lakás!
A lakás különlegessége az impozáns, 4,8 méteres belmagasság, a tágas, levegős terek és a központi elhelyezkedés.
Két nagyméretű, utcára néző szoba található a lakásban jelenleg, melyből a 27 nm nappaliban egy állógaléria is kialakításra került 2 méteres belmagassággal, ez jelenleg hálóként funkcionál.
A harmadik, 14,5 nm-es szoba ablaka a ház csendes, belső udvarára néz.
A tágas étkező-konyha rész igény szerint alakítható, ez jelenleg összesen közel 25 nm-es.
A fürdőszoba káddal és zuhanykabinnal ellátott, mellette helyezkedik el egy külön bejáratú WC, kézmosóval.
Az ingatlan jó állapotban van, azonban érdemes korszerűsíteni. Fűtéséről gáz cirkó gondoskodik radiátoros hőleadókkal. Régi, fa nyílászárói remekül működnek, a Rákóczi út forgalma szinte egyáltalán nem hallatszik a lakásban.
A lakás adottságainak köszönhetően remekül alakítható, a nagy belmagasság eredményeképp a terek akár galériázhatók is - így ideális lehet akár bérbeadásra, irodának vagy egyéb hasznosítás céljára.
Az 1890-es években épült lift nélküli, 23 lakásos ház összesen 2 emeletes, rendezett, jó lakóközösséggel rendelkezik. A ház közös képviselte kiváló, ennek köszönhetően megtakarítással is rendelkezik a ház, melyet a szükséges korszerűsítésre és felújítási munkálatokra fordítanak.
A lakás fenntartási költsége kedvező, a közös költség 50.000 Ft, mely a víz fogyasztást is tartalmazza. A villany és gáz egyedi mérés alapján kerül elszámolásra.
A lakás a Palotanegyed kiemelten ellátott részén található, mely az egyik legnagyobb értéke, hiszen a Rákóczi út központi elhelyezkedésre páratlan, kiváltképp azoknak, akik kiadásra vagy szolgáltatói tevékenység üzemeltetésére keresnek ingatlant!
Éjjel-nappali kiváló a közlekedés, így a lakás diákok, fiatalok, külföldiek számára is vonzó lehet.
2 percen belül elérhetők gyalogosan egyetemek, színházak, kávézók, üzletek, és az összes tömegközlekedési eszköz szintén.
Olyan új tulajdonost keresünk aki:
- Befektetési céllal egy könnyen kiadható, értékálló lakást keres a belváros szívében
- Családjával egy patinás polgári hangulatú otthont keres hatalmas terekkel
- Szolgáltatás működtetésére keres belvárosi, központi elhelyezkedésű, mindenki számára könnyen megközelíthető ingatlant
További információkért és megtekintési szándékkal kapcsolatban várom hívását!
Registration Number
H502825
Property Details
Sales
for sale
Legal Status
used
Character
apartment
Construction Method
brick
Net Size
102 m²
Gross Size
102 m²
Heating
Gas circulator
Ceiling Height
480 cm
Orientation
North-West
Staircase Type
circular corridor
Condition
Good
Condition of Facade
Good
Condition of Staircase
Average
Basement
Shared
Neighborhood
good transport, central
Year of Construction
1890
Number of Bathrooms
1
Position
street-facing
Common Costs
50000
Water
Available
Gas
Available
Electricity
Available
Sewer
Available
Storage
Shared
Rooms
living room
27 m²
bedroom
24 m²
bedroom
13.5 m²
kitchen
10 m²
dining room
14.5 m²
bathroom
4.6 m²
toilet-washbasin
1.5 m²
entryway
3.7 m²
corridor
2 m²
gallery
13.5 m²