data_sheet.details.realestate.section.main.otthonstart_flag.label
For sale family house,
H483729
Gárdony
145,000,000 Ft
371,000 €
- 150m²
- 5 Rooms






























A ház van Önökért!
Gárdonyban, festők utcáiban, kertvárosi környezetben eladó egy kétgenerációs, 5 szobás, FEDETT TERASZOS, 150m2-es családi ház, GARÁZZSAL, KERTI KIÜLŐVEL, dús növényekkel teli kertben.
A két lakóegység kialakítását egymást nem zavaró bejárással oldották meg.
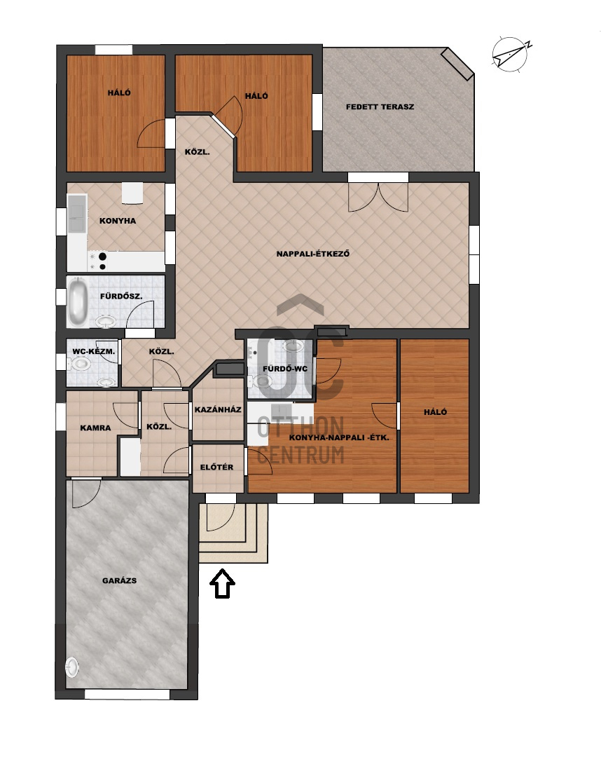
A kisebb lakrész 27,8m2, áll egy konyha-étkező-nappaliból, zuhanyzós fürdőszoba -WC-ből és egy hálószobából. Déli fekvése, világos, napos helységei vidámságot tükröznek.
A nagyobb lakórészbe a garázsból is közvetlen bejárhatunk. Kamrából a közlekedőbe és már a nappali étkezőben is vagyunk. Itt elszeparálva de egy légtérben van együtt a konyhával. Tágas ajtók nyílnak a fedett erkélyre és két különálló hálószobára. Egy fürdőszoba, egy külön WC és egy kazánház nyílik a közlekedőből.
Kertben egy fedett kiülőn kívül van még egy pergola tetejű is és a kert hátsó részén két faház tárolás céljából.
A ház 2004-ben épült, PTH 30-as téglából, 8 cm-es hőszigeteléssel, vasbeton födémmel és Bramac tetőcseréppel. Műanyag nyílászárókon redőny és szúnyogháló is használatban van.
Fűtése 1 éves modern SAUNIER DUVAL kazánról, radiátoros hőleadással működik. A nappaliban igazi remekmű, egy gyönyörű cserépkályha is ad meleget téli bekuckózásokhoz.
A sok gondoskodással művelt kert fúrt kútról van öntözve. Rengeteg dísznövény és gyümölcsfa található. Magas ágyásokban konyhakerti növények zöldellnek.
Közelben elérhető óvoda, iskola és a termál fürdő is. Kertvárosi csendes környezete tökéletes a home office-ra, vagy akár kerti partikra is.
Az m7 autópályáról az ingatlan 12 perc alatt megközelíthető, Aldi 12perce Vasútállomás 20percre van gyalogosan.
Hívjon, nézzük meg együtt amíg még megvan!
Irodai azonosító : H483729
A két lakóegység kialakítását egymást nem zavaró bejárással oldották meg.
A kisebb lakrész 27,8m2, áll egy konyha-étkező-nappaliból, zuhanyzós fürdőszoba -WC-ből és egy hálószobából. Déli fekvése, világos, napos helységei vidámságot tükröznek.
A nagyobb lakórészbe a garázsból is közvetlen bejárhatunk. Kamrából a közlekedőbe és már a nappali étkezőben is vagyunk. Itt elszeparálva de egy légtérben van együtt a konyhával. Tágas ajtók nyílnak a fedett erkélyre és két különálló hálószobára. Egy fürdőszoba, egy külön WC és egy kazánház nyílik a közlekedőből.
Kertben egy fedett kiülőn kívül van még egy pergola tetejű is és a kert hátsó részén két faház tárolás céljából.
A ház 2004-ben épült, PTH 30-as téglából, 8 cm-es hőszigeteléssel, vasbeton födémmel és Bramac tetőcseréppel. Műanyag nyílászárókon redőny és szúnyogháló is használatban van.
Fűtése 1 éves modern SAUNIER DUVAL kazánról, radiátoros hőleadással működik. A nappaliban igazi remekmű, egy gyönyörű cserépkályha is ad meleget téli bekuckózásokhoz.
A sok gondoskodással művelt kert fúrt kútról van öntözve. Rengeteg dísznövény és gyümölcsfa található. Magas ágyásokban konyhakerti növények zöldellnek.
Közelben elérhető óvoda, iskola és a termál fürdő is. Kertvárosi csendes környezete tökéletes a home office-ra, vagy akár kerti partikra is.
Az m7 autópályáról az ingatlan 12 perc alatt megközelíthető, Aldi 12perce Vasútállomás 20percre van gyalogosan.
Hívjon, nézzük meg együtt amíg még megvan!
Irodai azonosító : H483729
Registration Number
H483729
Property Details
Sales
for sale
Legal Status
used
Character
house
Construction Method
brick
Net Size
150 m²
Gross Size
175 m²
Plot Size
1,107 m²
Heating
Gas circulator
Ceiling Height
255 cm
Orientation
East
Condition
Good
Condition of Facade
Good
Year of Construction
2004
Number of Bathrooms
2
Garage
Included in the price
Water
Available
Gas
Available
Electricity
Available
Sewer
Available
Storage
Independent
Rooms
open-plan living and dining room
34.8 m²
bathroom-toilet
5.5 m²
kitchen
7.9 m²
room
11 m²
bedroom
10.5 m²
corridor
3.8 m²
toilet-washbasin
2.2 m²
corridor
4.76 m²
pantry
4.5 m²
garage
18.4 m²
boiler room
2.6 m²
corridor
1.1 m²
open-plan kitchen and living room
15.6 m²
bedroom
8.8 m²
terrace
15.9 m²

Leitner-Paraidi Beáta Tímea
Credit Expert