980,000,000 Ft
2,609,000 €
- 540m²
- 9 Rooms
„BUDÁN LAKNI VILÁGNÉZET”
A budai II. kerületi Rózsadomb a főváros és az ország egyik legnagyobb presztízzsel bíró területe.
Ha szigorúan vesszük földrajzilag, a szecesszió idején épült nyaraló villa Rézmál városrészhez (melynek jelentése ugyancsak Rózsadomb) tartozik, hiszen a Bimbó út páros oldalán helyezkedik el.
Anno az 1890-es évek végén, mikor épült teljesen más volt a környezte. Ma már a kerület egyik frekventált részén helyezkedik el 1319 m2-es telken.
A ház múltja és az egykori nagypolgári hangulat megőrzése fontos volt a jelenlegi tulajdonosoknak, így az épület korszerű, ezáltal kényelmes, ugyanakkor hagyománytisztelet és egyfajta időtlen báj árad belőle.
Jelenleg 3 emelet biztosítja az életteret 2 generáció számára.
A 90-es évek végén, valamint a 2000-es évek elején történt nagyobb felújítás, átépítés az ingatlanon.
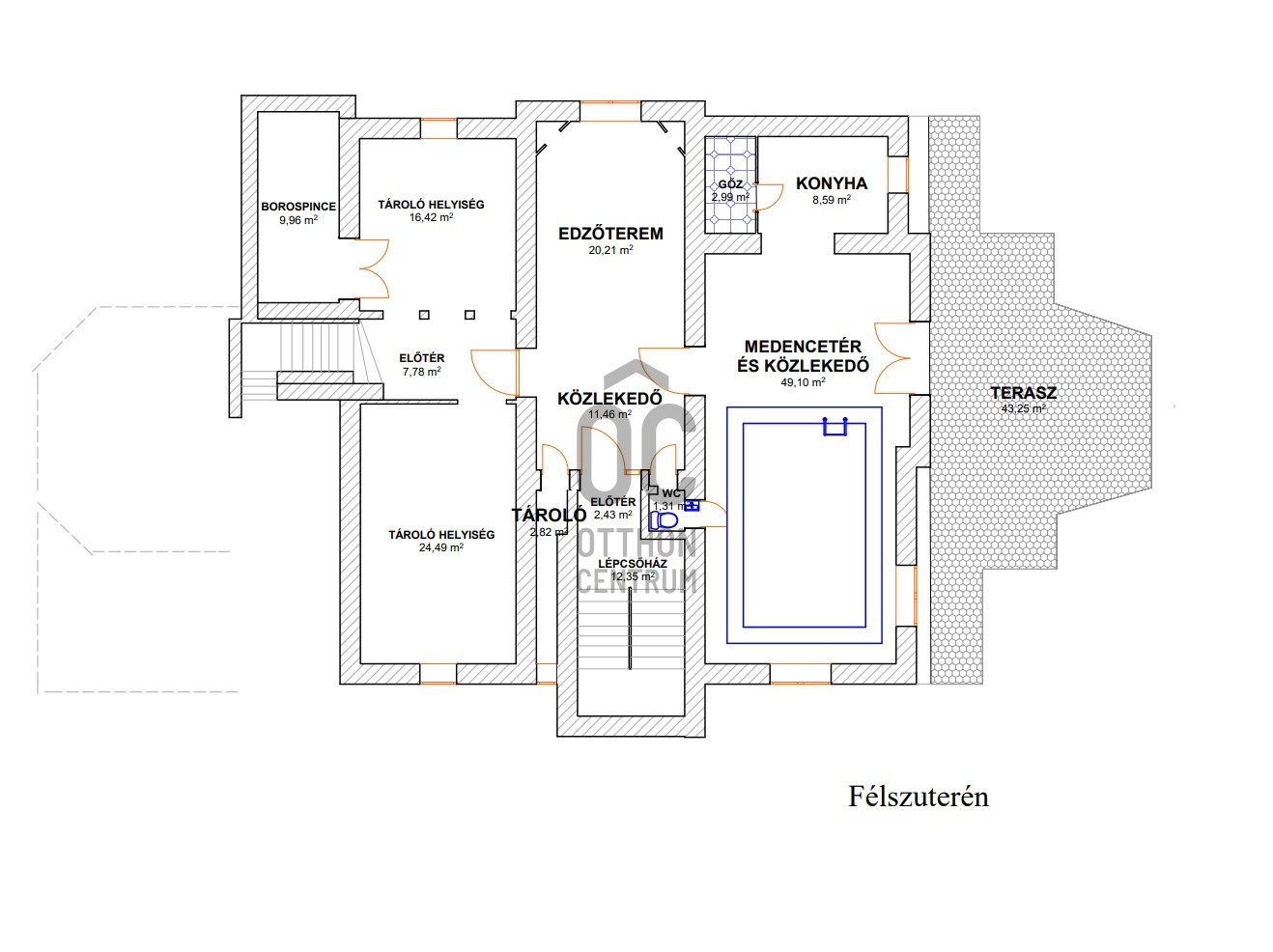
A háború nyomait eltüntetve, visszakapta színét a homlokzat és a kék ablakok fehér kerettel együttesen pedig visszaidézik a ház eredeti megjelenését. Kulcsfontosságú a szoros kapcsolat a kerttel, így megépítésre került a kíváncsi szempároktól (a ház hátsó részén) elrejtett téli kert, ahonnan egy lépcső vezet le a félszuterén szintre. Itt kialakításra került a rekreációs részleg, mely magába foglalja az épített medencét, gőzterápiás helyiséget, edzőtermet. Mindez tovább bővíthető (szauna, sókamra, moziszoba stb.), hisz a szinten nagyobb helyiségek tárolóként funkcionálnak jelenleg. A medencetérből elérhető teakonyha és a hívogató külső terasz, amik még kellemesebbé és komfortosabbá teszik a kikapcsolódást. Szintén ezen az emeleten „épített” borospince méltó helye nemes gyűjteményeknek és a mellette lévő helyiség akár autentikus helyszíne lehet borvacsoráknak.
A szintek közötti mozgást a korabeli lépcsőházon keresztül tehetjük meg.
A magasföldszinten, valamint az emeleten is hatalmas, szellős terek uralkodnak. Mindkét emeleten a korábban kisebb felújításokon átesett faablakok, spaletták, magas kazettás beltéri ajtók visszaadják a századforduló hangulatát, akárcsak a szobák klasszikus elrendezései. Sehol nem lett beépítve a közel 4 méteres belmagasság, így adott a nagypolgári miliő.
Az ingatlan hasznos alapterülete a tetőtér beépítésével növelhető, mely további ~90 m2 pluszt jelent.
A ház fölé magasodó toronyszoba az ingatlan ékköve, mely lépcsőház legfelső részéről közelíthető meg. Az elénk tárúló panoráma elragadó (Parlament, Citadella, Budai Várnegyed, Duna és az őt átszelő hidak). Innen a fővárosunk évszakonként változó arcát kémlelhetjük. Ez a szoba lehet helyszíne mélyenszántó gondolatoknak, vagy a világ elől meghúzódva egy jó könyv olvasásának akár.
Ahogy Endrődi Sándor is írta versében:
„Itt fenn Budán, a Rózsadombon /Igazán rózsás a világ!...
… Itt a dombon, hála Isten, /Jó világ van, /Kis királyként éldegélek/Ebben a kis szürke házban.
Minden vágyam teljesül, bár/ Ki se mondom, /S ha elfogy a garasom, hopp! /Arra sincsen semmi
gondom.
Lenézek a dulakodó / Nagy városra, / Hol az ember embertársát / Sárba löki, megtapossa. –
S egyszeriben oly kicsiny lesz/ Minden ottan, / S oly nagy itt fenn, a dombon, hol/ Szeretet és
nyugalom van.”
Jöjjön el és tekintse meg!
Csatlakozzon a villa történetéhez, folytassa azt vagy írja újra teljesen!
Ha szigorúan vesszük földrajzilag, a szecesszió idején épült nyaraló villa Rézmál városrészhez (melynek jelentése ugyancsak Rózsadomb) tartozik, hiszen a Bimbó út páros oldalán helyezkedik el.
Anno az 1890-es évek végén, mikor épült teljesen más volt a környezte. Ma már a kerület egyik frekventált részén helyezkedik el 1319 m2-es telken.
A ház múltja és az egykori nagypolgári hangulat megőrzése fontos volt a jelenlegi tulajdonosoknak, így az épület korszerű, ezáltal kényelmes, ugyanakkor hagyománytisztelet és egyfajta időtlen báj árad belőle.
Jelenleg 3 emelet biztosítja az életteret 2 generáció számára.
A 90-es évek végén, valamint a 2000-es évek elején történt nagyobb felújítás, átépítés az ingatlanon.
A háború nyomait eltüntetve, visszakapta színét a homlokzat és a kék ablakok fehér kerettel együttesen pedig visszaidézik a ház eredeti megjelenését. Kulcsfontosságú a szoros kapcsolat a kerttel, így megépítésre került a kíváncsi szempároktól (a ház hátsó részén) elrejtett téli kert, ahonnan egy lépcső vezet le a félszuterén szintre. Itt kialakításra került a rekreációs részleg, mely magába foglalja az épített medencét, gőzterápiás helyiséget, edzőtermet. Mindez tovább bővíthető (szauna, sókamra, moziszoba stb.), hisz a szinten nagyobb helyiségek tárolóként funkcionálnak jelenleg. A medencetérből elérhető teakonyha és a hívogató külső terasz, amik még kellemesebbé és komfortosabbá teszik a kikapcsolódást. Szintén ezen az emeleten „épített” borospince méltó helye nemes gyűjteményeknek és a mellette lévő helyiség akár autentikus helyszíne lehet borvacsoráknak.
A szintek közötti mozgást a korabeli lépcsőházon keresztül tehetjük meg.
A magasföldszinten, valamint az emeleten is hatalmas, szellős terek uralkodnak. Mindkét emeleten a korábban kisebb felújításokon átesett faablakok, spaletták, magas kazettás beltéri ajtók visszaadják a századforduló hangulatát, akárcsak a szobák klasszikus elrendezései. Sehol nem lett beépítve a közel 4 méteres belmagasság, így adott a nagypolgári miliő.
Az ingatlan hasznos alapterülete a tetőtér beépítésével növelhető, mely további ~90 m2 pluszt jelent.
A ház fölé magasodó toronyszoba az ingatlan ékköve, mely lépcsőház legfelső részéről közelíthető meg. Az elénk tárúló panoráma elragadó (Parlament, Citadella, Budai Várnegyed, Duna és az őt átszelő hidak). Innen a fővárosunk évszakonként változó arcát kémlelhetjük. Ez a szoba lehet helyszíne mélyenszántó gondolatoknak, vagy a világ elől meghúzódva egy jó könyv olvasásának akár.
Ahogy Endrődi Sándor is írta versében:
„Itt fenn Budán, a Rózsadombon /Igazán rózsás a világ!...
… Itt a dombon, hála Isten, /Jó világ van, /Kis királyként éldegélek/Ebben a kis szürke házban.
Minden vágyam teljesül, bár/ Ki se mondom, /S ha elfogy a garasom, hopp! /Arra sincsen semmi
gondom.
Lenézek a dulakodó / Nagy városra, / Hol az ember embertársát / Sárba löki, megtapossa. –
S egyszeriben oly kicsiny lesz/ Minden ottan, / S oly nagy itt fenn, a dombon, hol/ Szeretet és
nyugalom van.”
Jöjjön el és tekintse meg!
Csatlakozzon a villa történetéhez, folytassa azt vagy írja újra teljesen!
Registration Number
H451852
Property Details
Sales
for sale
Legal Status
used
Character
house
Construction Method
brick
Net Size
540 m²
Gross Size
600 m²
Plot Size
1,319 m²
Heating
Gas circulator
Ceiling Height
380 cm
Number of Levels Within the Property
3
Orientation
South-West
Condition
Good
Condition of Facade
Good
Basement
Independent
Neighborhood
good transport, green
Year of Construction
1897
Number of Bathrooms
4
Garage
Included in the price
Garage Spaces
4
Water
Available
Gas
Available
Electricity
Available
Sewer
Available
Multi-Generational
yes
Storage
Independent
Rooms
terrace
43.25 m²
kitchen
8.59 m²
other room
2.99 m²
other room
20.21 m²
corridor
11.46 m²
other room
49.1 m²
staircase
12.35 m²
toilet-washbasin
1.31 m²
other room
2.43 m²
storage
2.82 m²
storage
24.49 m²
storage
16.42 m²
other room
7.78 m²
wine cellar
9.96 m²
winter garden
21.71 m²
wardrobe
11.45 m²
bathroom-toilet
4.43 m²
bathroom-toilet
7.86 m²
corridor
10.21 m²
kitchen
10.61 m²
laundry room
1.54 m²
toilet-washbasin
1.51 m²
hall
16.3 m²
dining room
23.46 m²
entryway
13.36 m²
living room
29.64 m²
bedroom
23.58 m²
room
17.45 m²
room
23.26 m²
bathroom-toilet
7.86 m²
open-plan kitchen and dining room
19.58 m²
pantry
3.06 m²
laundry room
1.49 m²
toilet-washbasin
1.44 m²
hall
16.61 m²
living room
29.64 m²
bedroom
23.58 m²
balcony
14.97 m²
Ruczek János
Credit Expert