33,000,000 Ft
85,000 €
- 1,459m²
















Eladó Kismaroson, Börzsönyligeten lévő, építési telek, érvényes építési engedéllyel, tervekkel és már elvégzett terepmunkával!
A víz és az áram (3X32A) telken belül van, csatorna és gáz nincs az utcában.
Az ingatlan murvás, földes úton megközelíthető, közel az aszfalt úthoz.
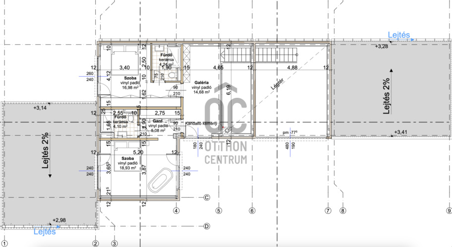
A képek között megtalálhatóak a látványtervek és az alaprajz is.
Az enyhén lejtős területet előkészítették az építkezéshez, a terepmunka el lett végezve.
A leendő ház helyén ki lettek vágva a fák, a telek hátuljában meg lett hagyva a varázslatos erdei környezet, amelyért érdemes ide költözni.
A telek Lke-4 építési övezetbe tartozik, ahol:
-a legnagyobb megengedett beépítettség 30%,
-a megengedett legnagyobb építménymagasság 4,5 m,
-a legkisebb kialakítandó zöldfelület 50%
-a beépítés jellemző módja szabadonálló
-kialakítható legkisebb telekterület 1200 m2
Az ingatlan tulajdon lapi besorolása: kivett beépítetlen terület (belterület).
Tehermentes, cég a tulajdonos, kifizetése esetén azonnal birtokba vehető.
Ir.ár: 33 MFt + ÁFA
Az ingatlan befektetésnek is KIVÁLÓ, a környéken a "kulcsos" házak fénykorukat élik!
A környék kikapcsolódásra és pihenésre tökéletes, akkor is ha az ember a vízpartot (Duna part közel van) vagy ha a hegyeket szereti, a táj mindkét igényt kielégíti.
Vác és Budapest is könnyedén elérhető, mind autóval, mind tömegközlekedéssel!
További információért forduljon Hozzám bizalommal!
Amivel segítjük az Ön ingatlanvásárlását:
-ingyenes, bankfüggetlen hitelügyintézés (CSOK és Babaváró ügyintézése is.)
-jogi háttér
-földhivatali ügyintézés
-energetikai tanúsítvány elkészítése
-biztosítás
-belsőépítész
A víz és az áram (3X32A) telken belül van, csatorna és gáz nincs az utcában.
Az ingatlan murvás, földes úton megközelíthető, közel az aszfalt úthoz.
A képek között megtalálhatóak a látványtervek és az alaprajz is.
Az enyhén lejtős területet előkészítették az építkezéshez, a terepmunka el lett végezve.
A leendő ház helyén ki lettek vágva a fák, a telek hátuljában meg lett hagyva a varázslatos erdei környezet, amelyért érdemes ide költözni.
A telek Lke-4 építési övezetbe tartozik, ahol:
-a legnagyobb megengedett beépítettség 30%,
-a megengedett legnagyobb építménymagasság 4,5 m,
-a legkisebb kialakítandó zöldfelület 50%
-a beépítés jellemző módja szabadonálló
-kialakítható legkisebb telekterület 1200 m2
Az ingatlan tulajdon lapi besorolása: kivett beépítetlen terület (belterület).
Tehermentes, cég a tulajdonos, kifizetése esetén azonnal birtokba vehető.
Ir.ár: 33 MFt + ÁFA
Az ingatlan befektetésnek is KIVÁLÓ, a környéken a "kulcsos" házak fénykorukat élik!
A környék kikapcsolódásra és pihenésre tökéletes, akkor is ha az ember a vízpartot (Duna part közel van) vagy ha a hegyeket szereti, a táj mindkét igényt kielégíti.
Vác és Budapest is könnyedén elérhető, mind autóval, mind tömegközlekedéssel!
További információért forduljon Hozzám bizalommal!
Amivel segítjük az Ön ingatlanvásárlását:
-ingyenes, bankfüggetlen hitelügyintézés (CSOK és Babaváró ügyintézése is.)
-jogi háttér
-földhivatali ügyintézés
-energetikai tanúsítvány elkészítése
-biztosítás
-belsőépítész
Registration Number
GDT384382
Property Details
Sales
for sale
Legal Status
used
Character
plot
Type of Land
Developmental plot
Net Size
1,459 m²
Gross Size
1,459 m²
Plot Size
1,459 m²
Position
courtyard-facing
Water
On the street
Electricity
On the street

Bán Marianna
Credit Expert