data_sheet.details.realestate.section.main.otthonstart_flag.label
For sale family house,
GDH379234
Aszód
105,000,000 Ft
269,000 €
- 257m²
- 8 Rooms






























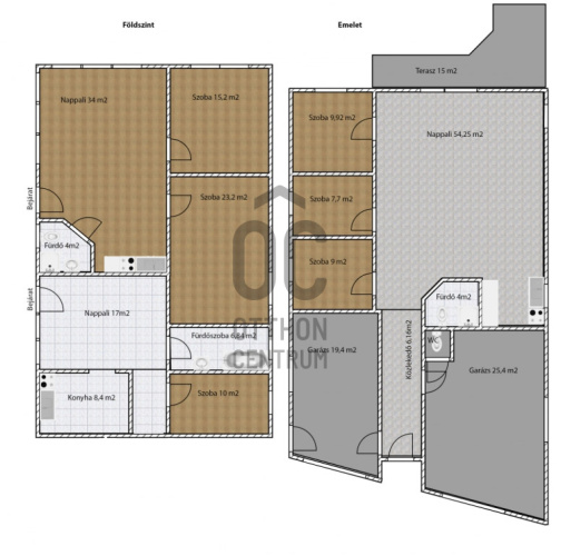
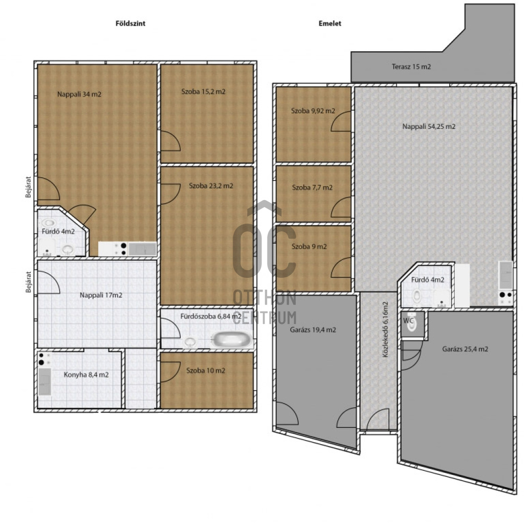
Aszódon a Béke utcába 8. szám alatt 381 m2-es összközműves telken eladó egy panorámás, három generációs tégla építésű, kétszintes családi ház.
Az ingatlant 2006-ban újították fel, dryvit szigeteléssel lett ellátva, nyílászárói fa és műanyag thermo kivitelűek. Fűtését és meleg víz ellátását 2017-ben korszerűsített 2db kondenzációs kombi gázkazán látja el.
A felső lakás 136 m2-es, ami magába foglalja a két fűtött garázst is (19,4, 25,4m2), melyek elektromos garázsajtóval lettek ellátva.
Az 54m2-es nappaliból gyönyörű panoráma látható a 15 m2-es terasz irányába. A 9,92 m2-es hálószoba is panorámás kilátással rendelkezik. További két szoba található ezen a szinten és egy igényes anyagokkal felújított fürdőszoba is.
Az alsó szinten két lakás helyezkedik el. A nagyobbik (76m2)szintén panorámás kilátással rendelkezik. Itt 32,6 m2-es amerikai konyhás nappali és két nagy szoba (15,2m2, 23,2m2) és egy 5 m2-es fürdőszoba lett kialakítva.
A harmadik lakás 45,3 m2-es. Itt 17 m2-es a nappali 8,4m2-es részben egybenyitott konyhával, 10 m2-es szoba és közlekedő és egy 7m2-es fürdőszoba taláható!
Számos beépített bútor és a három konyha is a vételár részét képezik.
A közművek almérőkkel rendelkeznek.
A kertben a beton burkolatú udvar rész alatt 30m2 tárolásra alkamas helyiség van.
Amennyiben hirdetésem felkeltette az érdeklődését vagy egyéb információra van szüksége ,hívjon bizalommal!
Az ingatlant 2006-ban újították fel, dryvit szigeteléssel lett ellátva, nyílászárói fa és műanyag thermo kivitelűek. Fűtését és meleg víz ellátását 2017-ben korszerűsített 2db kondenzációs kombi gázkazán látja el.
A felső lakás 136 m2-es, ami magába foglalja a két fűtött garázst is (19,4, 25,4m2), melyek elektromos garázsajtóval lettek ellátva.
Az 54m2-es nappaliból gyönyörű panoráma látható a 15 m2-es terasz irányába. A 9,92 m2-es hálószoba is panorámás kilátással rendelkezik. További két szoba található ezen a szinten és egy igényes anyagokkal felújított fürdőszoba is.
Az alsó szinten két lakás helyezkedik el. A nagyobbik (76m2)szintén panorámás kilátással rendelkezik. Itt 32,6 m2-es amerikai konyhás nappali és két nagy szoba (15,2m2, 23,2m2) és egy 5 m2-es fürdőszoba lett kialakítva.
A harmadik lakás 45,3 m2-es. Itt 17 m2-es a nappali 8,4m2-es részben egybenyitott konyhával, 10 m2-es szoba és közlekedő és egy 7m2-es fürdőszoba taláható!
Számos beépített bútor és a három konyha is a vételár részét képezik.
A közművek almérőkkel rendelkeznek.
A kertben a beton burkolatú udvar rész alatt 30m2 tárolásra alkamas helyiség van.
Amennyiben hirdetésem felkeltette az érdeklődését vagy egyéb információra van szüksége ,hívjon bizalommal!
Registration Number
GDH379234
Property Details
Sales
for sale
Legal Status
used
Character
house
Construction Method
brick
Net Size
257 m²
Gross Size
257 m²
Plot Size
381 m²
Size of Terrace / Balcony
15 m²
Heating
Gas circulator
Ceiling Height
2,700 cm
Orientation
South
View
Other
Condition
Excellent
Condition of Facade
Good
Basement
values.realestate.pince.1
Year of Construction
2003
Position
street-facing
Garage Spaces
1
Water
Available
Gas
Available
Electricity
Available
Sewer
Available
Connected to Garden
yes
Storage
Independent