23,000,000 Ft
59,000 €
- 784m²












Szálláshely befektetési lehetőség!
Örök panorámás 784m2 zártkerti telek eladó a Dunakanyar szívében, Dunabogdány egyik legszebb részén.
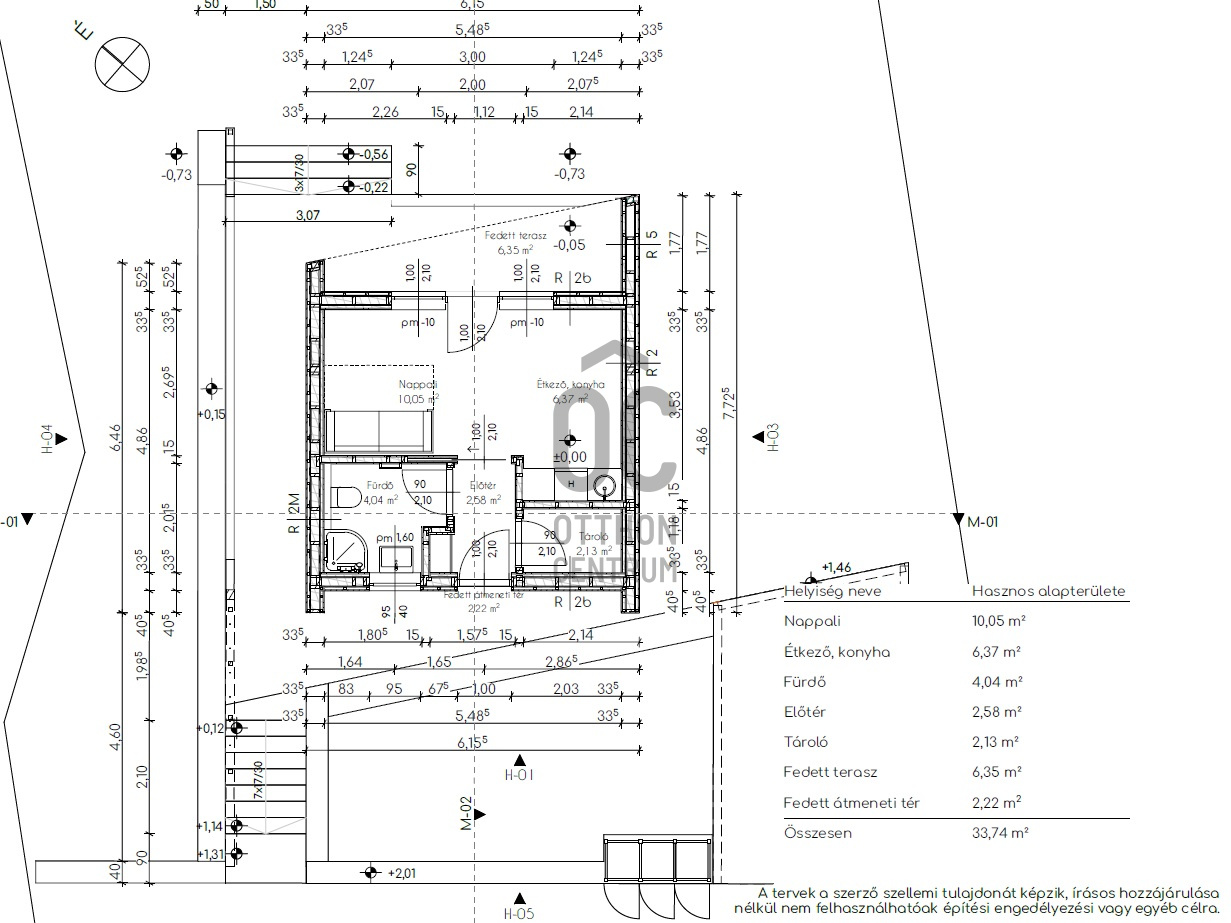
Jogerős építési engedéllyel egy 28m2 hasznos alapterületű szálláshelyre!
A terv szerint:
Az épület könnyűszerkezetes fa falváz építési móddal készül, palló vázzal, valamint acélszerkezettel.
Alapozás módja talajcsavaros síkalapozás.
Tetőfedés hornyolt matt fekete tetőcserép.
Homlokzati kialakítás:
fenyő fa homlokzatburkolat natúr színben, valamint Shou Sugi Ban technikával hőkezelt fenyő homlokzatburkolat.
Az épület körül támfal, gépkocsibeálló támfala és a kerítés lábazata gabion falszerkezetből épül meg.
Villany és víz a teleken belül, csatorna nincs az utcában egyelőre.
Dunabogdányi Pisztrángos az utca elején
Dunabogdányi Strand 1,5km
Visegrád 7 km
Leányfalui strand 11km
Telek besorolása: Lke3
- 25% beépíthetőség
- akár egy 196 m2-es családi ház is építhető rá.
Örök panorámás 784m2 zártkerti telek eladó a Dunakanyar szívében, Dunabogdány egyik legszebb részén.
Jogerős építési engedéllyel egy 28m2 hasznos alapterületű szálláshelyre!
A terv szerint:
Az épület könnyűszerkezetes fa falváz építési móddal készül, palló vázzal, valamint acélszerkezettel.
Alapozás módja talajcsavaros síkalapozás.
Tetőfedés hornyolt matt fekete tetőcserép.
Homlokzati kialakítás:
fenyő fa homlokzatburkolat natúr színben, valamint Shou Sugi Ban technikával hőkezelt fenyő homlokzatburkolat.
Az épület körül támfal, gépkocsibeálló támfala és a kerítés lábazata gabion falszerkezetből épül meg.
Villany és víz a teleken belül, csatorna nincs az utcában egyelőre.
Dunabogdányi Pisztrángos az utca elején
Dunabogdányi Strand 1,5km
Visegrád 7 km
Leányfalui strand 11km
Telek besorolása: Lke3
- 25% beépíthetőség
- akár egy 196 m2-es családi ház is építhető rá.
Registration Number
DTK029122
Property Details
Sales
for sale
Legal Status
new
Character
plot
Type of Land
Developmental plot
Net Size
784 m²
Gross Size
784 m²
Plot Size
784 m²
Basement
values.realestate.pince.1
Sewer
On the street
Connected to Garden
yes
Storage
Independent

Korcsog Melinda
Credit Expert