For sale apartment, DLK043363
Szentendre

159,000,000 Ft

445,000 €

  • 112m²
  • 4 Rooms
  • 2nd floor
Exclusive Contract

Szentendrén a Barackvirág lakóparkban ELADÓ egy 112 m2-es PRÉMIUM PENTHOUSE lakás 110 m2-es részben fedett terasszal! Kocsibeállóval! Kuriózum! Egyedülálló a piacon! Kizárólag irodánk kínálatában!

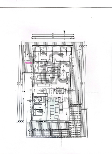
Szentendrén a Barackvirág  utcában eladó egy 2020-ban épült 7 lakásos társasház 2. emeletén lévő 112 m2-es penthouse lakás + 110 m2-es terasszal.

Az ingatlan az alábbi helyiségekből áll: nappali-ebédlő-konyha, 3 szoba 2 fürőszoba + wc, előszoba, közlekedő, hatalmas 110 m2-es terasz!

Az épület melynek tetején ékszerdobozként ül ez a lakás igényes és minőségi anyagokból épült. Az ingatlan gondosan válogatott Revoir, Paris hideg és Kaindl meleg-burkolatokkal, összesen 224 m2 alapterülettel várja új tulajdonosát. A 112 m2-es terasz kiváló lehetőséget nyújt azoknak, akik szeretnek kertészkedni, vagy grill partit rendezni. A vihar és forró napsütés ellen is védelmet nyújtó belga, Renson Lagune távirányítós motoros pergola, 4000*3000*3250mm-es méretben.

Az ingatlanhoz tartoziik 2 db kocsibeálló + 10.000.000,- Ft-ért!

További információért hívjon!



Registration Number

DLK043363

Property Details

Sales
for sale
Legal Status
used
Character
apartment
Construction Method
brick
Net Size
112 m²
Gross Size
112 m²
Heating
Gas circulator
Ceiling Height
280 cm
Orientation
South-East
Staircase Type
enclosed staircase
Condition
Excellent
Condition of Facade
Excellent
Year of Construction
2020
Number of Bathrooms
2
Position
courtyard-facing

Rooms

room
12.15 m²
room
12.15 m²
bathroom-toilet
6.43 m²
corridor
5.76 m²
entryway
8.4 m²
toilet
2.06 m²
kitchen
9.07 m²
dining room
11.72 m²
living room
24.84 m²
room
12.66 m²
terrace
87.25 m²
terrace
22.4 m²
Korcsog Melinda
Korcsog Melinda

Credit Expert

From Our Office Listings - Szentendre - Dunakanyar körút

for sale plot

Index image
16

for sale family house

Index image
18

for sale family house

Index image
data_sheet.details.realestate.section.main.otthonstart_flag.label
16

for sale family house

Index image
data_sheet.details.realestate.section.main.otthonstart_flag.label
30

for sale family house

Index image
data_sheet.details.realestate.section.main.otthonstart_flag.label
23

for sale semi-detached house

Index image
data_sheet.details.realestate.section.main.otthonstart_flag.label
11

for sale family house

Index image
data_sheet.details.realestate.section.main.otthonstart_flag.label
25

for sale family house

Index image
13

for sale family house

Index image
data_sheet.details.realestate.section.main.otthonstart_flag.label
27

for sale family house

Index image
data_sheet.details.realestate.section.main.otthonstart_flag.label
31

for sale family house

Index image
23