data_sheet.details.realestate.section.main.otthonstart_flag.label
For sale family house,
DHZ084225
Nagybaracska
25,990,000 Ft
67,000 €
- 120m²
- 3 Rooms




































Nagy családosok, gazdálkodni vágyók figyelem!!!Tökéletes lehetőség! Álmodtál már megfizethető áron, egy nagy kényelmes családiházat, amihez hatalmas fedett, hangulatos terasz társul, mindenféle gazdálkodásra vagy vállalkozásra alkalmas ~250 m2 gazdasági téglaépületek, ólak, műhelyek, zárható tárolók, borászatra, méhészetre alkalmas kamrák, pincék, nyárikonyha, utcára nyíló zárható ~18 m2 önálló garázs. A hátsó kertben pedig egy szépen karbantartott akácfa erdő.
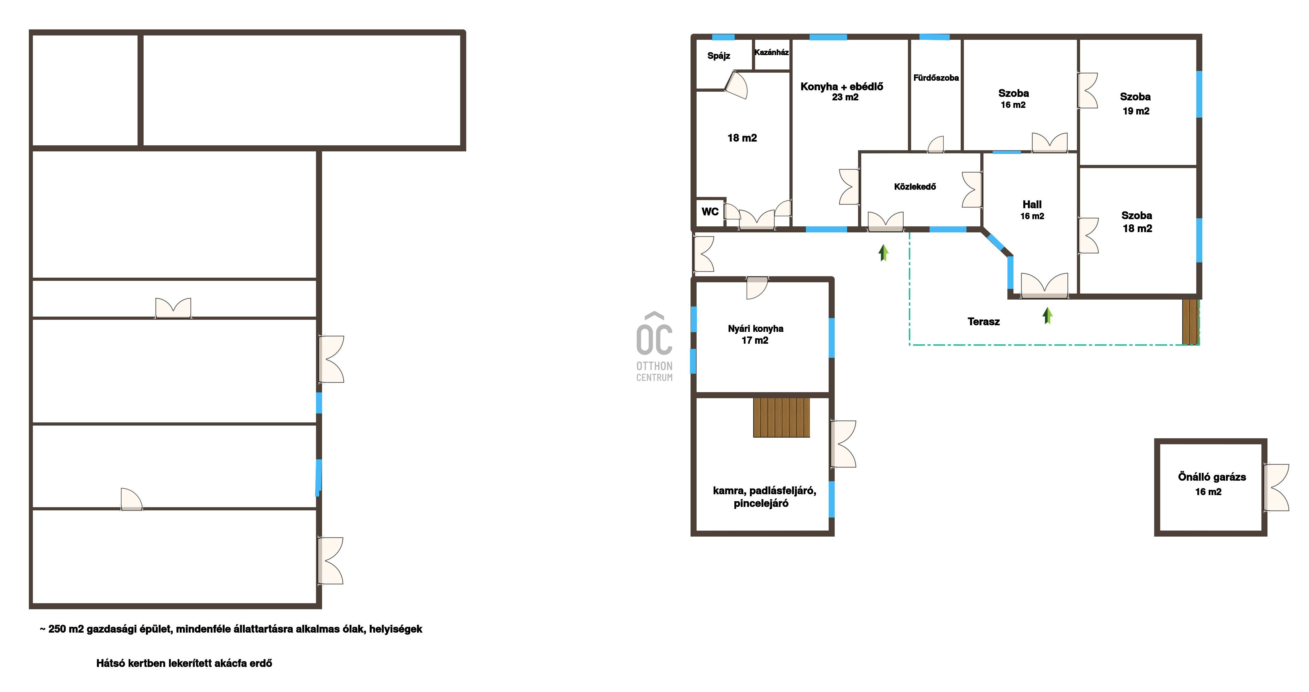
Részletesebb leírás: A családiházról: - 1975-ben épült.-112 m2 alapterületű családiház. Felosztását tekintve nagy konyha étkezővel, közlekedők, fürdőszoba, különálló wc, társalgó, 3 tágas hálószoba + egy helyiség ami akár még egy nappalinak alakítható, jelenleg kazánházként/tárolóként funkcionál, de a konyha mögött található, a falazat kibontásával, egy amerikai konyhás nappalivá lehetne alakítani, a két helyiséget. Részletesebben a méreteket és felosztását tekintse meg az alaprajzon.
- Strapabíró, száraz, egyenes tégla falak.- Összközmű: villany, víz, csatorna, gáz ingatlanban.- Fűtése radiátoros központi fűtés, található benne Fégtherm gázkazán, és vegyeztüzelésű kazán is. - Nagyon jó állapotú felújított tető, kerámia szalagcseréppel fedett, valamint a teljes padlást (a melléképület feletti részt is) 10cm vastag szigeteléssel fedték.- 1x32A villanyhálózat.- A meleg vizet villanybojler biztosítja. A fürdőszobában található fürdőkád és tusoló is.- A nyári melegben klíma gondoskodik a kellemes hőmérsékletről.- Hatalmas ablakok, szép napfényes ingatlan. - Hangulatos kétszárnyú bel-és kültéri ajtók.A telekről: -1863 m2-es lakóövezeti telek. A gazdasági épületek is nyilván vannak tartva a földhivatalban.- ~40 m2-es melléképület pár lépésnyire a tágas terasztól egy nyárikonyha. Teljesen jól funkcionál bent van hideg-meleg víz és központi fűtés is. A melléképületből nyílik még egy kamra, és onnan lehet megközelíteni a pincét és padlásfeljárót. - Szinte az egész telek 80%-ban betonozott. - Az előkertben és az udvar első felében szépen karbantartott veteményes.- Hátsó része a teleknek elkülönített, betonozva van, 250 m2-nyi gazdasági épületek bármire alkalmasak, jó állapotúak, tégla falazatúak. Zárható kisebb-nagyobb helyiségek vannak benne kialakítva és számtalan állattartásra alkalmas zárható ólak is itt találhatóak.- Fúrtkút van a kertben.- A gazdasági épület mögött saját szépen karbantartott akácfaerdő.
Az ingatlannak különleges hangulata van, számtalan lehetőséget rejt magában. Szép állapotú, jelenlegi tulajdonosai folyamatos karbantartás alatt tartották. HITELRE, CSOK-RA ALKALMAS.KÉRJE DÍJMENTES TANÁCSADÁSUNKAT.Előre egyeztetett időpontban megtekinthető.Videó is kérhető az ingatlanról.
Részletesebb leírás: A családiházról: - 1975-ben épült.-112 m2 alapterületű családiház. Felosztását tekintve nagy konyha étkezővel, közlekedők, fürdőszoba, különálló wc, társalgó, 3 tágas hálószoba + egy helyiség ami akár még egy nappalinak alakítható, jelenleg kazánházként/tárolóként funkcionál, de a konyha mögött található, a falazat kibontásával, egy amerikai konyhás nappalivá lehetne alakítani, a két helyiséget. Részletesebben a méreteket és felosztását tekintse meg az alaprajzon.
- Strapabíró, száraz, egyenes tégla falak.- Összközmű: villany, víz, csatorna, gáz ingatlanban.- Fűtése radiátoros központi fűtés, található benne Fégtherm gázkazán, és vegyeztüzelésű kazán is. - Nagyon jó állapotú felújított tető, kerámia szalagcseréppel fedett, valamint a teljes padlást (a melléképület feletti részt is) 10cm vastag szigeteléssel fedték.- 1x32A villanyhálózat.- A meleg vizet villanybojler biztosítja. A fürdőszobában található fürdőkád és tusoló is.- A nyári melegben klíma gondoskodik a kellemes hőmérsékletről.- Hatalmas ablakok, szép napfényes ingatlan. - Hangulatos kétszárnyú bel-és kültéri ajtók.A telekről: -1863 m2-es lakóövezeti telek. A gazdasági épületek is nyilván vannak tartva a földhivatalban.- ~40 m2-es melléképület pár lépésnyire a tágas terasztól egy nyárikonyha. Teljesen jól funkcionál bent van hideg-meleg víz és központi fűtés is. A melléképületből nyílik még egy kamra, és onnan lehet megközelíteni a pincét és padlásfeljárót. - Szinte az egész telek 80%-ban betonozott. - Az előkertben és az udvar első felében szépen karbantartott veteményes.- Hátsó része a teleknek elkülönített, betonozva van, 250 m2-nyi gazdasági épületek bármire alkalmasak, jó állapotúak, tégla falazatúak. Zárható kisebb-nagyobb helyiségek vannak benne kialakítva és számtalan állattartásra alkalmas zárható ólak is itt találhatóak.- Fúrtkút van a kertben.- A gazdasági épület mögött saját szépen karbantartott akácfaerdő.
Az ingatlannak különleges hangulata van, számtalan lehetőséget rejt magában. Szép állapotú, jelenlegi tulajdonosai folyamatos karbantartás alatt tartották. HITELRE, CSOK-RA ALKALMAS.KÉRJE DÍJMENTES TANÁCSADÁSUNKAT.Előre egyeztetett időpontban megtekinthető.Videó is kérhető az ingatlanról.
Registration Number
DHZ084225
Property Details
Sales
for sale
Legal Status
used
Character
house
Construction Method
brick
Net Size
120 m²
Gross Size
120 m²
Plot Size
1,863 m²
Heating
Gas circulator
Number of Levels Within the Property
1
Orientation
North
Condition
Good
Condition of Facade
Good
Year of Construction
1975
Number of Bathrooms
1
Position
courtyard-facing
Water
Available
Gas
Available
Electricity
Available
Sewer
Available
Rooms
open-plan kitchen and dining room
22.9 m²
corridor
9.7 m²
room
16 m²
room
18.7 m²
room
18 m²
toilet
1 m²
pantry
3.9 m²