259,900,000 Ft
681,000 €
- 330m²
- 5 Rooms
Eladó luxus villa Budapesten a 15.-ik kerületben!
Ez az ingatlan tökéletes választás azok számára, akik értékelik a modern építészeti megoldásokat, a kényelmet és a luxust. Ne hagyja ki ezt a kivételes lehetőséget, hogy Ön lehessen ennek az exkluzív otthonnak a tulajdonosa.
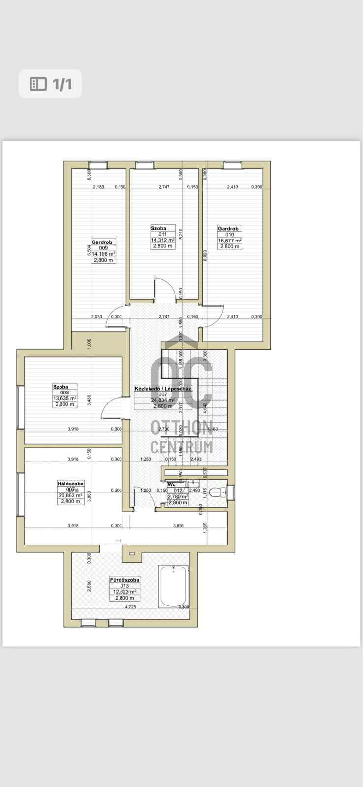
Az épület egy kb. 330 m2 alapterületű, tégla építésű luxus ház. 2012-ben épült. Két lakószinttel + egy hatalmas borospincével rendelkezik. Az elrendezése: hatalmas amerikai konyha+nappali, 4 szoba, 3 fürdőszoba, 3 gardrób( melyek szobává alakíthatók), téli kert, ahol a jacuzzi található és a borospince.
A ház műszaki tartalma kimagasló színvonalú: A belső terek prémium burkolatokkal, bútorokkal és háztartási gépekkel lettek kialakítva. Az ingatlan belső tereit gondosan tervezték meg, hogy maximalizálják a kényelmet és a funkcionalitást. Az otthon melegét gáz kazánnal, míg a nyári hónapok kellemes hőmérsékletét klímaberendezéssel biztosíthatja a jövőbeli tulajdonos. A helyiségek praktikus elrendezésűek, stílusukat belsőépítész tervei alapján alkotta meg a tulajdonos.
Műszaki tartalom:
- gázfűtés padló és falfűtéssel
-l égkondícionálás
- Prémium hőszigetlet nyilászárók, hatalmas üvegfelületek
- Jacuzzi
- poroszsüveges borospince
- iroda
- több gardróbszoba
- 2 állásos garázs
- gyönyörű parkosított kert
A telek 736 m2 területű. A házból nyíló udvari nézet nyugalommal tölti meg a lakóteret, Ez a sajátos elhelyezkedés teszi lehetővé, hogy élvezze a városi élet minden előnyét. A terület rendelkezik egy kb. 55 m2-es igényesen kivitelezett duplagarázzsal is.
Az ingatlan nem csak modern kényelemmel, de kiváló közlekedési kapcsolatokkal is rendelekzik. Egy igazi ritkaság azok számára, akik minőségi lakókörnyezetre vágynak.
Keressen bizalommal!
Ez az ingatlan tökéletes választás azok számára, akik értékelik a modern építészeti megoldásokat, a kényelmet és a luxust. Ne hagyja ki ezt a kivételes lehetőséget, hogy Ön lehessen ennek az exkluzív otthonnak a tulajdonosa.
Az épület egy kb. 330 m2 alapterületű, tégla építésű luxus ház. 2012-ben épült. Két lakószinttel + egy hatalmas borospincével rendelkezik. Az elrendezése: hatalmas amerikai konyha+nappali, 4 szoba, 3 fürdőszoba, 3 gardrób( melyek szobává alakíthatók), téli kert, ahol a jacuzzi található és a borospince.
A ház műszaki tartalma kimagasló színvonalú: A belső terek prémium burkolatokkal, bútorokkal és háztartási gépekkel lettek kialakítva. Az ingatlan belső tereit gondosan tervezték meg, hogy maximalizálják a kényelmet és a funkcionalitást. Az otthon melegét gáz kazánnal, míg a nyári hónapok kellemes hőmérsékletét klímaberendezéssel biztosíthatja a jövőbeli tulajdonos. A helyiségek praktikus elrendezésűek, stílusukat belsőépítész tervei alapján alkotta meg a tulajdonos.
Műszaki tartalom:
- gázfűtés padló és falfűtéssel
-l égkondícionálás
- Prémium hőszigetlet nyilászárók, hatalmas üvegfelületek
- Jacuzzi
- poroszsüveges borospince
- iroda
- több gardróbszoba
- 2 állásos garázs
- gyönyörű parkosított kert
A telek 736 m2 területű. A házból nyíló udvari nézet nyugalommal tölti meg a lakóteret, Ez a sajátos elhelyezkedés teszi lehetővé, hogy élvezze a városi élet minden előnyét. A terület rendelkezik egy kb. 55 m2-es igényesen kivitelezett duplagarázzsal is.
Az ingatlan nem csak modern kényelemmel, de kiváló közlekedési kapcsolatokkal is rendelekzik. Egy igazi ritkaság azok számára, akik minőségi lakókörnyezetre vágynak.
Keressen bizalommal!
Registration Number
DHZ031129
Property Details
Sales
for sale
Legal Status
used
Character
house
Construction Method
brick
Net Size
330 m²
Gross Size
330 m²
Plot Size
736 m²
Number of Levels Within the Property
2
Orientation
South-East
Condition
Excellent
Condition of Facade
Excellent
Year of Construction
2012
Number of Bathrooms
2
Position
courtyard-facing
Water
Available
Gas
Available
Electricity
Available
Sewer
Available
Rooms
room
14.3 m²
wardrobe
14.1 m²
wardrobe
16.6 m²
corridor
24.8 m²
room
13.6 m²
room
20.8 m²
toilet
2.78 m²
living room
29 m²
open-plan kitchen and dining room
25.1 m²
entryway
9.8 m²
corridor
10.41 m²
wardrobe
5.47 m²
bathroom-toilet
6.5 m²
living room
54.7 m²
Pomaházi Pál
Credit Expert