620,000,000 Ft
1,638,000 €
- 300m²
- 5 Rooms
Városi oázis: lélegzetelállító kilátás és páratlan luxus Budaörsön
A hegy egy csendes, elvarázsolt részén, mégis Budaörs központi elhelyezkedésével ez a modern okosotthon a nyugodt élet és a városi kényelem tökéletes ötvözete. A Budaörs városára és a budapesti panorámára nyíló látványos, lenyűgöző kilátással ez a rezidencia a modern építészet és a luxus design igazi remekműve.
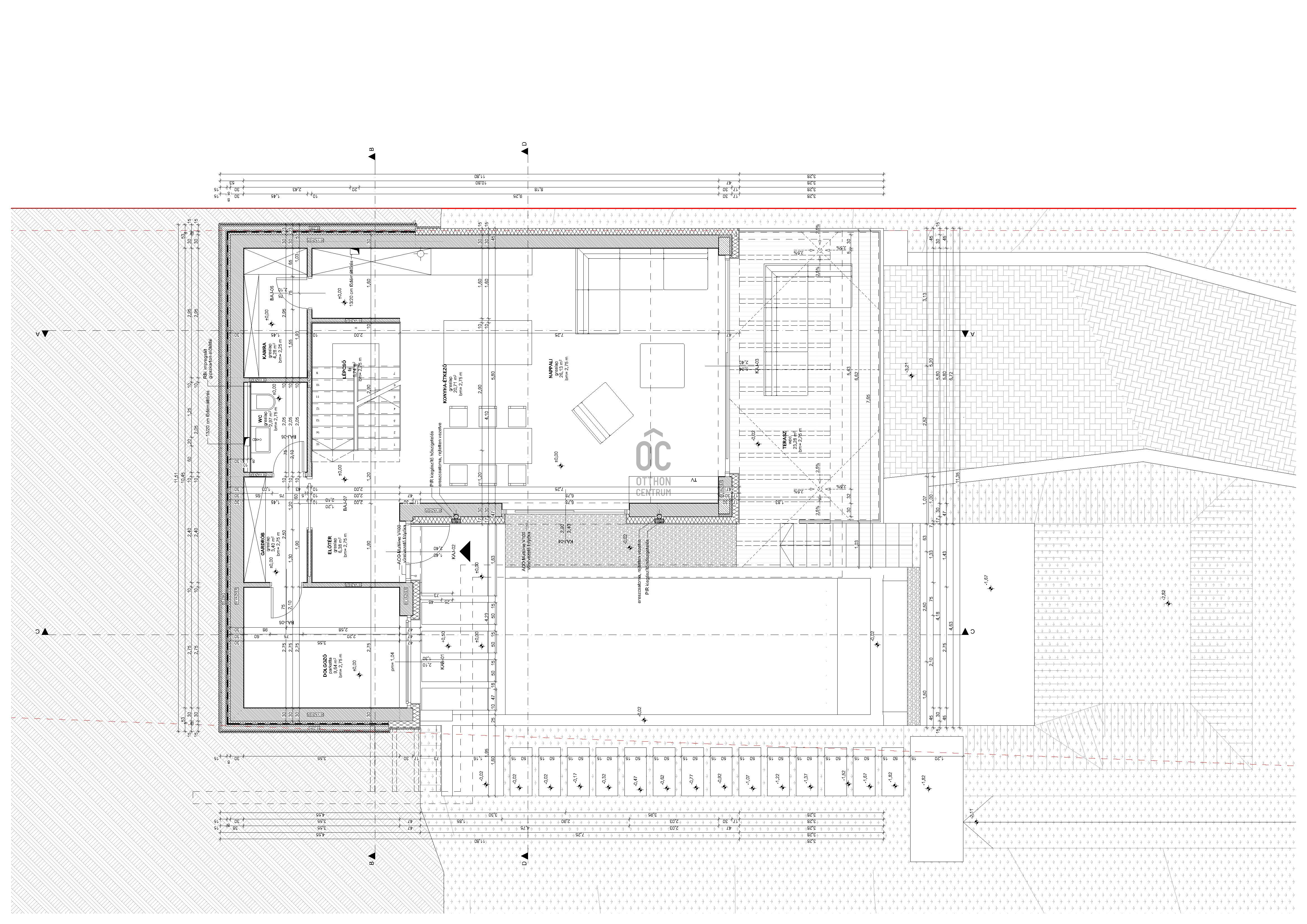
Lépjen be egy olyan otthonba, ahol minden részletet a legkiválóbb anyagok felhasználásával alkottak meg aprólékosan. A nyitott terű lakóteret az elegancia és praktiusság határozza meg, amely egy hatalmas beltéri konyhába vezet, amely minden séf álma, és a legkorszerűbb berendezésekkel és kiváló minőségű felületekkel rendelkezik.
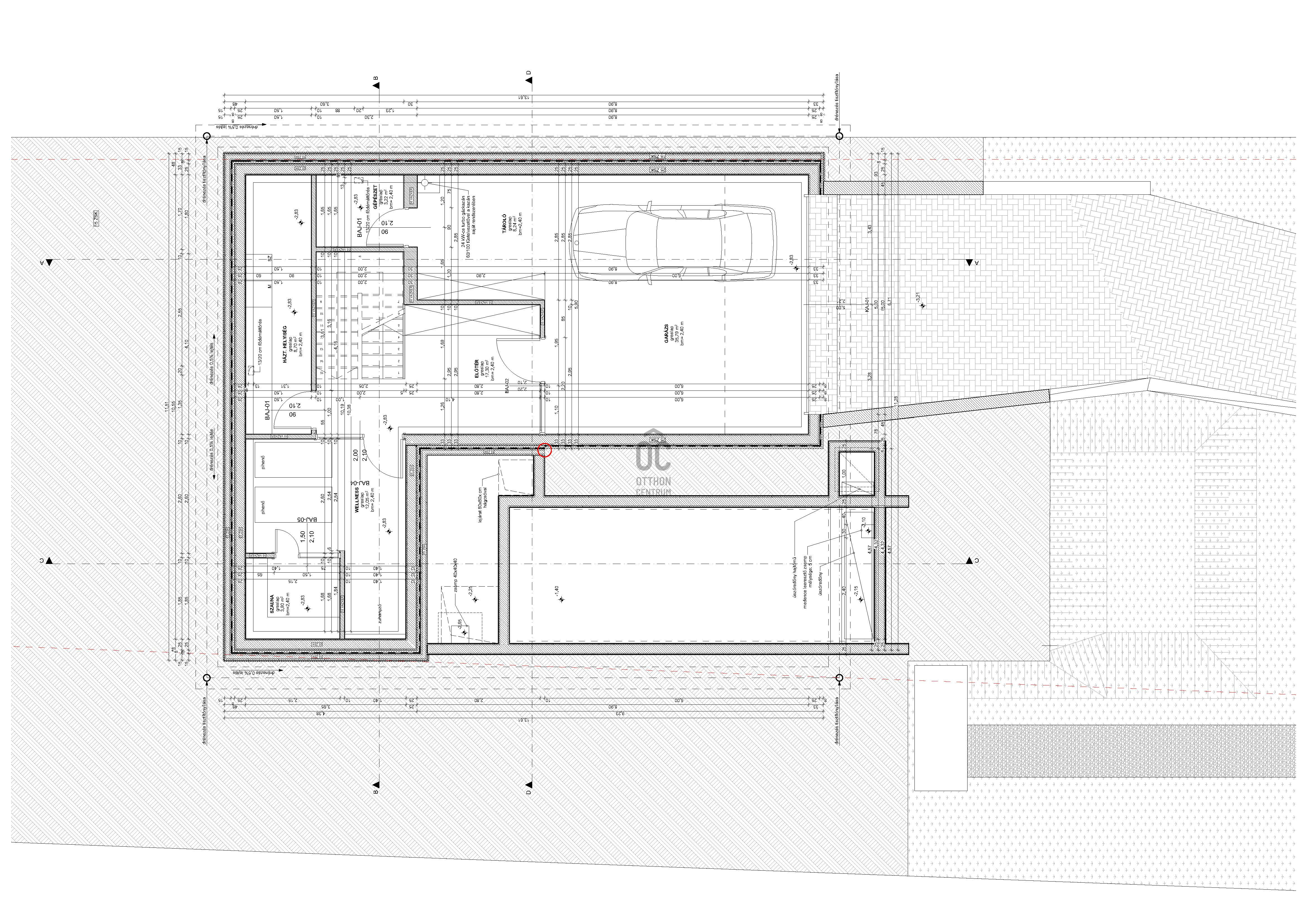
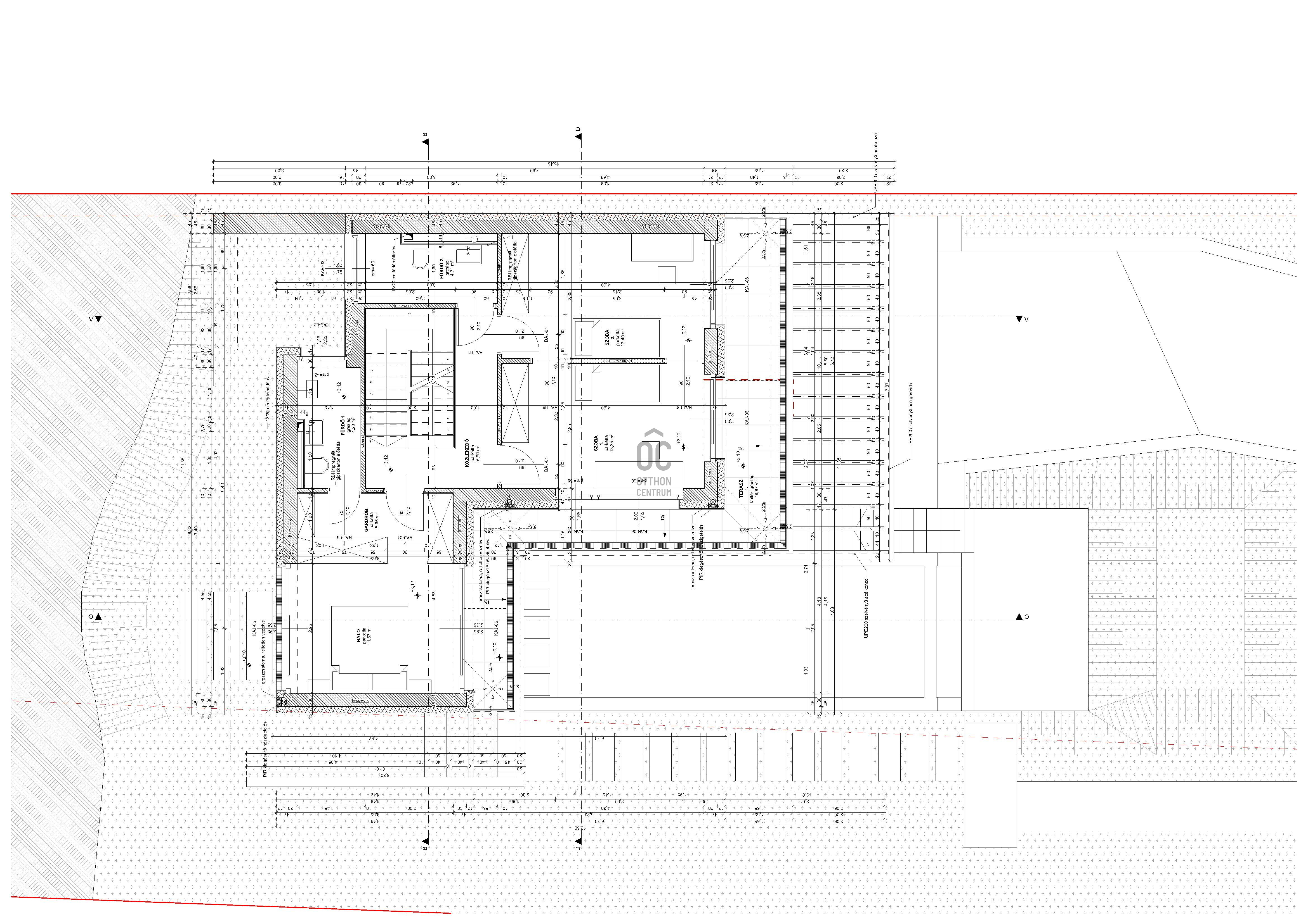
Az otthonban négy tágas hálószoba és három pazar fürdőszoba található, amelyek bőséges teret és magánéletet biztosítanak az egész család számára. A tökéletes kikapcsolódás és felfrissülés érdekében vonuljon el a saját wellnessrészlegébe, amely egy lenyűgöző, beépített, himalájai sófallal rendelkező szaunával és egy teljesen felszerelt edzőteremmel várja.
A szabadtéri terek nagyszabású szórakoztatásra és békés családi pillanatokra egyaránt alkalmasak. Élvezze a napsütéses napokat a csillogó kültéri medence mellett, készítsen ételeket a külön kültéri konyhában, vagy egyszerűen csak pihenjen a teraszon, és gyönyörködjön a csodálatos városi kilátásban. A gondosan parkosított udvaron egy játszótér is található, így a gyerekek számára is elragadó menedék.
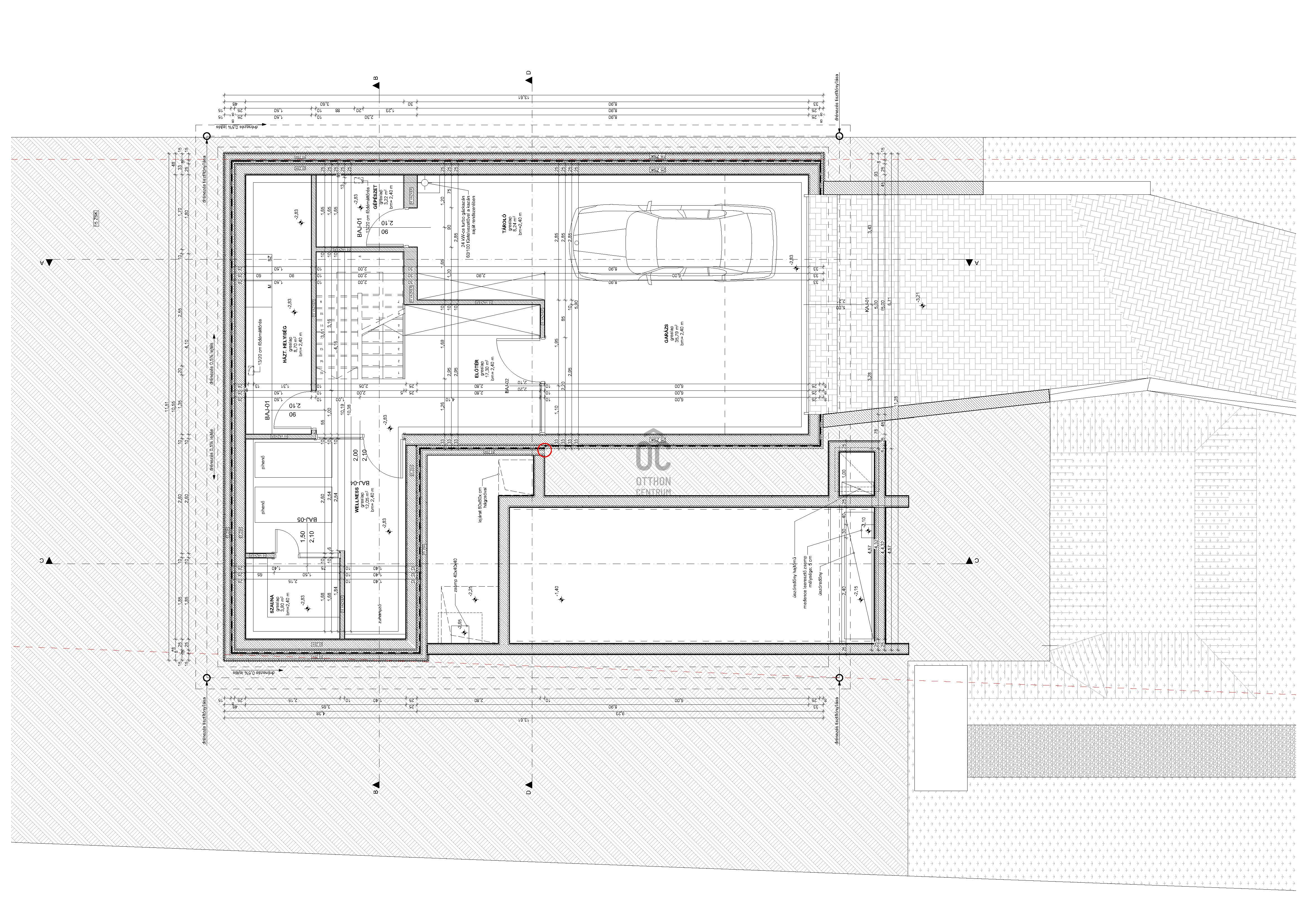
Ez az okosotthon nem csupán a luxus szentélye, hanem a kényelem fellegvára is, melyhez kétállásos garázs és további négy kültéri parkolóhely is tartozik, hogy minden igényt kielégítsen.
Ez az ingatlan több, mint egy otthon, ez egy életstílus. Tapasztalja meg a páratlan luxust és Budaörs által kínált legjobb kilátást.
A hegy egy csendes, elvarázsolt részén, mégis Budaörs központi elhelyezkedésével ez a modern okosotthon a nyugodt élet és a városi kényelem tökéletes ötvözete. A Budaörs városára és a budapesti panorámára nyíló látványos, lenyűgöző kilátással ez a rezidencia a modern építészet és a luxus design igazi remekműve.
Lépjen be egy olyan otthonba, ahol minden részletet a legkiválóbb anyagok felhasználásával alkottak meg aprólékosan. A nyitott terű lakóteret az elegancia és praktiusság határozza meg, amely egy hatalmas beltéri konyhába vezet, amely minden séf álma, és a legkorszerűbb berendezésekkel és kiváló minőségű felületekkel rendelkezik.
Az otthonban négy tágas hálószoba és három pazar fürdőszoba található, amelyek bőséges teret és magánéletet biztosítanak az egész család számára. A tökéletes kikapcsolódás és felfrissülés érdekében vonuljon el a saját wellnessrészlegébe, amely egy lenyűgöző, beépített, himalájai sófallal rendelkező szaunával és egy teljesen felszerelt edzőteremmel várja.
A szabadtéri terek nagyszabású szórakoztatásra és békés családi pillanatokra egyaránt alkalmasak. Élvezze a napsütéses napokat a csillogó kültéri medence mellett, készítsen ételeket a külön kültéri konyhában, vagy egyszerűen csak pihenjen a teraszon, és gyönyörködjön a csodálatos városi kilátásban. A gondosan parkosított udvaron egy játszótér is található, így a gyerekek számára is elragadó menedék.
Ez az okosotthon nem csupán a luxus szentélye, hanem a kényelem fellegvára is, melyhez kétállásos garázs és további négy kültéri parkolóhely is tartozik, hogy minden igényt kielégítsen.
Ez az ingatlan több, mint egy otthon, ez egy életstílus. Tapasztalja meg a páratlan luxust és Budaörs által kínált legjobb kilátást.
Registration Number
DHZ024522
Property Details
Sales
for sale
Legal Status
used
Character
house
Construction Method
brick
Net Size
300 m²
Gross Size
300 m²
Plot Size
968 m²
Size of Terrace / Balcony
43.1 m²
Heating
Gas circulator
Ceiling Height
240 cm
Number of Levels Within the Property
3
Orientation
South-East
View
Other
Condition
Excellent
Condition of Facade
Excellent
Year of Construction
2019
Number of Bathrooms
2
Water
Available
Gas
Available
Electricity
Available
Sewer
Available
Rooms
room
9.64 m²
wardrobe
3.4 m²
pantry
4.28 m²
staircase
5.74 m²
veranda
23.28 m²
room
11.57 m²
wardrobe
5.65 m²
bathroom-toilet
4.2 m²
corridor
5.89 m²
bathroom-toilet
4.71 m²
room
13.35 m²
room
13.4 m²
veranda
19.87 m²
utility room
8.7 m²
open-plan kitchen and living room
46.85 m²