226,800,000 Ft
604,000 €
- 126.2m²
- 4 Rooms
- 1st floor
Prémium minőségű újépítésű lakások Péterhegyen modern építészet, zöldtetők, kivételes terek
Budapest XI. kerületének egyik legkedveltebb, csendes és zöldövezeti részén, Péterhegyen épül ez a magas műszaki tartalommal rendelkező, elegáns négylakásos társasház.
A projekt azok számára készült, akik a modern építészetet, az időtálló szerkezeteket és a nagyvonalú, napfényes tereket keresik nyugodt környezetben, mégis remek közlekedéssel és infrastruktúrával.
A 2026 IV. negyedévben átadásra kerülő épületben 3 különböző lakástípus érhető el, melyek közül mindenki megtalálja az élethelyzetéhez és igényeihez leginkább illőt.
A társasház építészeti megjelenését a modern, letisztult formák és a zöldtetők eleganciája határozza meg.
A szerkezet minden eleme a hosszú távú stabilitást és energiahatékonyságot szolgálja:
Szerkezet és szigetelés
- Monolit vasbeton alapok
- Porotherm 30 K téglafalak
- Monolit vasbeton födémek
- Zöldtető és titáncink lemez héjalás
- Homlokzati hőszigetelés: 5 cm grafitos EPS + Heraklith
- Erkélyek: hő- és hanghídmegszakított vb. szerkezet, csúszásmentes kerámiaburkolattal
- Nyílászárók: 3 rétegű üveg, hőhídmentes redőnytokkal
Gépészet és komfort
- Központi levegővíz hőszivattyú fűtésre és hűtésre
- HMV ellátás: hőszivattyúról
- Padlófűtés + igény szerint kiegészítő fűtés a fürdőkben
- Modern PVC/KG-PVC csatornarendszer
- Mindhárom lakásban prémium szaniterek
Elektromos rendszer
- Háromfázis lakásonként, bővíthető kapacitás
- Automata, távvezérlésű kapuk
- Kaputelefon távnyitó funkcióval
- Legrand Valena szerelvénycsalád
- Teljes értékű villámvédelem
- Belsőépítészeti alapfelszereltség
A kivitelezés része a minőségi burkolat- és szanitercsomag, amely igény szerint módosítható:
- Laminált parketta: 6 000 Ft/m²
- Hideg burkolatok: 6 000 Ft/m²
- Prémium beltéri ajtók
- Fürdőszobai felszerelések (kád, zuhany, mosdók, WC-k)
A társasház nyugodt, kertvárosias utcában épül, ahol a természet és a nagyváros előnyei egyensúlyban vannak:
- Gyors közlekedés az M1-M7-M0 csomópont felé
- Kelenföldi pályaudvar és metró pár perc alatt elérhető
- Iskolák, óvodák, bevásárlóközpontok a közelben
- Rendezett, családias lakókörnyezet, sok zöldterület
A környék ideális mindazok számára, akik csendes, biztonságos, értékálló helyszínt keresnek Budapest egyik legjobb budai kerületében.
Miért különleges ez a projekt?
*Zöldtetős, magas műszaki tartalmú épület
*Kizárólag 4 lakás exkluzív, csendes lakóközösség
*Energiatakarékos, modern gépészeti rendszer
*Ideális elrendezések 3-4 szobával
*Nagy erkélyek, teraszok, penthouse jellegű tetőkert
*Tágas garázs és praktikus tárolók
*Tökéletes lokáció a XI. kerületben
Budapest XI. kerületének egyik legkedveltebb, csendes és zöldövezeti részén, Péterhegyen épül ez a magas műszaki tartalommal rendelkező, elegáns négylakásos társasház.
A projekt azok számára készült, akik a modern építészetet, az időtálló szerkezeteket és a nagyvonalú, napfényes tereket keresik nyugodt környezetben, mégis remek közlekedéssel és infrastruktúrával.
A 2026 IV. negyedévben átadásra kerülő épületben 3 különböző lakástípus érhető el, melyek közül mindenki megtalálja az élethelyzetéhez és igényeihez leginkább illőt.
A társasház építészeti megjelenését a modern, letisztult formák és a zöldtetők eleganciája határozza meg.
A szerkezet minden eleme a hosszú távú stabilitást és energiahatékonyságot szolgálja:
Szerkezet és szigetelés
- Monolit vasbeton alapok
- Porotherm 30 K téglafalak
- Monolit vasbeton födémek
- Zöldtető és titáncink lemez héjalás
- Homlokzati hőszigetelés: 5 cm grafitos EPS + Heraklith
- Erkélyek: hő- és hanghídmegszakított vb. szerkezet, csúszásmentes kerámiaburkolattal
- Nyílászárók: 3 rétegű üveg, hőhídmentes redőnytokkal
Gépészet és komfort
- Központi levegővíz hőszivattyú fűtésre és hűtésre
- HMV ellátás: hőszivattyúról
- Padlófűtés + igény szerint kiegészítő fűtés a fürdőkben
- Modern PVC/KG-PVC csatornarendszer
- Mindhárom lakásban prémium szaniterek
Elektromos rendszer
- Háromfázis lakásonként, bővíthető kapacitás
- Automata, távvezérlésű kapuk
- Kaputelefon távnyitó funkcióval
- Legrand Valena szerelvénycsalád
- Teljes értékű villámvédelem
- Belsőépítészeti alapfelszereltség
A kivitelezés része a minőségi burkolat- és szanitercsomag, amely igény szerint módosítható:
- Laminált parketta: 6 000 Ft/m²
- Hideg burkolatok: 6 000 Ft/m²
- Prémium beltéri ajtók
- Fürdőszobai felszerelések (kád, zuhany, mosdók, WC-k)
A társasház nyugodt, kertvárosias utcában épül, ahol a természet és a nagyváros előnyei egyensúlyban vannak:
- Gyors közlekedés az M1-M7-M0 csomópont felé
- Kelenföldi pályaudvar és metró pár perc alatt elérhető
- Iskolák, óvodák, bevásárlóközpontok a közelben
- Rendezett, családias lakókörnyezet, sok zöldterület
A környék ideális mindazok számára, akik csendes, biztonságos, értékálló helyszínt keresnek Budapest egyik legjobb budai kerületében.
Miért különleges ez a projekt?
*Zöldtetős, magas műszaki tartalmú épület
*Kizárólag 4 lakás exkluzív, csendes lakóközösség
*Energiatakarékos, modern gépészeti rendszer
*Ideális elrendezések 3-4 szobával
*Nagy erkélyek, teraszok, penthouse jellegű tetőkert
*Tágas garázs és praktikus tárolók
*Tökéletes lokáció a XI. kerületben
Registration Number
DLK088304
Property Details
Sales
for sale
Legal Status
new
Character
apartment
Construction Method
brick
Net Size
126.2 m²
Gross Size
126.2 m²
Heating
other
Ceiling Height
267 cm
Number of Levels Within the Property
1
Orientation
North-East
Staircase Type
enclosed staircase
Condition
Good
Condition of Facade
Good
Year of Construction
2026
Number of Bathrooms
1
Position
courtyard-facing
Connected to Garden
yes
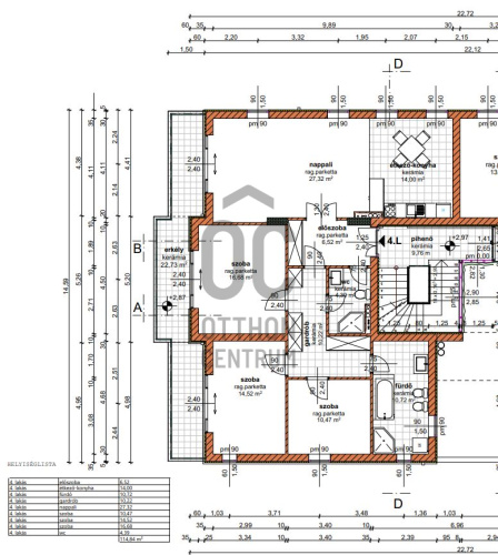
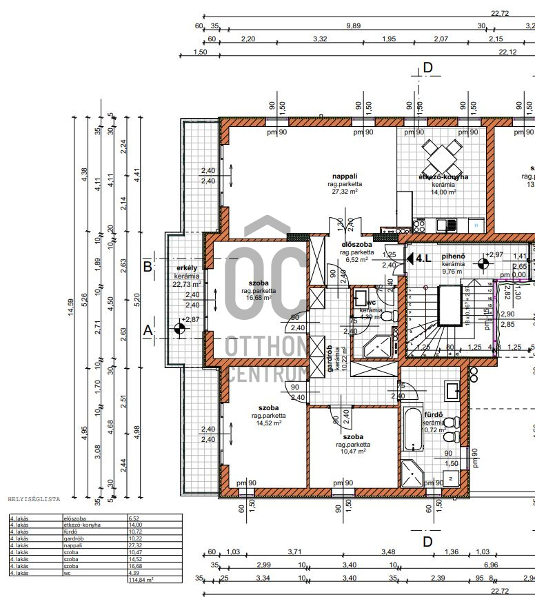
Rooms
entryway
6.52 m²
open-plan kitchen and dining room
14 m²
bathroom-toilet
10.72 m²
wardrobe
10.22 m²
living room
27.32 m²
room
10.47 m²
room
14.52 m²
room
16.68 m²
toilet
4.39 m²
balcony
22.73 m²