1,054,762,500 Ft
2,750,000 €
- 2,020m²
Fektessen be a jövőbe: Fejlesztési épület a Corvin negyed szívében!
Budapest VIII kerület csodálatosan megújult Corvin negyed városrészében, pár lépés távolságra a Corvin Plázától eladó egy teljes mértékben megépült épület váz.
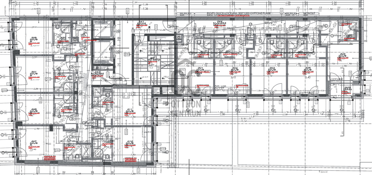
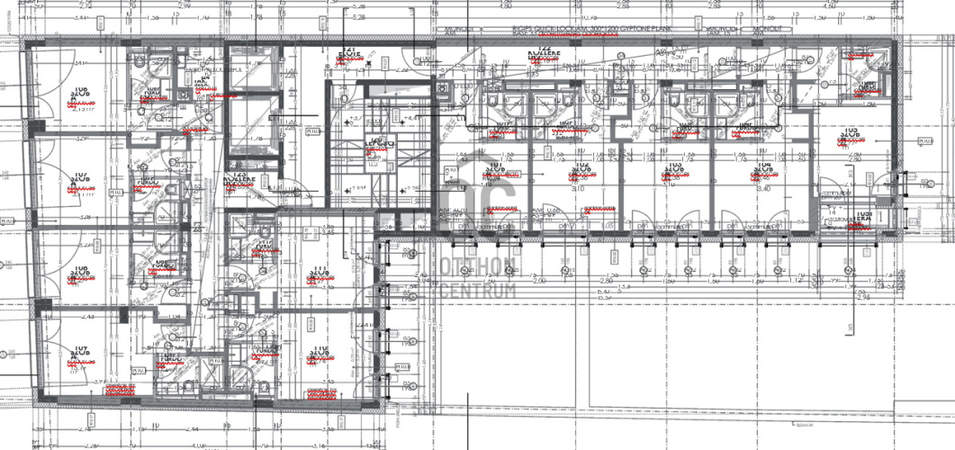
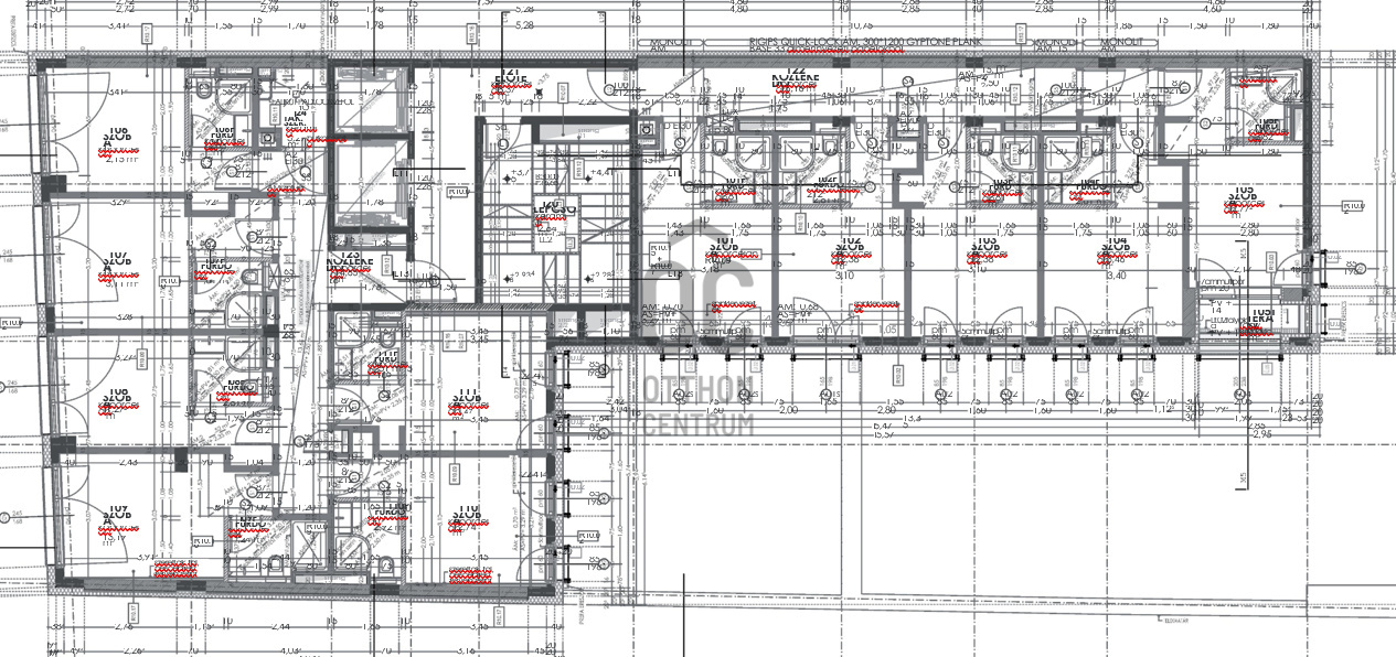
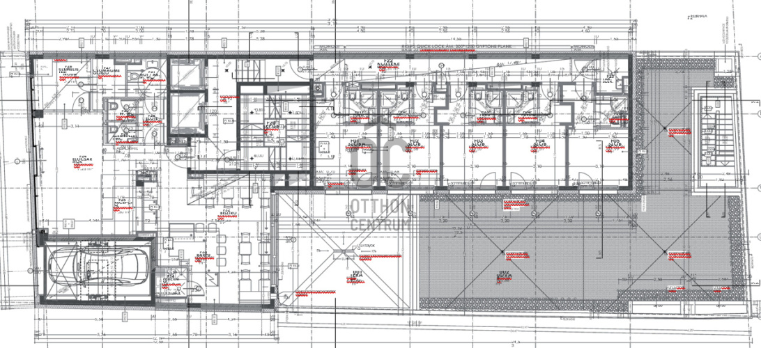
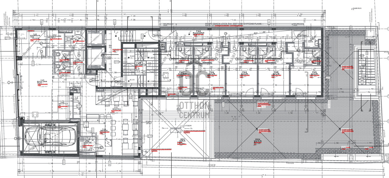
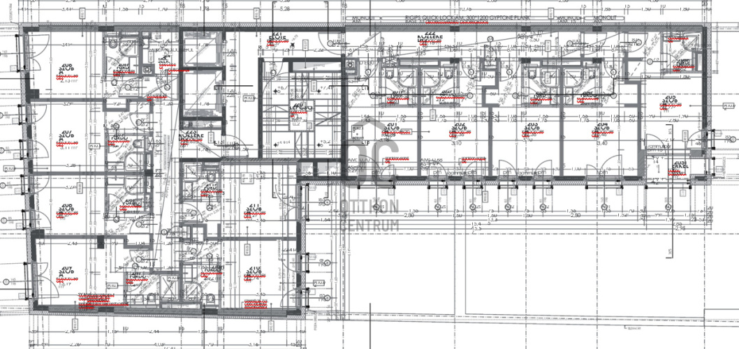
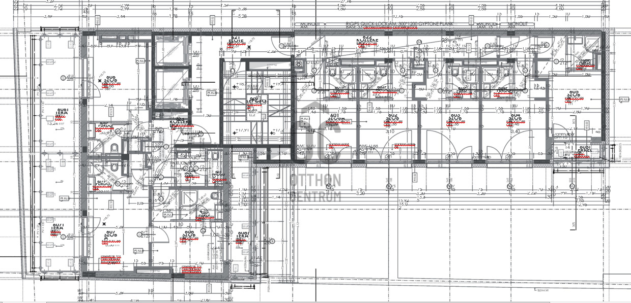
Az ingatlan 68 szobás szállodára kapott építési engedélyt, amely a kor kívánalmai szerint lett kialakítva.
Az épület befejezésre, vagy akár lakóház céljára történő átépítésre vár.
Kialakítsa szerint, garázsszint + földszint + 6 emelet kialakítású.
Telek: 505nm
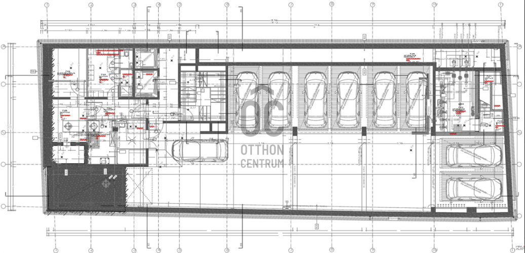
Garázsszint 430nm 19 autó elhelyezési lehetőséggel
Földszint: Lobbi + 60nm üzlet terület + 5 vendégszoba + 90nm kerthelyiség
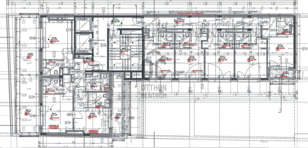
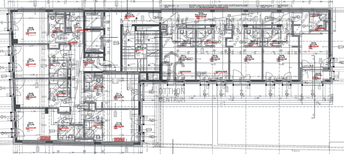
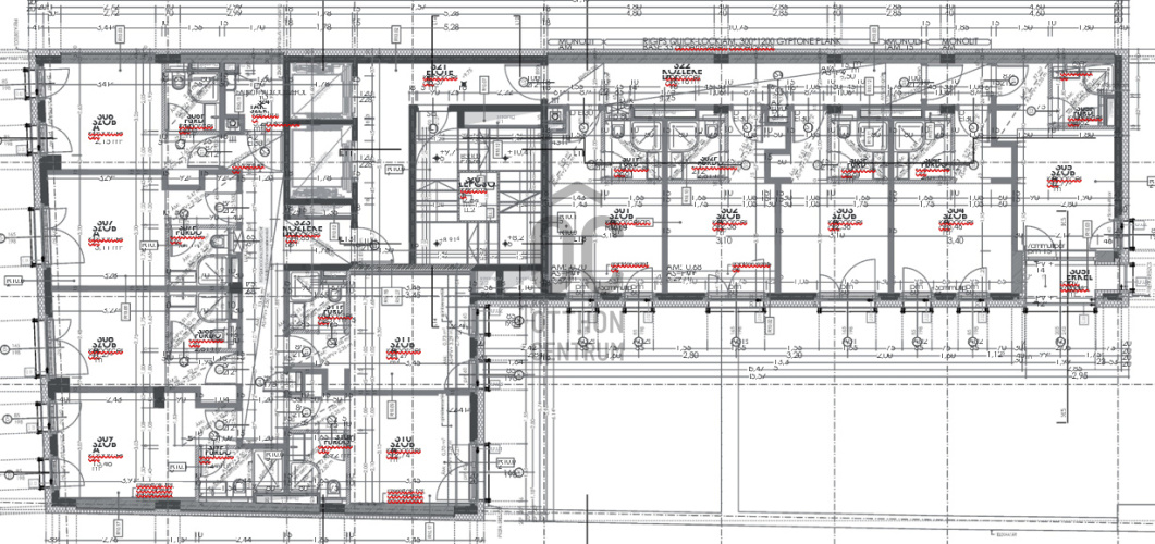
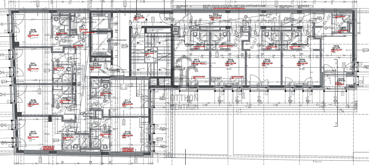
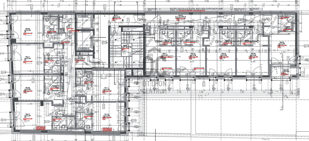
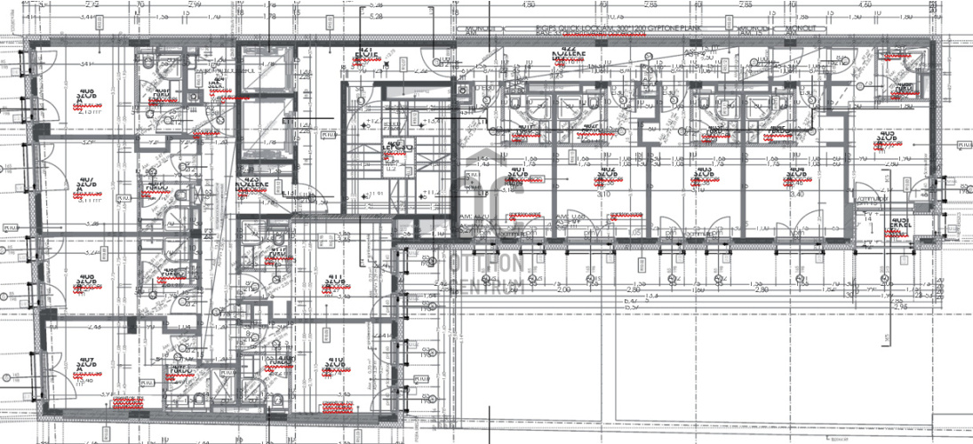
1-5 emelet: emeletenként 11db 16-18nm nagyságú szoba
6 emelet: 8 szoba melyből 3 szoba nagy, panorámás terasszal rendelkezik.
Az épületbe 2db nagyméretű lift beépítése lehetséges, a szobák központi hűtő-fűtő berendezésekkel, a kor követelményei szerinti okosmegoldásokkal lett tervezve és ennek megfelelően előkészítve.
Ha szeretne egy kiváló lokációban lévő, könnyen befejezhető szállodai projektet, kellő szobaszámmal, akkor ez a lehetőség kihagyhatatlan az Ön számára!
Az ingatlan 68 szobás szállodára kapott építési engedélyt, amely a kor kívánalmai szerint lett kialakítva.
Az épület befejezésre, vagy akár lakóház céljára történő átépítésre vár.
Kialakítsa szerint, garázsszint + földszint + 6 emelet kialakítású.
Telek: 505nm
Garázsszint 430nm 19 autó elhelyezési lehetőséggel
Földszint: Lobbi + 60nm üzlet terület + 5 vendégszoba + 90nm kerthelyiség
1-5 emelet: emeletenként 11db 16-18nm nagyságú szoba
6 emelet: 8 szoba melyből 3 szoba nagy, panorámás terasszal rendelkezik.
Az épületbe 2db nagyméretű lift beépítése lehetséges, a szobák központi hűtő-fűtő berendezésekkel, a kor követelményei szerinti okosmegoldásokkal lett tervezve és ennek megfelelően előkészítve.
Ha szeretne egy kiváló lokációban lévő, könnyen befejezhető szállodai projektet, kellő szobaszámmal, akkor ez a lehetőség kihagyhatatlan az Ön számára!
Registration Number
BI000567
Property Details
Sales
for sale
Character
developmental
Type of Development
Entire building
Subtype of Development
downtown apartment building
Net Size
2,020 m²
Plot Size
505 m²
Size of Terrace / Balcony
144 m²
Above-Ground Net Size
1,565 m²
Developable Net Size
1,565 m²
Developable Above-Ground Net Size
1,565 m²
Ceiling Height
280 cm
Number of Levels Within the Property
7
View
city view
Condition
To be renovated
Condition of Facade
Excellent
Garage Spaces
9
Developable Property
Apartment 10-50 units, Hotel, Guesthouse
Visibility
Located on a side street
Accessibility
Entrance from side street
Vitéz Kornél
Credit Expert