Eladó üzleti célú ingatlan, UZ019475
Balatonszepezd

279 000 000 Ft

739 000 €

  • 300m²
Kiemelt megbízás

Rare opportunity on the shores of Lake Balaton: The iconic 'Mermaid' restaurant by Imre Makovecz is for sale in Balatonszepezd!

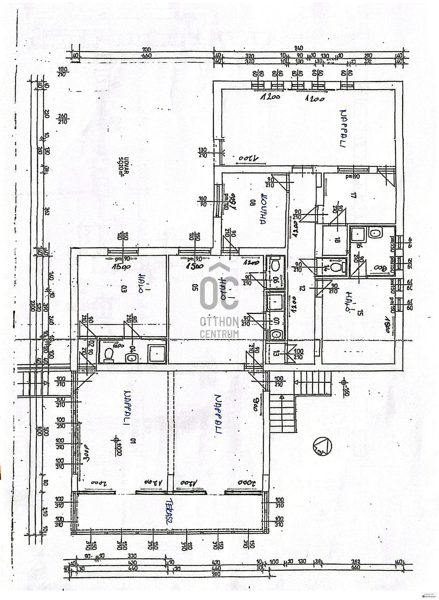
We are offering for sale one of the earliest and most characteristic creations of the world-renowned master of Hungarian organic architecture, Imre Makovecz. The “Sellő” restaurant (later known as Sellő Büfé) in Balatonszepezd is not just a property, but a defining piece of the architectural heritage of the Balaton Highlands. Key features of the property: Designer: Imre Makovecz (designed: 1963-1964). Style: Early organic modernism. The building brilliantly combines modern forms with local natural materials (basalt stone, wood). Location: In the central part of Balatonszepezd, next to the main road 71, with direct views of Lake Balaton. It has excellent visibility and accessibility. Character: The building's curved, dynamic roof structure and the basalt stone façade characteristic of the Badacsony area provide a unique aesthetic experience. Why is this an excellent investment? Cultural heritage value: Imre Makovecz’s early works (such as the wine cellars in Cák or the restaurant in Berhida) are now considered cult status. Owning such a building carries prestige. Versatile utilization: Due to the building's attributes, it is suitable for an exclusive restaurant, a show kitchen, an art gallery, a showroom, or a special “boutique” café. Cultural tourism: The proximity to the Káli Basin and the rise of quality tourism make the building suitable to become a gastronomic pilgrimage site. Condition: The building is in need of renovation but is structurally stable. During the renovation, there is an opportunity for rehabilitation according to the original Makovecz plans, which significantly increases the long-term value of the property. Become the caretaker of one of Lake Balaton's most unique architectural treasures! The property has been partially converted for residential/vacation use and is comfortably usable in its current state. Lake Balaton is just a reach away from the terrace.

Regisztrációs szám

UZ019475

Az ingatlan adatai

Értékesités
eladó
Jogi státusz
használt
Jelleg
üzleti célú
Típus
teljes épület
Építési mód
tégla
Méret
300 m²
Telek méret
787 m²
Terasz / erkély mérete
103 m²
Föld feletti nettó méret
220 m²
Fűtés
elektromos cirkó
Belmagasság
350 cm
Lakáson belüli szintszám
1
Panoráma
folyóra tóra néző panoráma
Állapot
Felújítandó
Homlokzat állapota
Építés éve
1963
Víz
Van
Villany
Van
Csatorna
Van
Vízpart távolsága
vízparti

 

Lehetséges funkciók
vendéglátóipari egység, iroda és raktár, bemutatóterem
Láthatóság
Forgalmas főútról jól látható
Megközelíthetőseg
Forgalmas főútról nyíló bejárat
Hasznosítás
tulajdosnos használja

Irodánk kínálatából - Balatonfüred - Zsigmond utca

eladó üzleti célú ingatlan

Index image
26

eladó családi ház

Index image
Elérhető Otthon Start hitellel
11

eladó újépítésű lakás

Index image
14

eladó lakás

Index image
Elérhető Otthon Start hitellel
31

eladó családi ház

Index image
Elérhető Otthon Start hitellel
14

eladó családi ház

Index image
Elérhető Otthon Start hitellel
12

eladó mezőgazdasagi ingatlan

Index image
7

eladó telek

Index image
9

eladó családi ház

Index image
21

eladó üzleti célú ingatlan

Index image
20