970 300 Ft
2 500 €
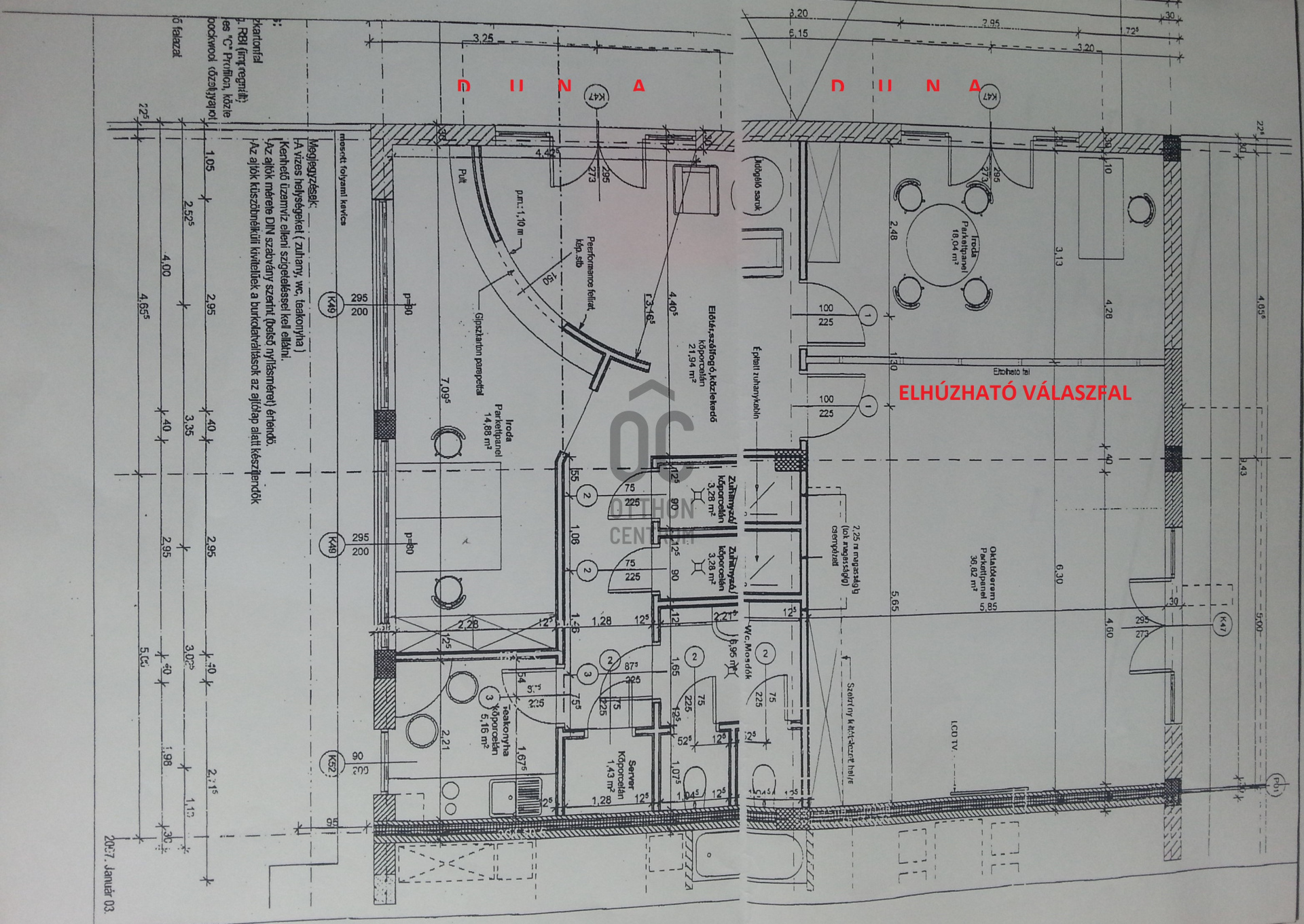
- 112m²
- földszint
Directly on the Danube, a unique apartment/office/showroom available for rent for health and educational purposes, with immediate move-in and the option of a garage.
Ground floor, with 2 bathrooms/WCs, a large open space of up to 50 sqm (which can be separated with a built-in partition wall as needed), featuring a ceiling height of 400 cm (!), accessible, with direct entrances from the Danube side and from the residential complex.
Previously used as an office/showroom/educational space, it is perfectly suited for creative work due to its excellent local characteristics!
All utilities are individually billed, and high-speed internet can also be requested. - With some renovations, it can even be transformed into a fantastic apartment or mixed-use space.
- Located in a truly luxurious, quiet natural environment with ancient trees (no hospitality or traffic here), directly on the banks of the Danube!
- The property faces southeast, bathed in pleasant light, with large terraces and an impressive 4m ceiling height. - If peace, tranquility, and proximity to nature are important to you, this will be the perfect place!
The newly built luxury residential complex offers corresponding services: a gated park, a camera system, and 24-hour security for residents' peace of mind, as well as a beautifully maintained garden with a swimming pool (8x16m).
A parking space in the garage and an 11 sqm storage unit are available for rent, but there is also free parking in the area. €2,500/month, tax-exempt for individuals, and for companies with VAT, payable in euros or forints. The rental fee can be settled via monthly bank transfer based on an invoice, with a lawyer-drafted rental agreement and a two-month deposit.
If you see the potential in this property, please call me with any further questions.
Ground floor, with 2 bathrooms/WCs, a large open space of up to 50 sqm (which can be separated with a built-in partition wall as needed), featuring a ceiling height of 400 cm (!), accessible, with direct entrances from the Danube side and from the residential complex.
Previously used as an office/showroom/educational space, it is perfectly suited for creative work due to its excellent local characteristics!
All utilities are individually billed, and high-speed internet can also be requested. - With some renovations, it can even be transformed into a fantastic apartment or mixed-use space.
- Located in a truly luxurious, quiet natural environment with ancient trees (no hospitality or traffic here), directly on the banks of the Danube!
- The property faces southeast, bathed in pleasant light, with large terraces and an impressive 4m ceiling height. - If peace, tranquility, and proximity to nature are important to you, this will be the perfect place!
The newly built luxury residential complex offers corresponding services: a gated park, a camera system, and 24-hour security for residents' peace of mind, as well as a beautifully maintained garden with a swimming pool (8x16m).
A parking space in the garage and an 11 sqm storage unit are available for rent, but there is also free parking in the area. €2,500/month, tax-exempt for individuals, and for companies with VAT, payable in euros or forints. The rental fee can be settled via monthly bank transfer based on an invoice, with a lawyer-drafted rental agreement and a two-month deposit.
If you see the potential in this property, please call me with any further questions.
Regisztrációs szám
UZ019468
Az ingatlan adatai
Értékesités
kiadó
Jogi státusz
használt
Jelleg
üzleti célú
Típus
épületrész
Építési mód
tégla
Méret
112 m²
Terasz / erkély mérete
30 m²
Föld feletti nettó méret
112 m²
Fűtés
Gáz cirkó
Belmagasság
400 cm
Panoráma
folyóra tóra néző panoráma
Állapot
Jó
Homlokzat állapota
Jó
Lépcsőház állapota
Jó
Bútorozott
igen
Víz
Van
Villany
Van
Csatorna
Van
Lift
van
Vízpart távolsága
Közvetlen vízparti
Lehetséges funkciók
iroda, iroda és bemutatóterem, vagy üzlet, iroda és raktár, bemutatóterem, bemutatóterem és szervíz, vagy raktár, sportközpont, egészségügyi központ, oktatási központ
Hasznosítás
üres
Andrejcsik Nikoletta
Hitelszakértő