277 000 000 Ft
731 000 €
- 550m²
A family house operating as a shop is for sale on Kerepesi Street!
A property serving as a manufacturing company's premises in a family house is up for sale!
The property has its own 1020 m2 plot, which is located on Keresztúri Street!
INVESTMENT OPPORTUNITY! ALSO WITH A SALE-LEASEBACK CONSTRUCTION!
The owner would like to lease the property back with a long-term lease after the sale.
Main features of the property:
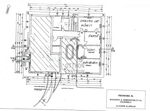
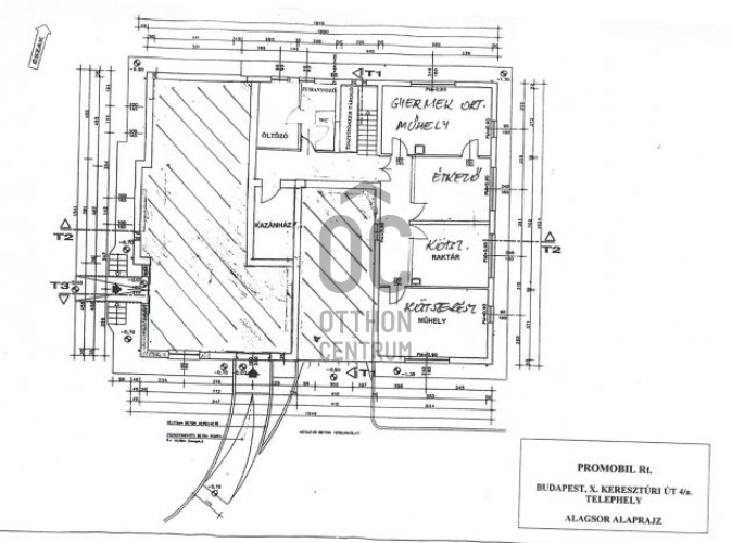
- The building has ground floor, first floor and basement
- Heating is by a circular boiler
- Water, gas and sewerage are connected
- All rooms are heated
- There are 6 air conditioners on the first floor, 4 on the ground floor and 1 in the basement
- The property is equipped with an alarm and camera system
- The property includes 3 wooden houses and 9 metal containers (3 containers are located on the neighboring property, a valid rental contract is included)
- There are 10-12 parking spaces in the yard
- The building is insulated
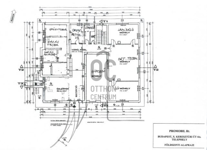
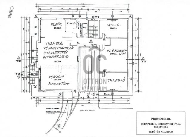
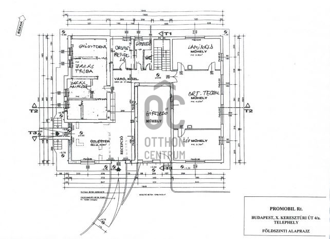
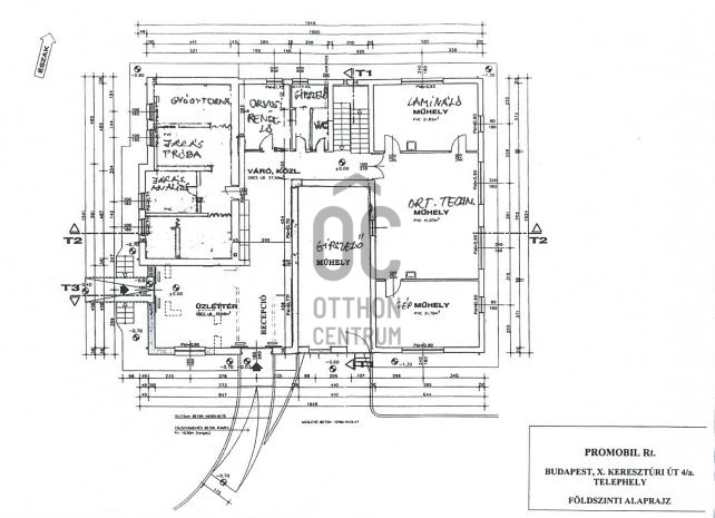
The ground floor rooms (315 cm ceiling height, 255.4 m2):
- lobby/reception 28 m2
- shop 23.08 m2
- doctor's waiting room
- doctor's surgery
- 5 smaller rooms
- 1 restroom
- 4 workshops 89 m2
- corridor
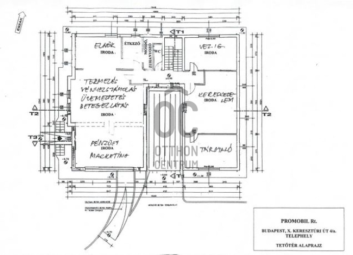
The rooms on the first floor (255 cm ceiling height, 167 m2):
-6 office rooms
-2 restrooms
-1 kitchenette
- corridor
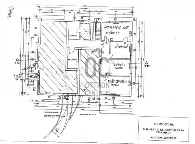
The rooms in the basement (235 cm ceiling height, 128.43 m2):
-2 workshops 45 m2
-1 warehouse 14.46 m2
-1 kitchen 14.46 m2
-1 dressing room 6.8 m2
-1 shower 2.8 m2
-1 restroom 1.4 m2
-boiler room 12.3 m2
- corridor
The property is easily accessible by public transport, car and truck.
The pictures of the production units are understandably not public, but I will send them upon request.
In addition to being a family home, the building can be used as an office, logistics center, hostel, workshop, office building, and offers countless possibilities due to its good transportation and distribution.
Within a 100-meter radius, there are SPAR, Aldi, other shops, and a gas station.
BKK stops nearby:
Bus: 44, 45, 67, 277
HÉV: H8, H9
Night: 908, 908A, 931
The property has its own 1020 m2 plot, which is located on Keresztúri Street!
INVESTMENT OPPORTUNITY! ALSO WITH A SALE-LEASEBACK CONSTRUCTION!
The owner would like to lease the property back with a long-term lease after the sale.
Main features of the property:
- The building has ground floor, first floor and basement
- Heating is by a circular boiler
- Water, gas and sewerage are connected
- All rooms are heated
- There are 6 air conditioners on the first floor, 4 on the ground floor and 1 in the basement
- The property is equipped with an alarm and camera system
- The property includes 3 wooden houses and 9 metal containers (3 containers are located on the neighboring property, a valid rental contract is included)
- There are 10-12 parking spaces in the yard
- The building is insulated
The ground floor rooms (315 cm ceiling height, 255.4 m2):
- lobby/reception 28 m2
- shop 23.08 m2
- doctor's waiting room
- doctor's surgery
- 5 smaller rooms
- 1 restroom
- 4 workshops 89 m2
- corridor
The rooms on the first floor (255 cm ceiling height, 167 m2):
-6 office rooms
-2 restrooms
-1 kitchenette
- corridor
The rooms in the basement (235 cm ceiling height, 128.43 m2):
-2 workshops 45 m2
-1 warehouse 14.46 m2
-1 kitchen 14.46 m2
-1 dressing room 6.8 m2
-1 shower 2.8 m2
-1 restroom 1.4 m2
-boiler room 12.3 m2
- corridor
The property is easily accessible by public transport, car and truck.
The pictures of the production units are understandably not public, but I will send them upon request.
In addition to being a family home, the building can be used as an office, logistics center, hostel, workshop, office building, and offers countless possibilities due to its good transportation and distribution.
Within a 100-meter radius, there are SPAR, Aldi, other shops, and a gas station.
BKK stops nearby:
Bus: 44, 45, 67, 277
HÉV: H8, H9
Night: 908, 908A, 931
Regisztrációs szám
UZ019240
Az ingatlan adatai
Értékesités
eladó
Jogi státusz
használt
Jelleg
üzleti célú
Típus
teljes épület
Építési mód
tégla
Méret
550 m²
Telek méret
1 020 m²
Föld feletti nettó méret
255 m²
Fűtés
Gáz cirkó
Belmagasság
315 cm
Lakáson belüli szintszám
2
Állapot
Átlagos
Homlokzat állapota
Jó
Építés éve
1989
Víz
Van
Gáz
Van
Villany
Van
Csatorna
Van
Lehetséges funkciók
vendéglátóipari egység, iroda, iroda és bemutatóterem, vagy üzlet, iroda és raktár, bemutatóterem és szervíz, vagy raktár, logisztikai központ, panzió, hostel
Láthatóság
Forgalmas főútról jól látható
Megközelíthetőseg
Nagy gyalogosforgalmú utcára nyíló bejárat
Hasznosítás
tulajdosnos használja
Horváth Eleonóra
Hitelszakértő