210 000 000 Ft
556 000 €
- 551m²
*** FUNKCIÓVÁLTÁSRA ALKALMAS HOTEL KESZTHELYEN! ***
Eladó többlakásos társasháznak alkalmas épület belső udvarral!
A jelenleg hotelként már nem üzemelő sarki épület, 2 percnyire Keszthely főterétől, illetve 500 m-re a Balatontól helyezkedik el.
Az ingatlan lakóövezetbe esik (Lk-3), így akár lakó projekt is fejleszthető.
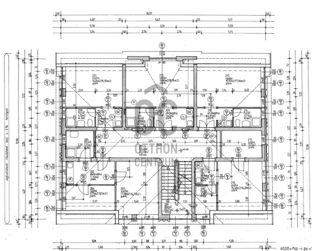
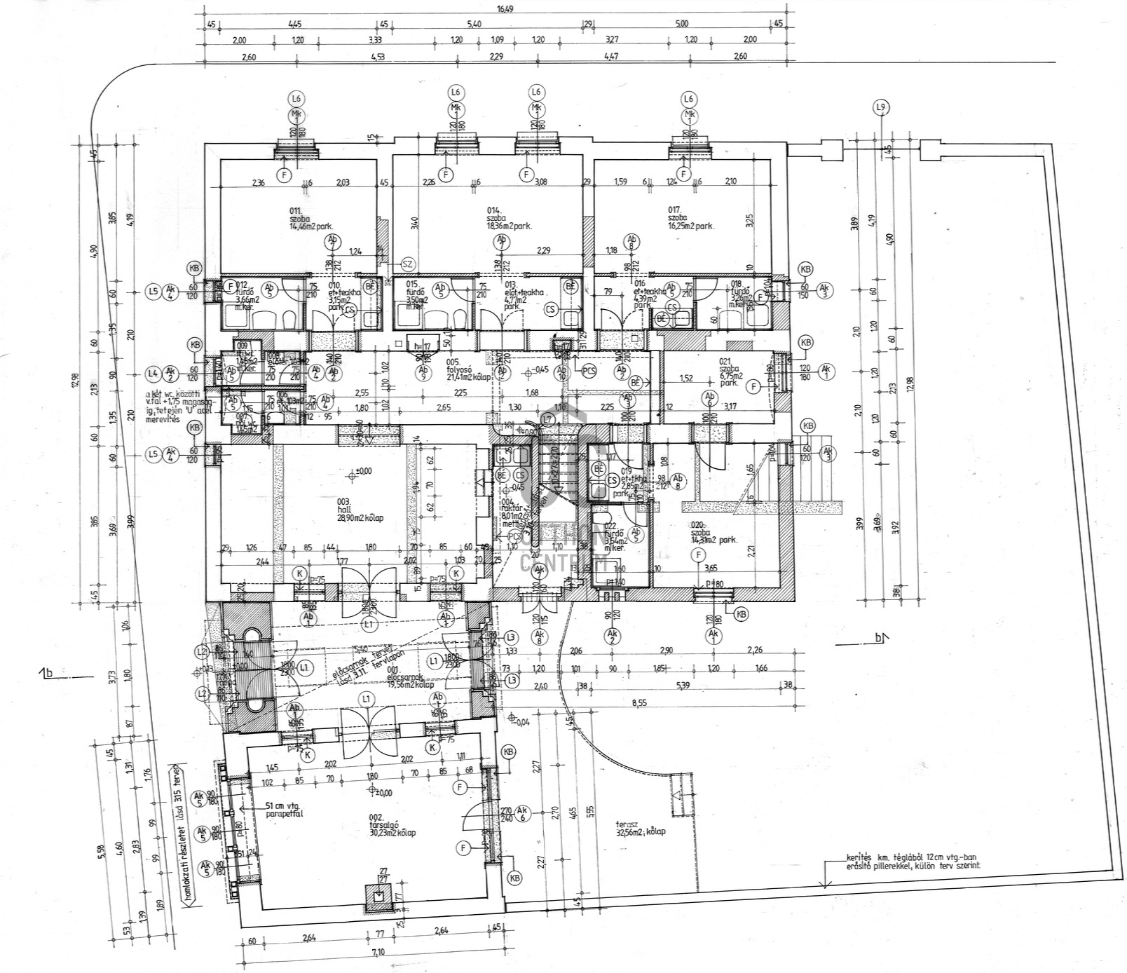
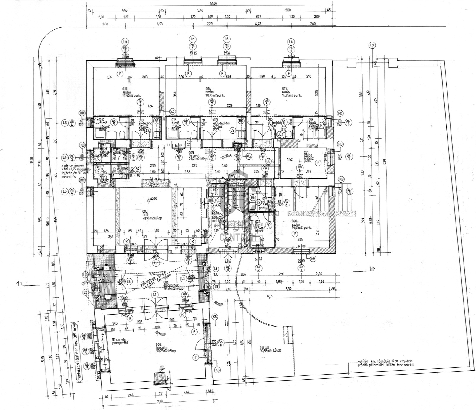
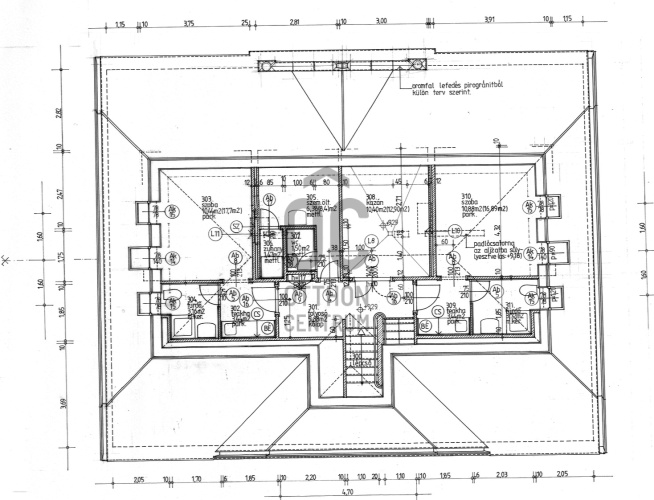
Az ingatlan főbb paraméterei:
- Telek mérete 562 m2;
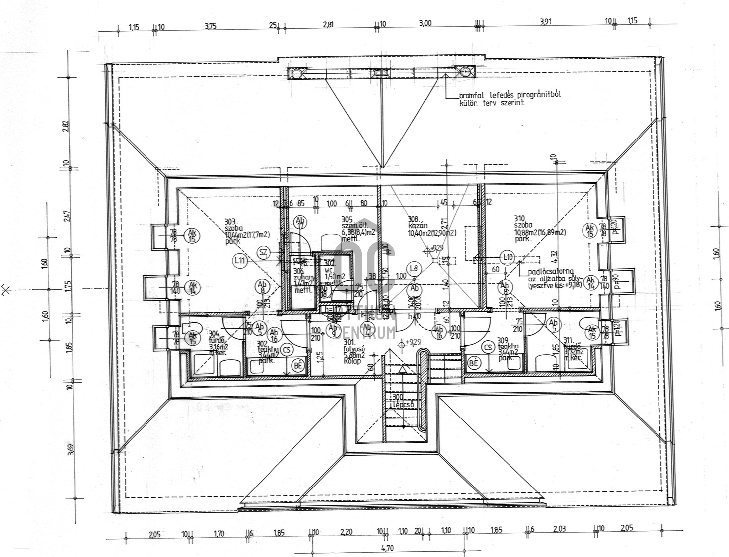
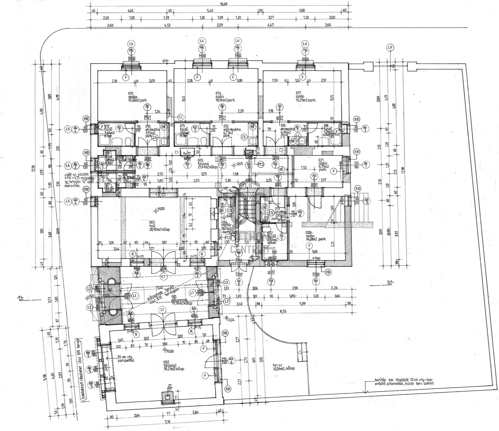
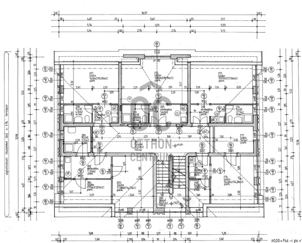
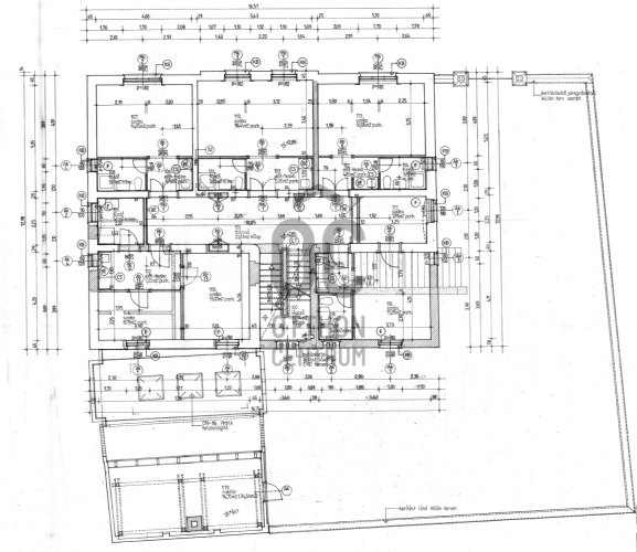
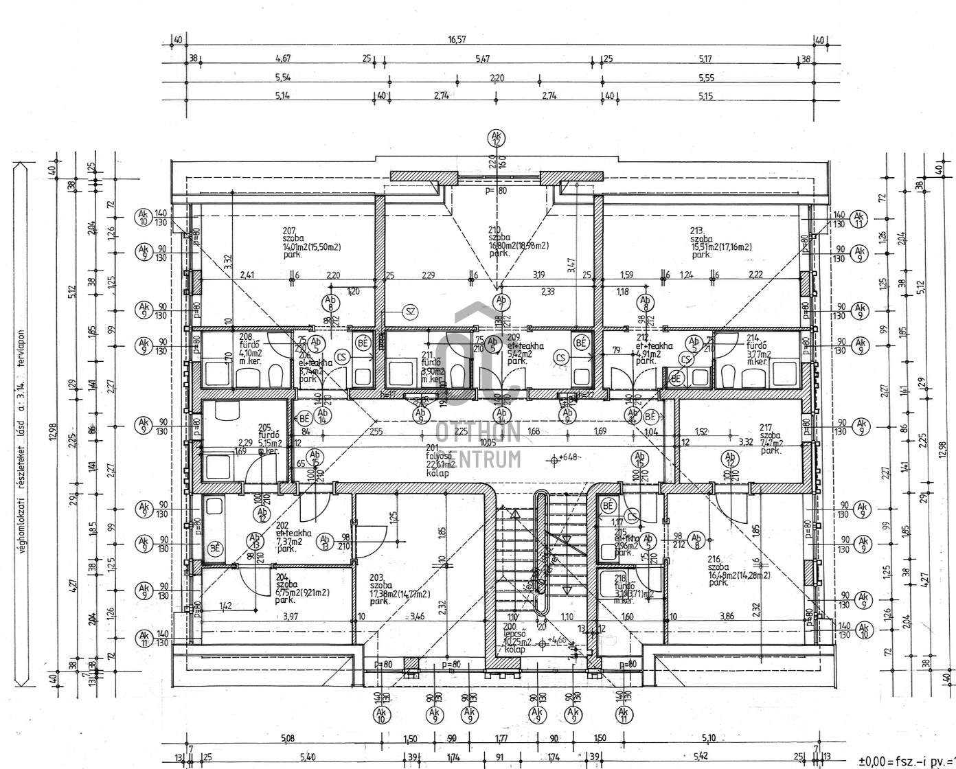
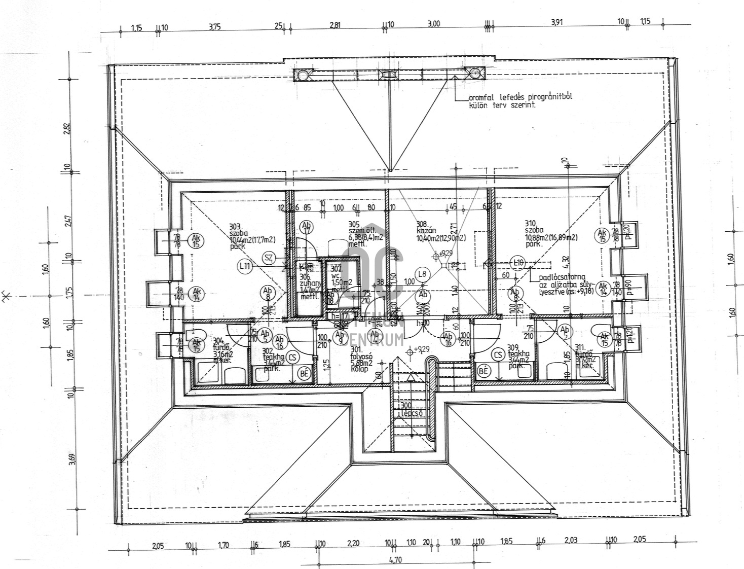
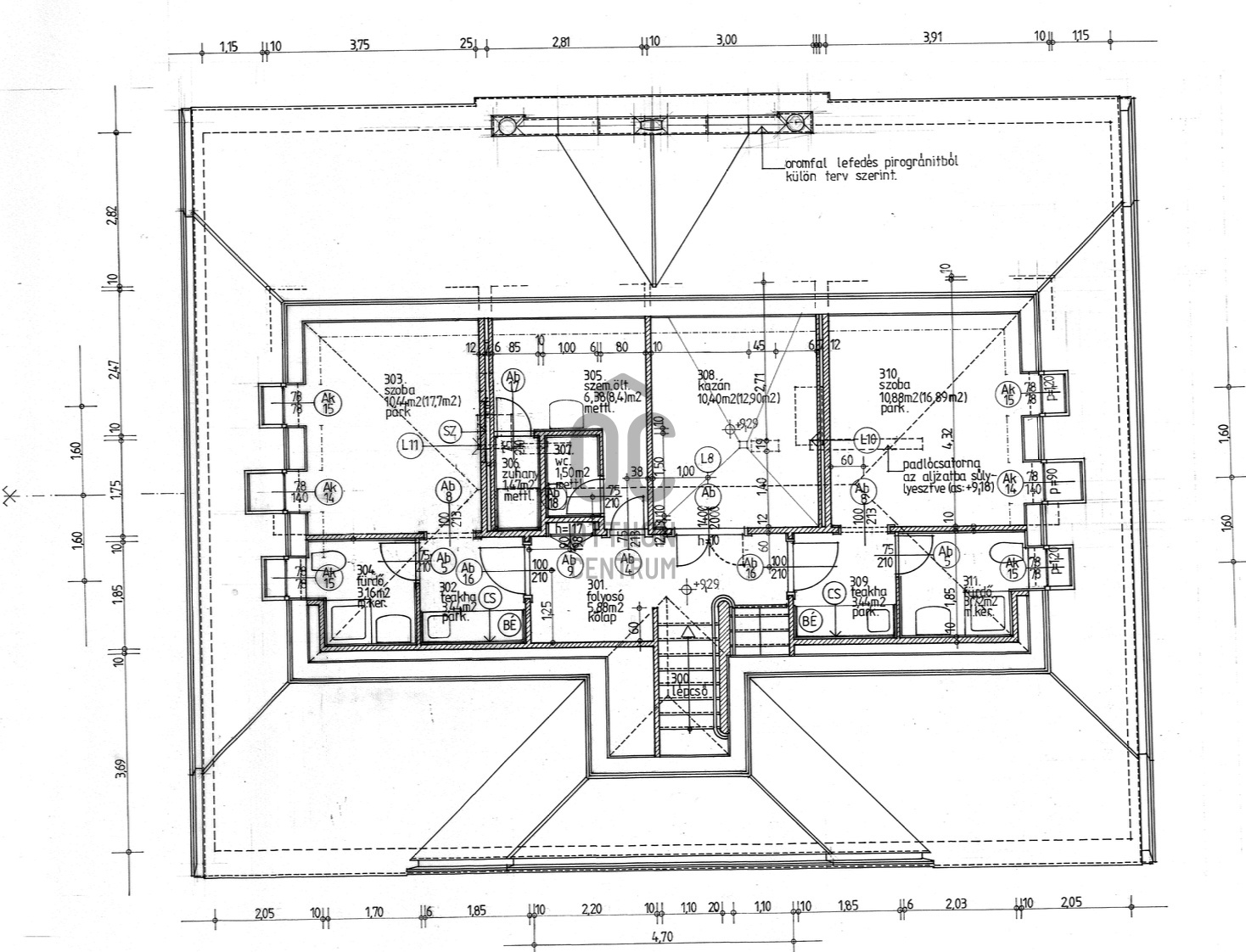
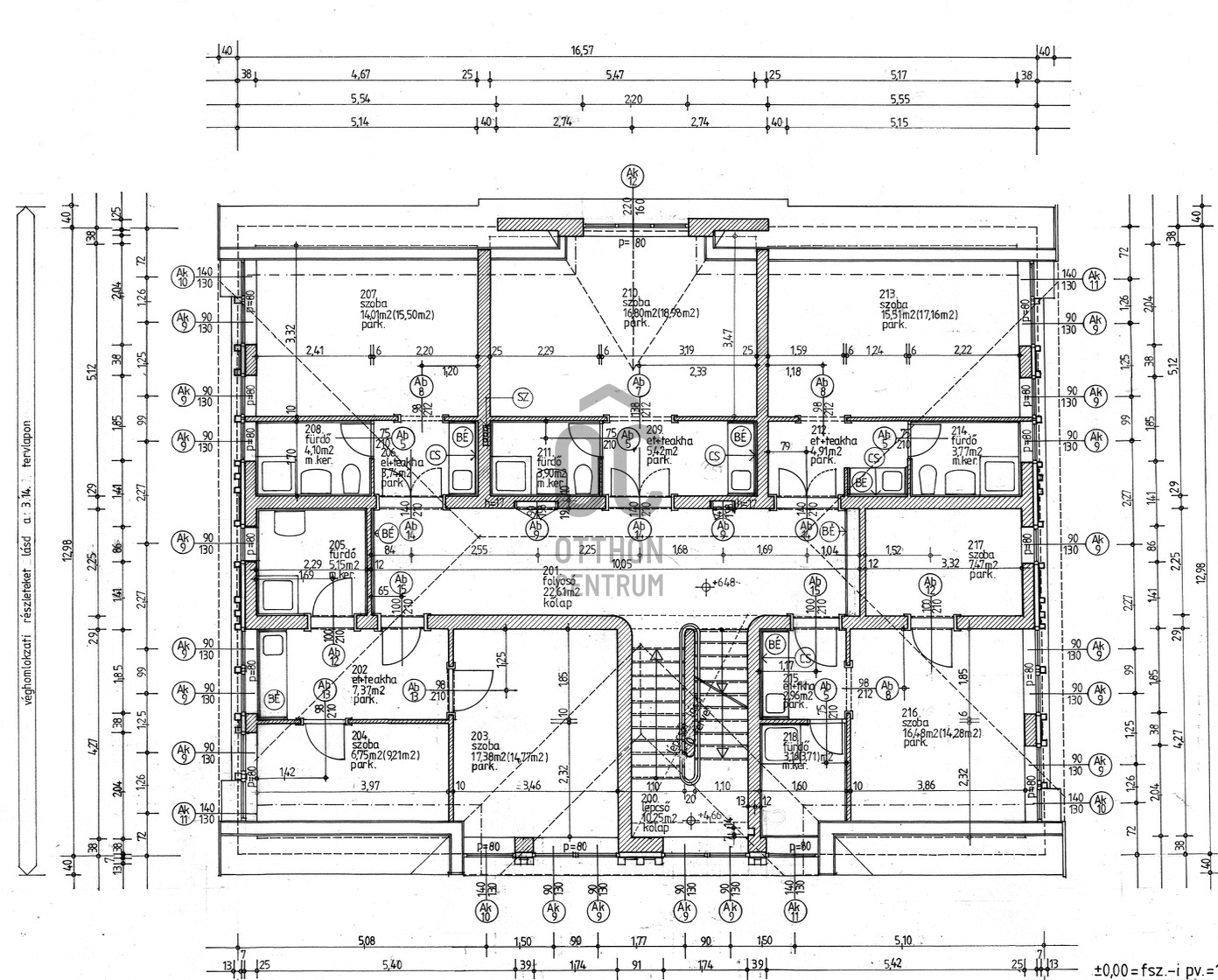
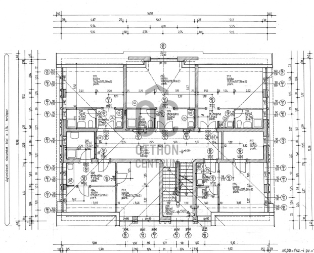
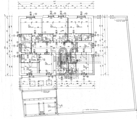
- Összes jelenlegi felépítmény nettó beépített területe 4 szinten: 551 m2;
- Szintek: földszint, 2 emelet és tetőtér
- Kialakított apartmanok száma: 16 db, melyből 11 db studió és 5 db 1,5 szobás - minden apartmanhoz fürdőszoba és teakonyha tartozik;
- Ketben parkolási lehetőség kialakítható.
Bővebb információért és a megtekintéssel kapcsolatban hívjon bizalommal!
Egyedi igényekre szabott lakás-vállalati hitelekkel állunk rendelkezésére. Bankfüggetlen hitelcentrumunk az országban elérhető összes bank és hitelintézet ajánlatát versenyezteti az Ön számára díjmentesen. Munkatársaink nagy szakmai tapasztalattal várják Önt az előre egyeztetett időpontban akár a normál munkaidő után is.
A jelenleg hotelként már nem üzemelő sarki épület, 2 percnyire Keszthely főterétől, illetve 500 m-re a Balatontól helyezkedik el.
Az ingatlan lakóövezetbe esik (Lk-3), így akár lakó projekt is fejleszthető.
Az ingatlan főbb paraméterei:
- Telek mérete 562 m2;
- Összes jelenlegi felépítmény nettó beépített területe 4 szinten: 551 m2;
- Szintek: földszint, 2 emelet és tetőtér
- Kialakított apartmanok száma: 16 db, melyből 11 db studió és 5 db 1,5 szobás - minden apartmanhoz fürdőszoba és teakonyha tartozik;
- Ketben parkolási lehetőség kialakítható.
Bővebb információért és a megtekintéssel kapcsolatban hívjon bizalommal!
Egyedi igényekre szabott lakás-vállalati hitelekkel állunk rendelkezésére. Bankfüggetlen hitelcentrumunk az országban elérhető összes bank és hitelintézet ajánlatát versenyezteti az Ön számára díjmentesen. Munkatársaink nagy szakmai tapasztalattal várják Önt az előre egyeztetett időpontban akár a normál munkaidő után is.
Regisztrációs szám
UZ018952
Az ingatlan adatai
Értékesités
eladó
Jogi státusz
használt
Jelleg
üzleti célú
Típus
teljes épület
Építési mód
tégla
Méret
551 m²
Telek méret
562 m²
Föld feletti nettó méret
551 m²
Belmagasság
280 cm
Lakáson belüli szintszám
4
Panoráma
városi panoráma
Állapot
Átlagos
Homlokzat állapota
Átlagos
Víz
Van
Gáz
Van
Villany
Van
Csatorna
Van
Vízpart távolsága
500 méterre
Lehetséges funkciók
vendéglátóipari egység, iroda és raktár, szálloda, panzió, hostel, egészségügyi központ, oktatási központ, egyéb
Láthatóság
Mellékutcában utcafronton lévő
Megközelíthetőseg
Mellékutcára nyíló bejárat
Hasznosítás
üres
Kőrösi Róbert
Hitelszakértő