750 000 Ft
1 950 €
- 453m²
- 1. emelet
In Pécel, just 300 meters from the M0 motorway exit, in a prime location, in a huge, renovated commercial building, office, warehouse and workshop spaces, spacious rooms suitable for many activities are for rent!
The property has excellent transport facilities: thanks to the proximity of the M0 motorway, it can be accessed by large trucks and lorries without a permit, which makes it ideal for logistics companies, warehousing or industrial activities, but also for many other businesses.
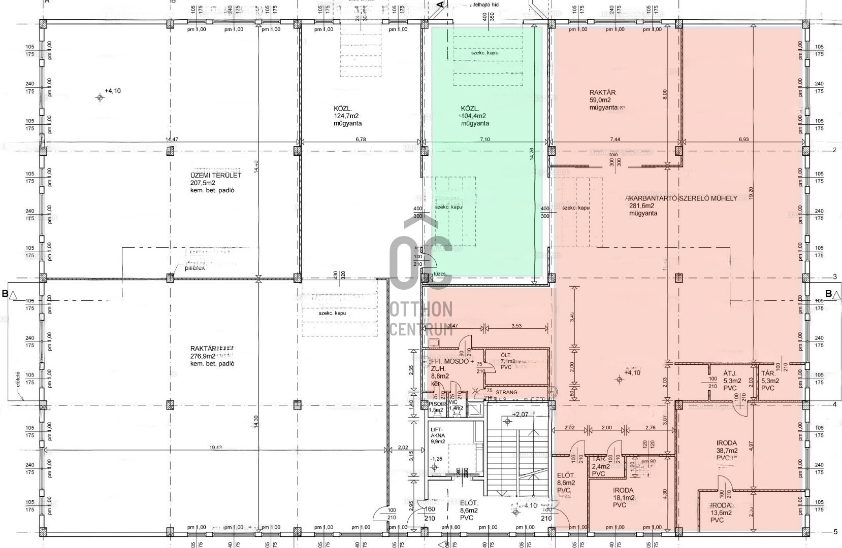
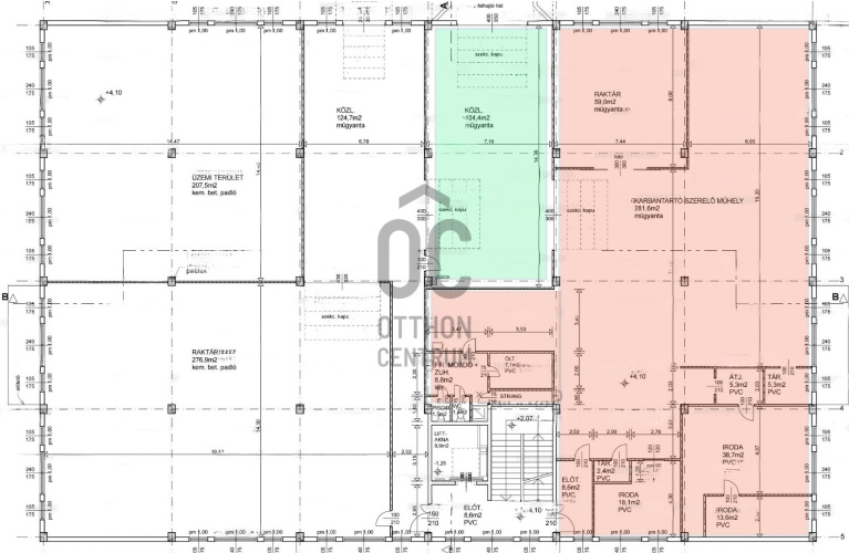
1st floor:
-34 sqm office + 419 sqm workshop/factory/warehouse
-Total: 453 sqm
-Truck loading facility
The entire building has been completely renovated, with modern solutions and tidy, clean interiors.
Parking:
Private parking spaces can be rented in the closed, camera-protected courtyard, which provides significant comfort for both customers and employees.
Rental terms:
-Minimum rental period: 1 year
-Immediate move-in for 2 months deposit + 1 month rent
-If both units are required in combination, individual pricing is possible
The property has excellent transport facilities: thanks to the proximity of the M0 motorway, it can be accessed by large trucks and lorries without a permit, which makes it ideal for logistics companies, warehousing or industrial activities, but also for many other businesses.
1st floor:
-34 sqm office + 419 sqm workshop/factory/warehouse
-Total: 453 sqm
-Truck loading facility
The entire building has been completely renovated, with modern solutions and tidy, clean interiors.
Parking:
Private parking spaces can be rented in the closed, camera-protected courtyard, which provides significant comfort for both customers and employees.
Rental terms:
-Minimum rental period: 1 year
-Immediate move-in for 2 months deposit + 1 month rent
-If both units are required in combination, individual pricing is possible
Regisztrációs szám
UZ018796
Az ingatlan adatai
Értékesités
kiadó
Jogi státusz
használt
Jelleg
üzleti célú
Típus
épületrész
Építési mód
tégla
Méret
453 m²
Föld feletti nettó méret
453 m²
Belmagasság
350 cm
Állapot
Jó
Homlokzat állapota
Jó
Lépcsőház állapota
Jó
Víz
Van
Gáz
Van
Villany
Van
Csatorna
Van
Lift
van
Lehetséges funkciók
ipari csarnok vagy raktár
Megközelíthetőseg
12 tonna feletti kamionnal behajtási engedély nélkül megközelíthető
Hasznosítás
üres
Torday Tibor
Hitelszakértő