1 500 000 Ft
3 900 €
- 1 328m²
Warehouse, Office & Workshop Spaces for Rent – 300m from M0 Motorway, Pécel (Budapest Area)
Located just 300 meters from the M0 motorway exit, this fully renovated commercial building in Pécel offers spacious office, warehouse, and workshop areas ideal for a wide range of business activities.
Property Highlights
-Excellent access for logistics – No special permit required for trucks or HGVs.
-Prime location – Immediate connection to M0, perfect for distribution and industrial operations.
-Modernized building – Fully refurbished with clean, functional interiors.
Available Spaces
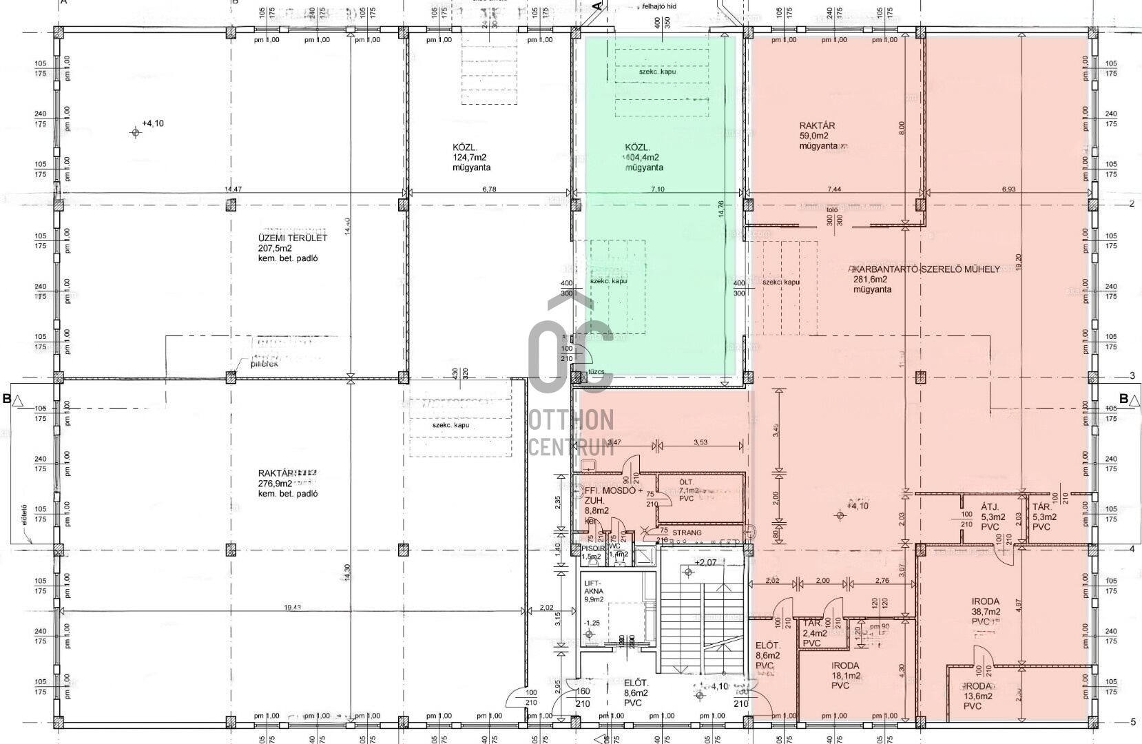
-1st Floor:
-34 m² office + 419 m² workshop/production/warehouse
-Total: 453 m²
-Truck loading access
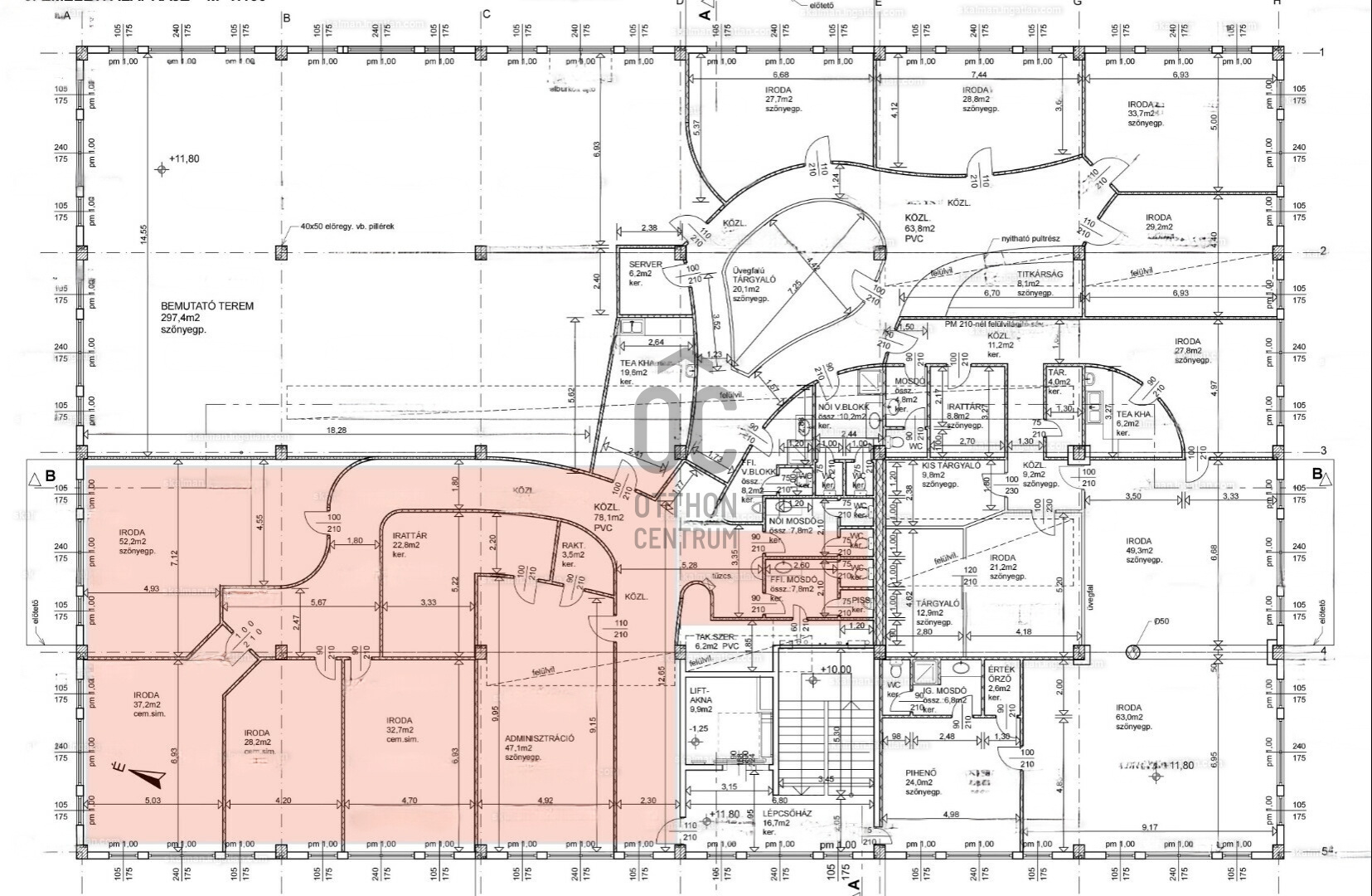
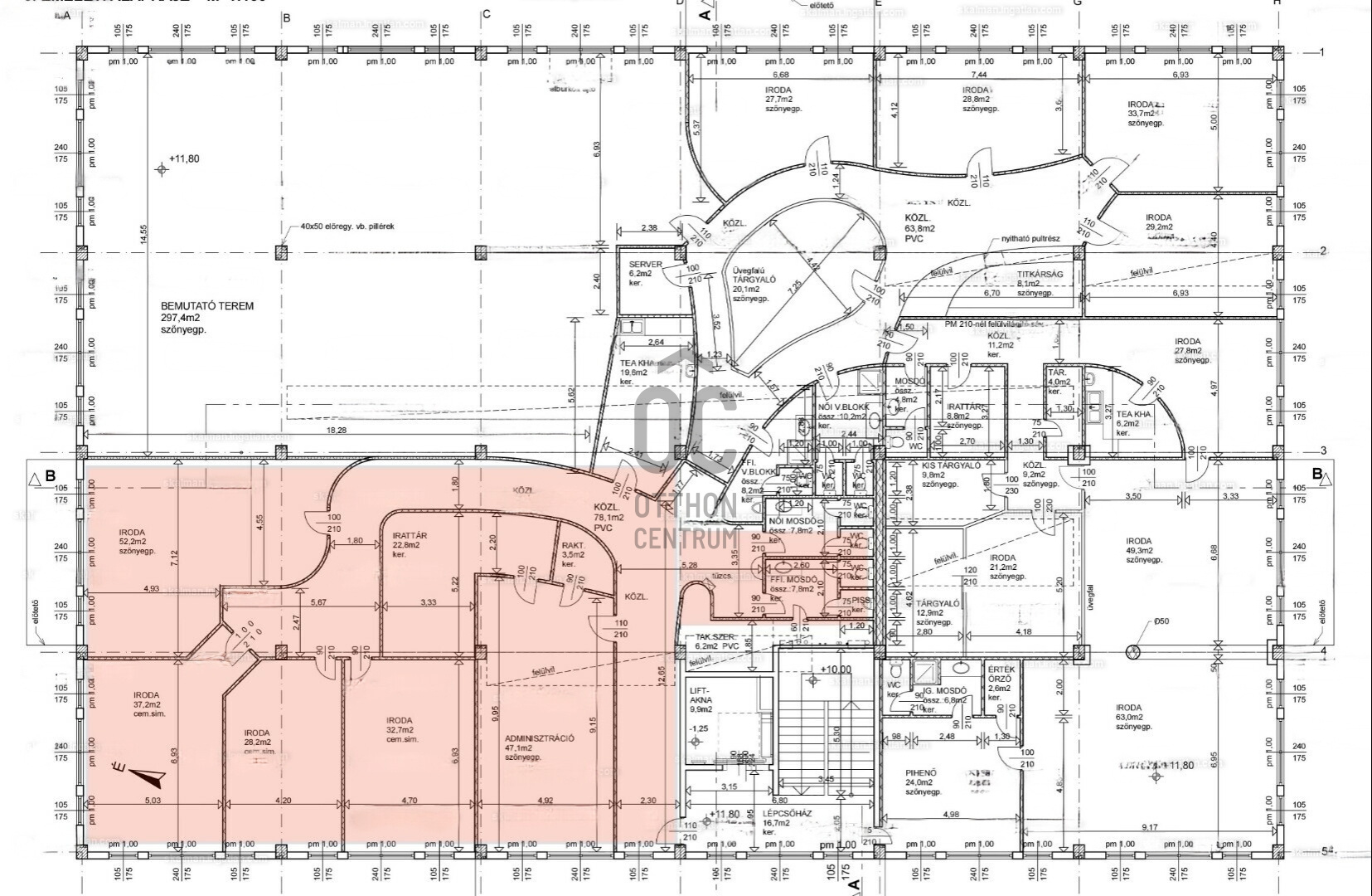
3rd Floor:
-376 m² fully renovated office space (elevator access)
-Multiple large rooms, changing rooms & showers
-Perfect for fitness/yoga studios, physiotherapy, or business offices
Additional Features
-Secure, gated yard with CCTV
-Private parking spaces available for rent
-Suitable for logistics, warehousing, industrial production, and a variety of commercial uses
Lease Conditions
-Minimum rental period: 12 months
-2 months deposit + 1 month rent required Immediate occupancy
-Flexible pricing for renting both units together
Contact us for more details or to arrange a viewing
Property Highlights
-Excellent access for logistics – No special permit required for trucks or HGVs.
-Prime location – Immediate connection to M0, perfect for distribution and industrial operations.
-Modernized building – Fully refurbished with clean, functional interiors.
Available Spaces
-1st Floor:
-34 m² office + 419 m² workshop/production/warehouse
-Total: 453 m²
-Truck loading access
3rd Floor:
-376 m² fully renovated office space (elevator access)
-Multiple large rooms, changing rooms & showers
-Perfect for fitness/yoga studios, physiotherapy, or business offices
Additional Features
-Secure, gated yard with CCTV
-Private parking spaces available for rent
-Suitable for logistics, warehousing, industrial production, and a variety of commercial uses
Lease Conditions
-Minimum rental period: 12 months
-2 months deposit + 1 month rent required Immediate occupancy
-Flexible pricing for renting both units together
Contact us for more details or to arrange a viewing
Regisztrációs szám
UZ018785
Az ingatlan adatai
Értékesités
kiadó
Jogi státusz
használt
Jelleg
üzleti célú
Típus
épületrész
Építési mód
tégla
Méret
1 328 m²
Föld feletti nettó méret
1 328 m²
Fűtés
Gáz cirkó
Belmagasság
350 cm
Állapot
Jó
Homlokzat állapota
Jó
Lépcsőház állapota
Jó
Víz
Van
Gáz
Van
Villany
Van
Csatorna
Van
Lift
van
Lehetséges funkciók
iroda, iroda és bemutatóterem, vagy üzlet, iroda és raktár, bemutatóterem, bemutatóterem és szervíz, vagy raktár, ipari csarnok vagy raktár, logisztikai központ
Megközelíthetőseg
Telephelyen belül elhelyezkedő ingatlan
Hasznosítás
tulajdosnos használja
Torday Tibor
Hitelszakértő