700 000 000 Ft
1 798 000 €
- 2 043m²








Eladóak ságvári raktárcsarnokok!
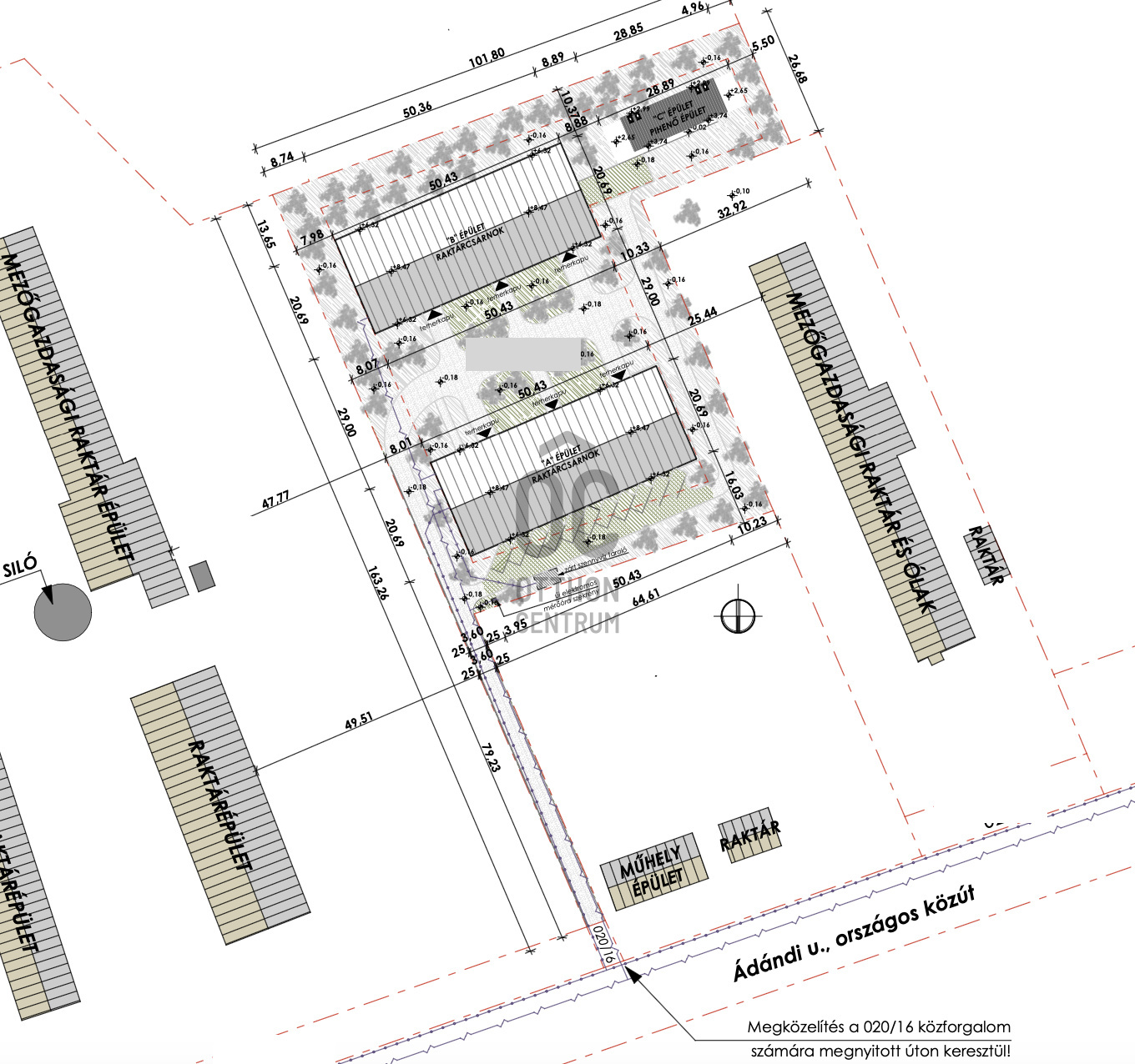
Ságváron, Siófokhoz és az M7 autópályához mindössze 7 km-re, 2x1.000 nm-es csarnok eladó egy 7.723 m²-es telken!
- Méret: 2 x 1.000 m²-es csarnok, illetve 1 további kisebb épület felhúzható,
- Falvastagság: 12 cm,
- Szintbeli kapuk mérete: 3x3m, és 2 db, 4,5 x 4,50m,
- Villamos hálózat: 3x80 A,
- Napelem: 50 mW teljesítmény,
- Egyik csarnokban: 100 m² iroda, öltözők, zuhanyzók (külön női és férfi blokk),
- Az ingatlan specialitása az övezeti besorolása: Kü-Hull, azaz hulladékkezelő terület (a területen a hulladékkezeléshez, feldolgozáshoz, időszakos tároláshoz szükséges épületek, építmények, valamint azok kiszolgáló létesítményei helyezhetők el),
- Ár: 700 M HUF + ÁFA.
Bármi kérdéssel, vagy a bejárással kapcsolatban állok rendelkezésükre!
Egyedi igényekre szabott lakás-vállalati hitelekkel állunk rendelkezésére. Bankfüggetlen hitelcentrumunk az országban elérhető összes bank és hitelintézet ajánlatát versenyezteti az Ön számára díjmentesen. Munkatársaink nagy szakmai tapasztalattal várják Önt az előre egyeztetett időpontban akár a normál munkaidő után is.
- Méret: 2 x 1.000 m²-es csarnok, illetve 1 további kisebb épület felhúzható,
- Falvastagság: 12 cm,
- Szintbeli kapuk mérete: 3x3m, és 2 db, 4,5 x 4,50m,
- Villamos hálózat: 3x80 A,
- Napelem: 50 mW teljesítmény,
- Egyik csarnokban: 100 m² iroda, öltözők, zuhanyzók (külön női és férfi blokk),
- Az ingatlan specialitása az övezeti besorolása: Kü-Hull, azaz hulladékkezelő terület (a területen a hulladékkezeléshez, feldolgozáshoz, időszakos tároláshoz szükséges épületek, építmények, valamint azok kiszolgáló létesítményei helyezhetők el),
- Ár: 700 M HUF + ÁFA.
Bármi kérdéssel, vagy a bejárással kapcsolatban állok rendelkezésükre!
Egyedi igényekre szabott lakás-vállalati hitelekkel állunk rendelkezésére. Bankfüggetlen hitelcentrumunk az országban elérhető összes bank és hitelintézet ajánlatát versenyezteti az Ön számára díjmentesen. Munkatársaink nagy szakmai tapasztalattal várják Önt az előre egyeztetett időpontban akár a normál munkaidő után is.
Regisztrációs szám
UZ018556
Az ingatlan adatai
Értékesités
eladó
Jogi státusz
új
Jelleg
üzleti célú
Típus
teljes épület
Építési mód
panel
Méret
2 043 m²
Telek méret
7 723 m²
Föld feletti nettó méret
2 043 m²
Belmagasság
680 cm
Állapot
Kiváló
Homlokzat állapota
Kiváló
Építés éve
2025
Víz
Van
Gáz
Utcán
Villany
Van
Csatorna
Utcán
Lehetséges funkciók
iroda, iroda és bemutatóterem, vagy üzlet, iroda és raktár, bemutatóterem, bemutatóterem és szervíz, vagy raktár, ipari csarnok vagy raktár, logisztikai központ, mezőgazdasági telephely, egyéb
Megközelíthetőseg
Forgalmas főútról nyíló bejárat
Hasznosítás
üres

Kőrösi Róbert
Hitelszakértő