256 628 Ft
660 €
- 1 000m²












Office for rent, retail space, hall, warehouse!
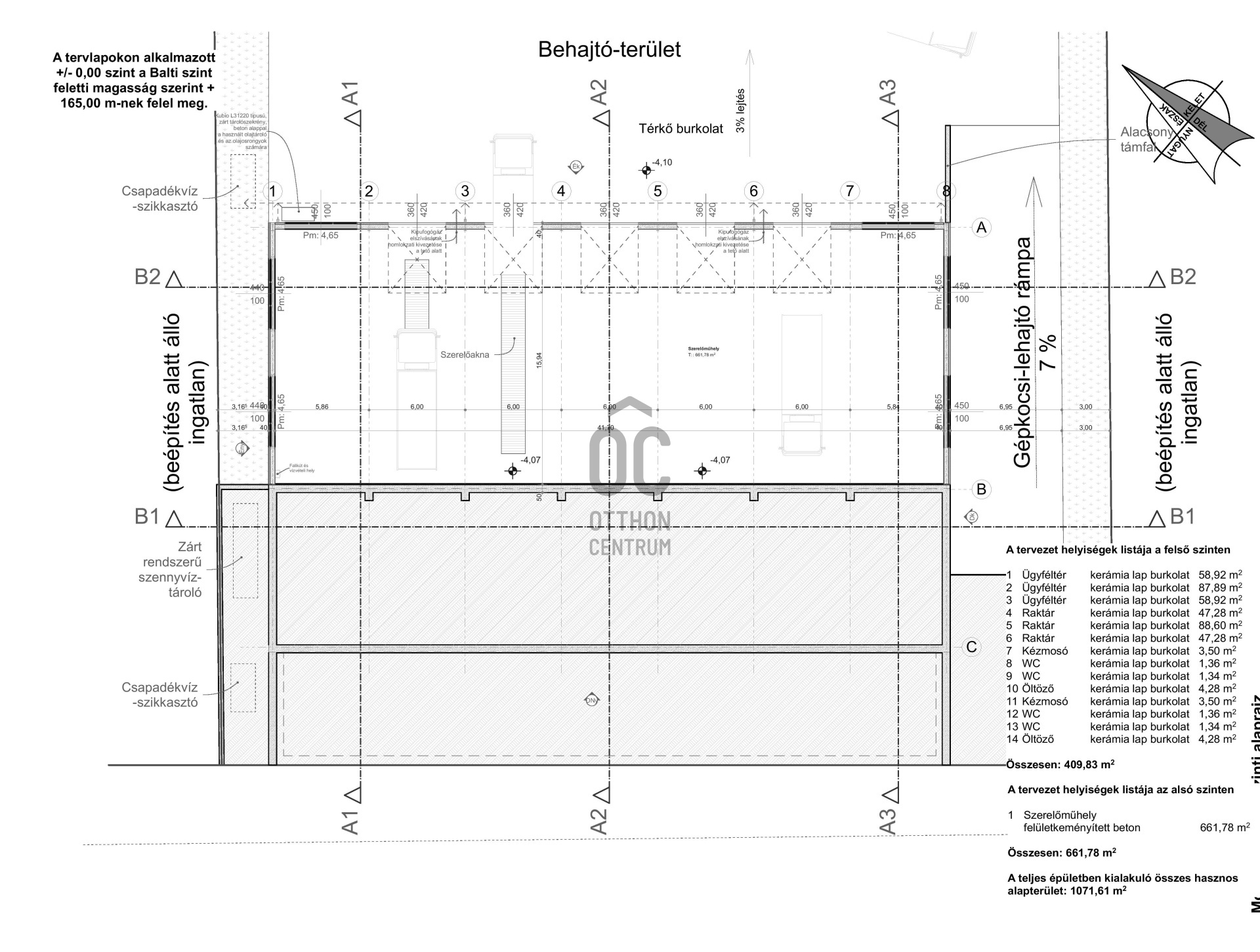
For rent in the largest industrial park of Pilisvörösvár, there are retail spaces ranging from 100 to 300 square meters, plus an additional total of 600 square meters of warehouse space available. The completely newly built property has a direct street front, with a façade featuring large glass surfaces throughout, and it includes its own parking spaces. In the back part of the building, there are large warehouses with a separate entrance that are also available for rent. In the immediate vicinity of the property, there are numerous commercial and service units.
Regisztrációs szám
UZ018233
Az ingatlan adatai
Értékesités
kiadó
Jogi státusz
új
Jelleg
üzleti célú
Típus
teljes épület
Építési mód
könnyűszerkezetes
Méret
1 000 m²
Telek méret
3 000 m²
Föld feletti nettó méret
1 000 m²
Belmagasság
300 cm
Állapot
Kiváló
Homlokzat állapota
Kiváló
Építés éve
2025
Víz
Van
Gáz
Utcán
Villany
Van
Csatorna
Van
Lehetséges funkciók
kiskereskedelem, bemutatóterem, bemutatóterem és szervíz, vagy raktár, ipari csarnok vagy raktár, logisztikai központ
Hasznosítás
üres

Pfeffer Kinga
Hitelszakértő