Elérhető Otthon Start hitellel
Eladó újépítésű ikerház, U0049388
Debrecen, Kerekes-telep

150 000 000 Ft

396 000 €

  • 150m²
  • 5 szoba

It seems that you didn't provide any text to translate. Please share the text you'd like me to translate, and I'll be happy to help!

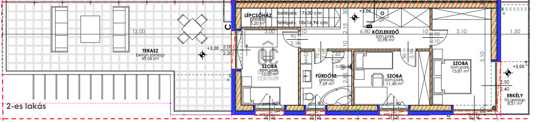
Modern semi-detached house for sale in Kerekestelep! A NEWLY BUILT SEMI-DETACHED HOUSE is for sale in Kerekestelep, Debrecen! We are offering for sale a modern semi-detached house under construction in a popular area of Debrecen, with a total area of 149 m² and a plot size of 475 m². The contractor is reliable and has numerous references in the Debrecen area. Property type: semi-detached house Plot size: 475 m², living area: 149 m² Number and layout of rooms: Ground floor: 68.9 m² + garage 18 m²: hallway (9.42 m²), kitchen-dining-living room (43.19 m²), pantry (2.16 m²), 1 bedroom (10.8 m²), toilet, shower, garage (18 m²). Terrace 26 m². First floor: (62.8 m²) 1st apartment: - room – wardrobe (23.1 m²) – bathroom (6.66 m²) – corridor (7.4 m²) - room (15.15 m²) – shower toilet (4.56 m²) - staircase (5.9 m²) - balcony (8.5 m²) - upper terrace 49 m² 2nd apartment: - room (12 m²) – bathroom (7.69 m²) - room (11.4 m²) - room (15.81 m²) - corridor (10.98 m²) - staircase (5.2 m²) - balcony (8.5 m²) - upper terrace 49 m² Wall construction: 30 cm N+F brick Ceiling: reinforced concrete External insulation: 20 cm EPS insulation Windows: 90 mm triple-glazed insulated windows, electric garage door Upper floor ceiling insulation: 30 cm XPS insulation with PVC sheet covering Heating: heat pump system with underfloor heating Cooling: high wall FANCOIL (water-based air conditioning) Solar panel: 5 kW Sidewalk: 80 cm wide around the building Street fence: metal Condition: newly built Asking price: 150,000,000 HUF A new, energy-efficient, premium quality home! The handover date is 3 months after the contract. We provide comprehensive assistance to our clients throughout the entire process of buying and selling, with reliable, free, and bank-independent mortgage consultancy and excellent legal support. For further questions or to arrange a viewing, please feel free to call me any day of the week!

Regisztrációs szám

U0049388

Az ingatlan adatai

Értékesités
eladó
Jogi státusz
új
Jelleg
ház
Építési mód
tégla
Méret
150 m²
Bruttó méret
162 m²
Telek méret
475 m²
Terasz / erkély mérete
83 m²
Kert méret
315 m²
Fűtés
hőszivattyú (levegő-levegő)
Belmagasság
270 cm
Lakáson belüli szintszám
2
Tájolás
Nyugat
Panoráma
Zöldre néző panoráma
Állapot
Kiváló
Homlokzat állapota
Kiváló
Környék
csendes, jó közlekedés, zöld
Építés éve
2026
Fürdőszobák száma
3
Társaház kert
igen
Garázs
Benne van az árban
Garázs férőhely
1
Víz
Van
Villany
Van
Csatorna
Van

Helyiségek

szoba
10.8 m²
nappali
24.01 m²
ebédlő
11.2 m²
konyha
7.98 m²
kamra
2.16 m²
fürdőszoba-wc
3 m²
közlekedő
2.09 m²
előszoba
7.42 m²
terasz
26 m²
szoba
12 m²
szoba
15.51 m²
szoba
11.4 m²
fürdőszoba-wc
7.69 m²
közlekedő
10.698 m²
lépcsőház
5.2 m²
erkély
8.51 m²
Plébán László
Plébán László

Hitelszakértő

Irodánk kínálatából - Debrecen - Hatvan utca

eladó családi ház

Index image
Elérhető Otthon Start hitellel
23

for sale family house

Index image
data_sheet.details.realestate.section.main.otthonstart_flag.label
15

eladó újépítésű ikerház

Index image
Elérhető Otthon Start hitellel
11